Ogłoszenie wstrzymane

Mieszkanie na sprzedaż bez pośredników
ul. Bartycka Warszawa Mokotów

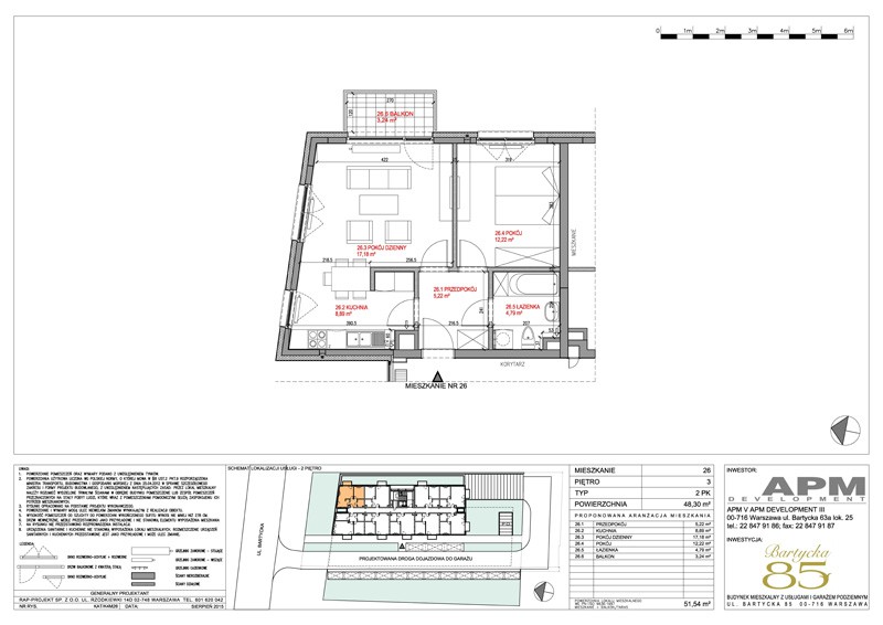
Mieszkanie 2-pokojowe Warszawa Mokotów, ul. Bartycka. Zdjęcie 1
Mieszkanie 2-pokojowe Warszawa Mokotów, ul. Bartycka. Zdjęcie 2
Mieszkanie 2-pokojowe Warszawa Mokotów, ul. Bartycka. Zdjęcie 3
Mieszkanie 2-pokojowe Warszawa Mokotów, ul. Bartycka. Zdjęcie 4

Mieszkanie na sprzedaż bez pośredników Warszawa Mokotów ul. Bartycka · 3 piętro

415 380
8 600 zł/m²
48
2 pok.
Warszawa Mokotów, Bartycka - lokalizacja przybliżona
Deweloper APM Development Inwestycja Bartycka Residence 85 Numer lokalu M26
Bezpośrednio od dewelopera

Nowe mieszkanie 2-pokojowe o powierzchni 48,30 m² w inwestycji Bartycka Residence 85 dewelopera APM Development, na 3 piętrze w budynku 85 pod adresem ul. Bartycka 85, Warszawa Mokotów. Planowany termin oddania to IV kwartał 2016 roku.

Bartycka 85 to nowy projekt mieszkaniowy APM Development realizowany od stycznia na Mokotowie. Od lat specjalizujemy się w budownictwie mieszkaniowym, jednak na tle dotychczasowych realizacji ta zabudowa będzie wyjątkowa. Naszym celem stało się zrealizowanie ekskluzywnej wizji mieszkań skierowanej do osób, które szczególnie cenią sobie kameralność, swobodę i dużą ilość zieleni.

Wiele czynników wpłynęło na wybór dolnego Mokotowa do realizacji projektu Bartycka 85. To ten zakątek Warszawy cieszy się największym powodzeniem wśród naszych Klientów, bowiem łączy w sobie walory cichej, zielonej i kameralnej okolicy z bardzo dogodnym dostępem do centrum miasta. Właśnie dlatego chcieliśmy stworzyć Klientom możliwość zamieszkania tu we własnym idealnym mieszkaniu.

Z ulicy Bluszczańskiej do wszelkich atrakcji w sercu stolicy mamy niespełna 5 km, które możemy pokonać samochodem lub autobusem, ponieważ tuż przy inwestycji znajduje się przystanek autobusowy. Zielone i ciche sąsiedztwo gwarantuje wypoczynek w scenerii nadwiślańskiej przyrody. Prestiżowy adres, a jednocześnie bliskość centrum stanowią o wyjątkowym charakterze tej okolicy.

W jednym bardzo kameralnym budynku odnajdą Państwo mieszkania dwupokojowe o powierzchni ok. 46 m2 i trzypokojowe o powierzchni ok. 55 m2. Do każdego z nich zaprojektowaliśmy osobny balkon lub taras. Wysokość tych lokali będzie wynosić 2,7 m.

Na osoby, które marzą o metrażu powyżej 100 m2, będą czekały dwa wyjątkowe czteropokojowe mieszkania usytuowane na ostatnim – czwartym piętrze. Wyjątkową zaletą tych lokali będą ogrody, znajdujące się na dachu, które powiększą powierzchnię do korzystania o dodatkowe 80 m2. Wysokość mieszkań na najwyższym piętrze wyniesie nieco więcej niż w niżej położonych – 2,8 m.

We wszystkich mieszkaniach zaprojektowaliśmy przestronne pokoje dzienne z otwartymi kuchniami, duże sypialnie, łazienki oraz miejsca na zabudowę garderobianą.

Wokół budynku proponujemy zagospodarowanie terenu zielonym ogrodem, na który prowadzić będą wyjścia z budynku. Wszystko przemyślane w najdrobniejszym detalu z myślą o tych, którzy marzą o małej ucieczce od zgiełku miasta.

Projektując układ tych mieszkań, postawiliśmy na klasyczne i niezmiennie funkcjonalne rozwiązania, zapewniające wysoki komfort życia i bezpieczeństwa dla przyszłych mieszkańców. Proste bryły budynków podkreślimy szlachetnymi elementami dekoracyjnymi, zaś zaprojektowane duże przestronne okna doskonale doświetlą mieszkania i dodadzą im przestrzeni.

Bogactwo zastosowanych rozwiązań technicznych i architektonicznych, wysokiej klasy materiały wykończeniowe oraz staranność wykonania każdego elementu budynku pozwolą cieszyć się swobodą życia we własnym idealnym mieszkaniu.

  • Oferta z rynku pierwotnego
  • Na sprzedaż mieszkanie 2-pokojowe o powierzchni 48,30 m² balkon, osobna kuchnia
  • 3 piętro w budynku rok budowy 2016
  • Warszawa, Mokotów ul. Bartycka
  • Mieszkanie do wykończenia  
  • Odrębna własność z księgą wieczystą  

Pozostałe nieruchomości tego dewelopera: Mieszkania APM Development Warszawa Mieszkania APM Development Bartycka Residence 85 Warszawa Mieszkania 2-pokojowe APM Development Bartycka Residence 85 Warszawa