Działka na sprzedaż bez pośredników
Rawica Stara  

Działka rolno-budowlana Rawica Stara. Zdjęcie 1

Działka na sprzedaż bez pośredników Rawica Stara

366 000
60 zł/m²
6 100
Rawica Stara - lokalizacja przybliżona
Bezpośrednio od właściciela

Jeśli nie potrzebujesz pośrednika, zaoszczędzisz około 11 000 zł. Potrzebujesz wsparcia? Skorzystaj z pomocy agenta.

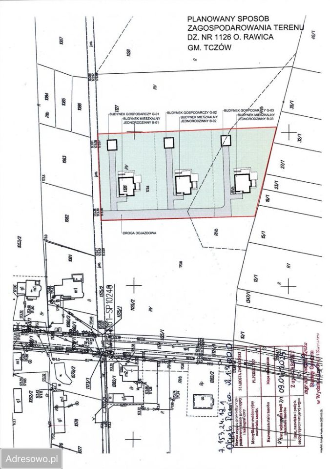
Oferuję na sprzedaż atrakcyjną nieruchomość gruntową położoną w miejscowości Rawica, gmina Tczów, oznaczoną jako działka nr 1126 o powierzchni 0,61 ha.

Nieruchomość stanowi doskonałą propozycję zarówno dla inwestora, jak i dla osób poszukujących większego terenu pod realizację zabudowy mieszkaniowej w spokojnej, zielonej okolicy. Dla działki przygotowano i uzgodniono projekt decyzji o warunkach zabudowy obejmujący budowę trzech budynków mieszkalnych jednorodzinnych, trzech budynków gospodarczych oraz drogi wewnętrznej, co istotnie zwiększa potencjał inwestycyjny nieruchomości.

Działka położona jest w bardzo korzystnym otoczeniu — z jednej strony zapewnia ciszę, przestrzeń i otwarty widok na tereny zielone, z drugiej znajduje się w sąsiedztwie istniejącej zabudowy jednorodzinnej, co tworzy atrakcyjne i naturalne warunki do dalszego rozwoju mieszkaniowego. Bezpośredni dojazd drogą asfaltową stanowi dodatkowy atut nieruchomości. Istotną zaletą jest również fakt, że media zlokalizowane są bardzo blisko działki, co ułatwia planowanie przyszłej zabudowy i podnosi atrakcyjność nieruchomości z punktu widzenia inwestycyjnego.

Teren jest rozległy, ustawny i daje szerokie możliwości zagospodarowania. Wstępna koncepcja podziału i zabudowy przewiduje czytelne rozmieszczenie planowanych budynków oraz wewnętrzny układ komunikacyjny, co pozwala myśleć o tej nieruchomości jako o gotowym gruncie pod kameralną inwestycję mieszkaniową.

Najważniejsze atuty nieruchomości:
- działka o powierzchni 6100 m²,
- Rawica, gmina Tczów,
- działka nr 1126,
- uzgodniony projekt warunków zabudowy,
- możliwość realizacji 3 domów jednorodzinnych,
- przewidziana droga wewnętrzna,
- dojazd drogą asfaltową,
- media w bardzo bliskiej odległości,
- spokojna okolica z zabudową jednorodzinną i dużą ilością terenów otwartych,
- idealna propozycja pod inwestycję deweloperską, lokatę kapitału lub zabudowę rodzinną.

To miejsce dla osób, które cenią przestrzeń, spokój i potencjał inwestycyjny, a jednocześnie chcą korzystać z atutów rozwijającej się okolicy.

  • Rawica Stara, gmina Tczów, powiat zwoleński  
  • Na sprzedaż działka rolno-budowlana o powierzchni 6 100 m²  
  • Wymiary Szerokość: 6100 m
  • Dojazd asfalt
  • Ogrodzenie bez ogrodzenia
  • Oferta bezpośrednio od właściciela dodana ponad tydzień temu i zaktualizowana dzisiaj
Ta nieruchomość może być Twoja od.. sprawdź
73000 zł (20%) Okres spłaty: 30 lat

Podobne działki na sprzedaż

1
Działka rolno-budowlana Strykowice Błotne

255 000

3,78 ha

Sprzedam grunt rolny i działkę rolno budowlaną o nr 337 i 338/2 o pow. pierwsza 3,24 ha, druga 0,536 h RAZEM 3,7771 ha. Działka rolno-budowlana nr 338/2 z dostępem do drogi S12 zjazd asfaltowy, częściowo uzbrojona, wydana decyzja pozwolenia na budowę budynku mieszkalnego. Szerokość 25 m. Działka 337...

Zobacz ogłoszenie
1
Działka rolno-budowlana Zwoleń, ul. św. Jana

258 500

4700

Sprzedam działkę rolno-budowlaną o powierzchni 4700 m². Działka znajduje się w Zwoleniu przy ulicy Jana Pawła II przy trasie Radom-Puławy. Wjazd z drogi głównej. Cena 55 zł za m². Zapraszam do kontaktu.

Zobacz ogłoszenie
4
Działka rolno-budowlana Podzakrzówek

319 000

1,93 ha

Do sprzedania obszar o powierzchni 1,93 ha złożony z pięciu działek: 219/2 - działka o powierzchni 24 ar zabudowana obecnie budynkiem gospodarczym i cztery działki rolne: 218 - 1,41 ha oraz 509, 515, 555 - łącznie 28 ar. Działki 219/2 oraz 218 położone są przy drodze asfaltowej Tczów-Kazanów, natomi...

Zobacz ogłoszenie
4
Działka rolno-budowlana Szczęście

250 000

5400

Na sprzedaż działka z budynkami gospodarczymi o powierzchni 0,54 ha. Działka jest w kształcie kwadratu, o płaskiej powierzchni. Na działce znajdują się media takie jak: woda ze studni, prąd, zbiornik na nieczystości. Budynki do generalnego remontu lub rozbiórki.  Działka jest atrakcyjna, gdyż leży ...

Zobacz ogłoszenie
4
Działka rolno-budowlana Niedarczów Dolny-Wieś

300 000

1,09 ha

Na sprzedaż działka o powierzchni niecałe 1.1ha (10 913m²). Na działce jest już woda. Słup elektryczny w drodze. Dojazd do działki drogą asfaltową. Na sąsiednich działkach zabudowa jednorodzinna.

Zobacz ogłoszenie
1
Działka rolno-budowlana Zwoleń

460 000

1,16 ha

Do sprzedania dzialka w zwoleniu. Wjazd z drogi asfaltowej. Szerokość 65 metrów.

Zobacz ogłoszenie