Działka na sprzedaż bez pośredników
Suchodół Szlachecki  

Działka rekreacyjna Suchodół Szlachecki. Zdjęcie 1

Działka na sprzedaż bez pośredników Suchodół Szlachecki

295 000
37 zł/m²
8 000
Suchodół Szlachecki - lokalizacja przybliżona
Bezpośrednio od właściciela

Jeśli nie potrzebujesz pośrednika, zaoszczędzisz około 8 900 zł. Potrzebujesz wsparcia? Skorzystaj z pomocy agenta.

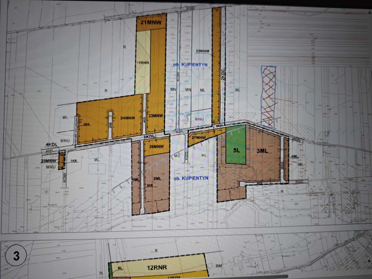
Dzień dobry, na sprzedaż oferuję 3 działki o łącznej powierzchni 8000 m2 (0,8h). Położone w okolicy zalewu Niewiadoma. Działki widnieją jako grunty orne (klasy V, VI) o powierzchni ok. 0,26h, oraz działka leśna o powierzchni ok. 0,54h. Do sąsiedniej działki został doprowadzony prąd. Do działki przylega gminna droga asfaltowa. Na planie zagospodarowania przestrzennego teren oznaczony jest jako ML - teren zabudowy letniskowej lub rekreacji indywidualnej. Odległość do zbiornika wodnego wynosi ok. 250m. Na zdjęciach nr 5 i 7 znajduje się dokładna lokalizacja działki. Zainteresowane osoby zapraszam do kontaktu telefonicznego. Jeśli nie odbieram, proszę o SMS, oddzwonię.

  • Suchodół Szlachecki, gmina Sabnie, powiat sokołowski  
  • Na sprzedaż działka rekreacyjna o powierzchni 8 000 m²  
  • Dojazd asfalt
  • Oferta bezpośrednio od właściciela dodana ponad miesiąc temu i zaktualizowana 3 dni temu
Ta nieruchomość może być Twoja od.. sprawdź
59000 zł (20%) Okres spłaty: 30 lat

Podobne działki na sprzedaż

6
Działka rekreacyjna Kamieńczyk

199 000

1,07 ha

10.700m2 Kamieńczyk nad Bugiem gm. Sterdyń pow. Sokołowski. Przy drodze asfaltowej Matejki-Kamieńczyk ok. 47 m na ok. 217 m w stronę rzeki. Zgodnie z PZP można dzielić na mniejsze działki - ok. 1.000m2 po 50 zł/m2 ew. 1800m2 po 40zł/m2. 350m do wsi, sklepu i PKS. W sąsiedztwie Nadburzański Park Kra...

Zobacz ogłoszenie
4
Działka rekreacyjna Rudniki

280 000

1400

Pilnie sprzedam drewniany dom letniskowy, piętrowy.

Zobacz ogłoszenie