Działka na sprzedaż bez pośredników
ul. Augustówka Warszawa Mokotów

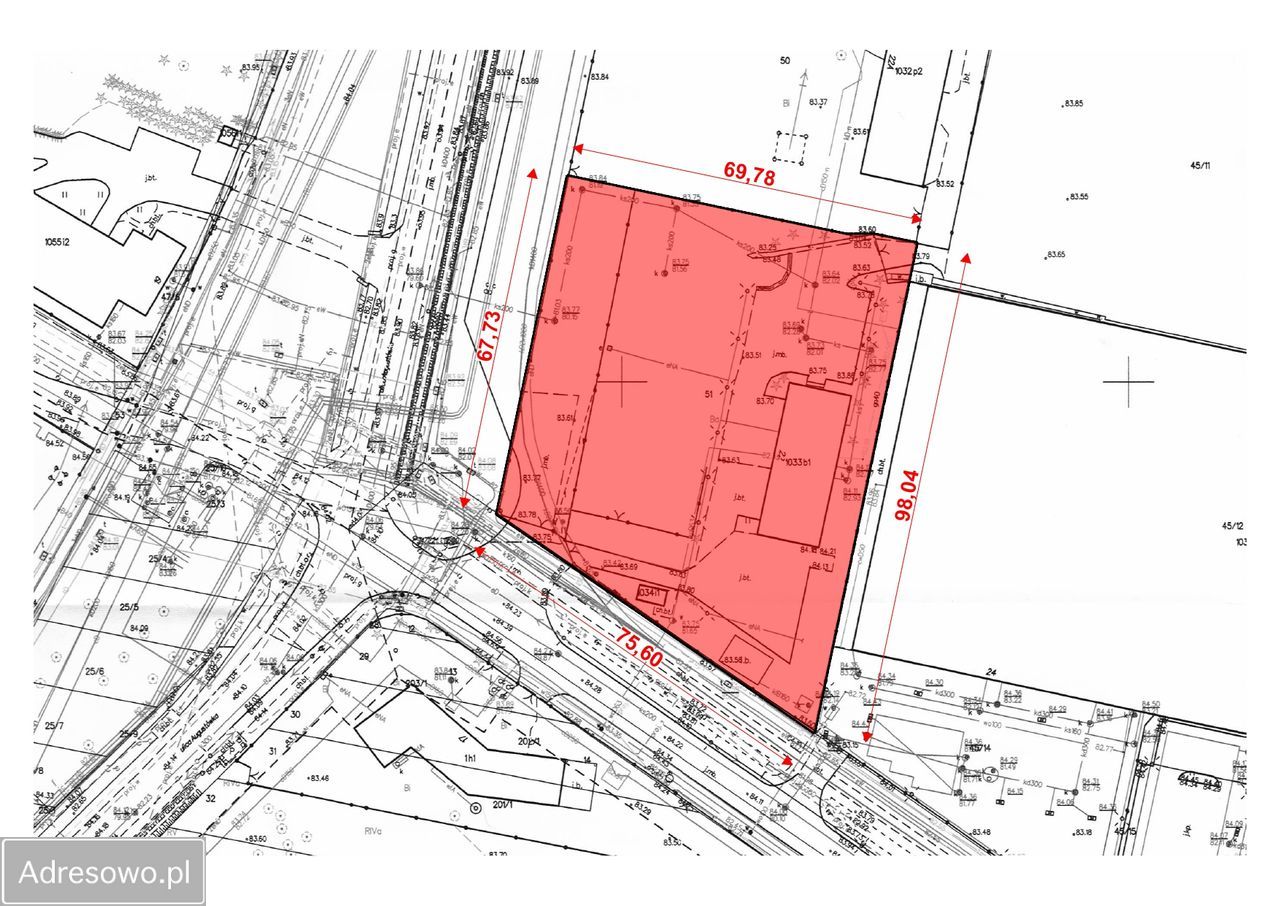
Działka inwestycyjna Warszawa Mokotów, ul. Augustówka. Zdjęcie 1

Działka na sprzedaż bez pośredników Warszawa Mokotów ul. Augustówka

16 000 000
2 781 zł/m²
5 753
Warszawa Mokotów, Augustówka - lokalizacja przybliżona
Bezpośrednio od właściciela

Jeśli nie potrzebujesz pośrednika, zaoszczędzisz około 480 000 zł. Potrzebujesz wsparcia? Skorzystaj z pomocy agenta.

Do sprzedania działka przemysłowa pow. 5753m2. Mokotów-Siekierki, ul. Augustówka. Wydane warunki zabudowy budynku biurowego z usługami w parterze i garażem podziemnym i naziemnym. Trzy kondygnacje naziemne, jedna kondygnacja podziemna (garaż). Powierzchnia zabudowy: 1668,37m2, pow. całkowita 7404m2 w tym naziemna 5005m2, podziemna 2399m2. Powierzchnia użytkowa: 4004m2 w tym usługowa 1334m2, biurowa 2670m2. Powierzchnia garażu podziemnego 2130m2. Liczba miejsc parkingowych 110, w tym w garażu 63, na terenie 47. Pełna własność.

  • ul. Augustówka, Warszawa Mokotów  
  • Na sprzedaż działka inwestycyjna o powierzchni 5 753 m²  
  • Dojazd asfalt
  • Media woda, kanalizacja, prąd
  • Oferta bezpośrednio od właściciela dodana wczoraj

Podobne działki na sprzedaż

1
Działka inwestycyjna Warszawa Wesoła

12 500 000

1 ha

Zachęcam do zapoznania się z ofertą sprzedaży dużej działki o całkowitej powierzchni blisko 1 ha, znajdującej się w Warszawie. Jest to bardzo dobra okazja z ogromnym potencjałem inwestycyjnym. Teren posiada wszystkie podłączenia oraz aktualnie jest częściowo zabudowany. Istnieje możliwość dalszej ro...

Zobacz ogłoszenie
3
Działka inwestycyjna Warszawa Włochy

15 000 000

8311

W ofercie sprzedaży działka usługowa o powierzchni 8311m2, zlokalizowana w dzielnicy Warszawa - Włochy. Przeznaczenie działki usługi- typ U1 w miejscowym planie zagospodarowania terenu: a) przeznaczenie podstawowe - usługi z zakresu: biur, centrów konferencyjnych, obsługi finansowej, administracji...

Zobacz ogłoszenie
1
Działka inwestycyjna Warszawa Śródmieście, ul. Puławska

15 000 000

6416

Na sprzedaż są działki o powierzchni 6416 m² w centrum miasta. Nr działek: 6.5/1, 6.5/2, 6.5/3, 6.7, 6.8, 6.9/1, 6.9/10. Działki posiadają dostęp do asfaltowej drogi oraz wszystkie media, w tym prąd, wodę, gaz, telefon i kanalizację. Otoczona jest ogrodzeniem i stoi na terenie z dostępem do otwart...

Zobacz ogłoszenie
4
Działka inwestycyjna Warszawa Bielany

15 000 000

1175

DZIAŁKA INWESTYCYJNA - METRO SŁODOWIEC - BIELANY Na sprzedaż atrakcyjna działka inwestycyjna, położona na Bielanach, w bezpośrednim sąsiedztwie stacji metra Słodowiec, u zbiegu ul. Marymonckiej i Chlewińskiej. Blisko granicy z dzielnicą Żoliborz. Powierzchnia działki: ok. 1 175 m² Przeznaczenie: z...

Zobacz ogłoszenie
2
Działka inwestycyjna Warszawa Białołęka, ul. Ostródzka

12 000 000

1,2 ha

12 000 m² Warszawa Białołęka, ul. Ostródzka Cena: 1 000 zł/m² | Bezpośrednio od właściciela Na sprzedaż atrakcyjny teren inwestycyjny, składający się z 2 działek (33/2 i 34) o łącznej powierzchni ok. 12 000 m². Pełna dokumentacja, analiza MPZP i koncepcja inwestycyjna do wglądu. Potencjał to 28 ...

Zobacz ogłoszenie
1
Działka inwestycyjna Warszawa Praga-Południe, ul. Grochowska

12 900 000

1365

Działka inwestycyjna z gotową koncepcją zabudowy | ul. Grochowska 90, Warszawa – Praga-Południe Na sprzedaż działka inwestycyjna o powierzchni 1365 m² zlokalizowana przy ul. Grochowskiej 90, w dynamicznie rozwijającej się części warszawskiej Pragi-Południe. Nieruchomość objęta miejscowym planem za...

Zobacz ogłoszenie