Działka na sprzedaż bez pośredników
Lębork  

NOWA OFERTA
Działka inwestycyjna Lębork. Zdjęcie 1

Działka na sprzedaż bez pośredników Lębork

7 490 000
130 zł/m²
57 720
Lębork - lokalizacja przybliżona
Bezpośrednio od właściciela

Jeśli nie potrzebujesz pośrednika, zaoszczędzisz około 224 700 zł. Potrzebujesz wsparcia? Skorzystaj z pomocy agenta.

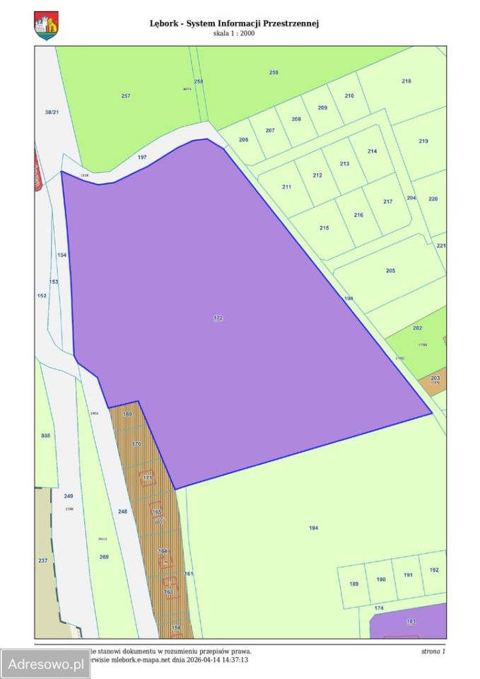
Na sprzedaż działka inwestycyjna - Lębork, obręb 12 - teren przemysłowy.

Na sprzedaż atrakcyjna działka inwestycyjna nr 172 o powierzchni 5,77 ha, położona w Lęborku. Nieruchomość objęta jest planem ogólnym z przeznaczeniem pod zabudowę przemysłową.

To idealna lokalizacja dla inwestycji produkcyjnych, magazynowych oraz logistycznych - szczególnie ze względu na bliskość trasy S6, zapewniającej szybkie połączenie z Trójmiastem i zachodnią częścią regionu.

Kluczowe atuty:
- powierzchnia: 57 720 m² - duży potencjał inwestycyjny
- przeznaczenie: teren przemysłowy (produkcja, logistyka, magazyny)
- bliska odległość od trasy S6 - świetna komunikacja
- dojazd drogą wojewódzką
- uzgodniony zjazd z ZDW - gotowość pod inwestycję
- regularny kształt działki - łatwe projektowanie zabudowy

Możliwe wykorzystanie:
- hale produkcyjne
- centra logistyczne i magazynowe
- bazy transportowe
- zakłady usługowo-przemysłowe
- inwestycje komercyjne pod wynajem

Dodatkowe informacje:
Działka stanowi bardzo dobrą propozycję dla inwestorów poszukujących dużego terenu z zapewnionym dostępem do infrastruktury drogowej. Uzgodniony zjazd z drogi wojewódzkiej znacząco skraca proces przygotowania inwestycji.

  • Lębork, powiat lęborski  
  • Na sprzedaż działka inwestycyjna o powierzchni 5,77 ha (57 720 m²)  
  • Dojazd asfalt
  • Ogrodzenie bez ogrodzenia
  • Media kanalizacja, prąd
  • Oferta bezpośrednio od właściciela dodana dodana dzisiaj
Ta nieruchomość może być Twoja od.. sprawdź
1498000 zł (20%) Okres spłaty: 30 lat