Działka na sprzedaż bez pośredników
Bielany Wrocławskie  

NOWA OFERTA
Działka inwestycyjna Bielany Wrocławskie. Zdjęcie 1

Działka na sprzedaż bez pośredników Bielany Wrocławskie

4 620 000
700 zł/m²
6 600
Bielany Wrocławskie - lokalizacja przybliżona
Bezpośrednio od właściciela

Jeśli nie potrzebujesz pośrednika, zaoszczędzisz około 138 600 zł. Potrzebujesz wsparcia? Skorzystaj z pomocy agenta.

Witam,

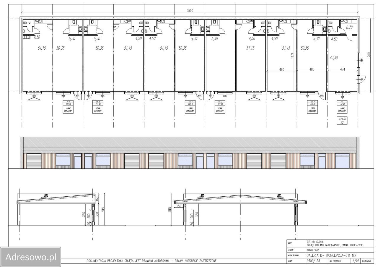
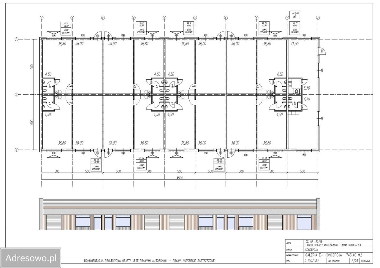
Posiadamy atrakcyjne grunty usługowe w Bielanach Wrocławskich z dostępem do wszystkich mediów.
Aktualnie jesteśmy w trakcie uzyskiwania pozwolenia na budowę kompleksu o łącznej powierzchni PUM 1890 m2 biurowo-magazynowego.
Ideą projektu jest stworzenie parku biznesowego dla małych firm pokroju serwis IT, usługi rzemieślnicze, małe biura z niewielkimi magazynami.

Cena po uzyskaniu pozwolenia na budowę będzie o 100 zł na 1m2 większa.
Podana cena jest netto plus 23% VAT.

Na działce jest możliwość zabudowy do 85% działki i wysokości nawet 24 m (możliwy PUM do uzyskania na 6 kondygnacjach wynosi 8300 m2).
Posiadamy w tym miejscu w sumie 1,5 ha gruntów z możliwością wydzielenia mniejszych bądź większych działek.

Zapraszam do kontaktu. Przy zakupie większego areału możliwość negocjacji ceny.

Jesteśmy firmą deweloperską, także możemy też zaproponować sprzedaż gruntów wraz z wybudowaniem całego kompleksu.
Cena za 1m2 to 11 000 zł.
Kompleks na wizualizacji znajduje się na działce 6600 m2.
Cena za gotową, wybudowaną inwestycję to 20 790 000 zł netto.
Możemy planowaną inwestycję sprzedać również na pojedyncze budynki lub pojedyncze działki na jeden budynek z pozwoleniem lub bez.

Zapraszam do kontaktu.

  • Bielany Wrocławskie, gmina Kobierzyce, powiat wrocławski  
  • Na sprzedaż działka inwestycyjna o powierzchni 6 600 m²  
  • Dojazd asfalt
  • Media woda, kanalizacja, prąd, gaz
  • Oferta bezpośrednio od właściciela dodana dodana dzisiaj
Ta nieruchomość może być Twoja od.. sprawdź
924000 zł (20%) Okres spłaty: 30 lat

Podobne działki na sprzedaż

1
Działka inwestycyjna Radwanice, ul. Grafitowa

zapytaj

4000

Wielkość działki do uzgodnienia.

Zobacz ogłoszenie
2
Działka inwestycyjna Krajków, ul. Wschodnia

6 408 750

2,56 ha

Działki o powierzchni 2.56 ha znajdujące się w miejscowości Krajków (15 km od Wrocławia), woj. Dolnośląskie, gm. Żórawina, numer ewidencyjny działek - 36/1 oraz 36/2. Dojazd do działek z drogi dojeżdżającej do miejscowości oraz z drogi wojewódzkiej Strzelińskiej (droga łącząca Wrocław ze Strzelinem)...

Zobacz ogłoszenie
4
Działka inwestycyjna Mędłów, ul. Długopolska

5 026 000

3,59 ha

Sprzedam działkę inwestycyjna o powierzchni 3,59 ha. Działki numer 29,30 przy ul Dlugopolskiej.Działki znajdują się w studium z możliwością budowy.

Zobacz ogłoszenie
2
Działka inwestycyjna Długołęka, ul. Okrężna

4 250 000

1,7 ha

Wyznacza się tereny oznaczone na rysunku planu symbolem U/P 1, dla których obowiązują następujące ustalenia szczegółowe: 1. Funkcja wiodąca terenu: aktywność gospodarcza z wykluczeniem inwestycji uciążliwych. 2. Za zgodne z funkcją wiodącą terenu uznaje się: lokalizację obiektów działalności gospo...

Zobacz ogłoszenie
5
Działka inwestycyjna Wilczkowice

zapytaj

2,31 ha

Sprzedam działkę inwestycyjną przy drodze nr 8, obok wsi Wilczkowice, gmina Jordanów Śląski o powierzchni 2,31 h. MPZP jest aktualnie w opracowaniu i do końca roku ma być zatwierdzony. Działka będzie oznaczona jako teren lokalizacji funkcji przemysłowo-składowych z przeznaczeniem na cele nirolnicze...

Zobacz ogłoszenie
5
Działka inwestycyjna Kobierzyce

3 792 000

2,53 ha

Dzień dobry, Do sprzedaży działki o bardzo korzystnej lokalizacji przy samej drodze krajowej nr 8. - Odległość od centrum Wrocławia - 26km - Odległość od drogi S8 - 8km - Odległość od autostrady A4 - 14km Na sprzedaż poniższe działki: 91/3 - 0,554 ha 91/4 - 0,554 ha 92 - 1,42 ha MPZP pod ...

Zobacz ogłoszenie