Działka na sprzedaż bez pośredników
ul. Ogrodnicza Skokówka

Działka budowlana Skokówka, ul. Ogrodnicza. Zdjęcie 1

Działka na sprzedaż bez pośredników Skokówka ul. Ogrodnicza

287 490
210 zł/m²
1 369
Skokówka, Ogrodnicza - lokalizacja przybliżona
Bezpośrednio od właściciela

Jeśli nie potrzebujesz pośrednika, zaoszczędzisz około 8 600 zł. Potrzebujesz wsparcia? Skorzystaj z pomocy agenta.

Sprzedam działkę budowlaną: ul. Ogrodnicza Skokówka gm. Zamość, 10 minut do centrum.
- Działka płaska, nasłoneczniona,
- Media: biegną w drodze,
- Dojazd: droga gminna asfaltowa,
- Położenie: ulica „ślepa” o małym natężeniu ruchu z dala od miejskiego zgiełku,
- Okolica: wokół zabudowa jednorodzinna,
- Idealne dla osób aktywnych zawodowo, ceniących bliskość do centrum Zamościa jak i zielonego Roztocza.

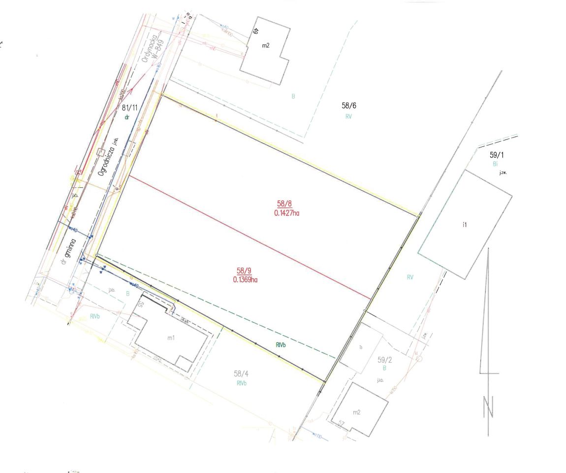
  • ul. Ogrodnicza, Skokówka, gmina Zamość, powiat zamojski  
  • Na sprzedaż działka budowlana o powierzchni 1 369 m²  
  • Numer ewidencyjny działki 58/9
  • Wymiary Wymiary działki: Kształt zbliżony do trapezu: 64,91 x 22,54 x 62,27 x 20,62 [m]
  • Dojazd asfalt
  • Ogrodzenie bez ogrodzenia
  • Media woda, kanalizacja, prąd, gaz
  • Oferta bezpośrednio od właściciela dodana ponad miesiąc temu
Ta nieruchomość może być Twoja od.. sprawdź
57000 zł (20%) Okres spłaty: 30 lat

Podobne działki na sprzedaż

16
Działka budowlana Szopinek Stara Wieś

369 000

3000

Witam posiadam do sprzedania działkę pod zabudowę jednorodzinna z wydana decyzja na zabudowe jednorodzinna budynku 17 m na 17 m. Działa położona w miejscowości Szopinek. Do działki dojazd możliwy jest droga asfaltową od strony miejscowości Majdan ok 900 metrów. Działka o wymiarach około 50 metrów sz...

Zobacz ogłoszenie
7
Działka budowlana Wólka Wieprzecka

200 000

2408

Witam, do sprzedaży oferuję uzbrojoną działkę o powierzchni 2408m2 wraz z budynkami: domem, stodołą, piwnicą. Działka znajduje się na Roztoczu w miejscowości Wólka Wieprzecka. Okolica jest idealna dla miłośników aktywnego wypoczynku na świeżym powietrzu, a także dla osób ceniących sobie kontakt z pr...

Zobacz ogłoszenie
1
Działka budowlana Wólka Wieprzecka

351 500

3700

DZIAŁKA BUDOWLANA 37 ARÓW | WÓLKA WIEPRZECKA, GM. ZAMOŚĆ | WARUNKI ZABUDOWY - DOM JEDNORODZINNY Na sprzedaż atrakcyjna działka budowlana o powierzchni 3700 m² (0,37 ha), położona w miejscowości Wólka Wieprzecka, gmina Zamość. Działka posiada wydane warunki zabudowy na budowę budynku mieszkalnego je...

Zobacz ogłoszenie
5
Działka budowlana Żdanów Klucz

350 000

6948

Sprzedam działkę budowlaną z wydanymi Warunkami Zabudowy w gminie Zamość, położone miejscowość Żdanów. Identyfikator działki: 062014_2.0033.36 Powierzchnia: 6948 m², ok. 69a Lokalizacja: Spokojna i przyjazna w pobliżu skrzyżowania dróg Zamość - Krasnobród, Płoskie - Pniówek, 1 km od Zamościa, z ur...

Zobacz ogłoszenie
2
Działka budowlana Jatutów

270 000

3000

Sprzedam działkę 30a w Jatutowie: - blisko świetlicy wiejskiej, - około 4 km od Zamościa, - 2,5 km od szkoły. Możliwość podziału na cztery mniejsze.

Zobacz ogłoszenie
4
Działka budowlana Skokówka, ul. Ogrodnicza

299 670

1427

Sprzedam działkę budowlaną: ul. Ogrodnicza Skokówka gm. Zamość, 10 minut do centrum . - Działka płaska, nasłoneczniona, - Media: biegną w drodze, - Dojazd: droga gminna asfaltowa, - Położenie: ulica „ślepa” o małym natężeniu ruchu z dala od miejskiego zgiełku, - Okolica: wokół zabudowa j...

Zobacz ogłoszenie