Dom na sprzedaż bez pośredników
ul. Jęczmienna Żory Rogoźna

dom wolnostojący, 4 pokoje Żory Rogoźna, ul. Jęczmienna. Zdjęcie 1

Dom na sprzedaż bez pośredników Żory Rogoźna ul. Jęczmienna

1 390 000
10 773 zł/m²
129
4 pok.
Żory Rogoźna, Jęczmienna - lokalizacja przybliżona
Bezpośrednio od właściciela

Jeśli nie potrzebujesz pośrednika, zaoszczędzisz około 41 700 zł. Potrzebujesz wsparcia? Skorzystaj z pomocy agenta.

Dom z garażem - wysoki standard, bez podatku PCC!

Idealna oferta dla rodziny, która chce wprowadzić się od razu, bez remontów, stresu i dodatkowych kosztów.

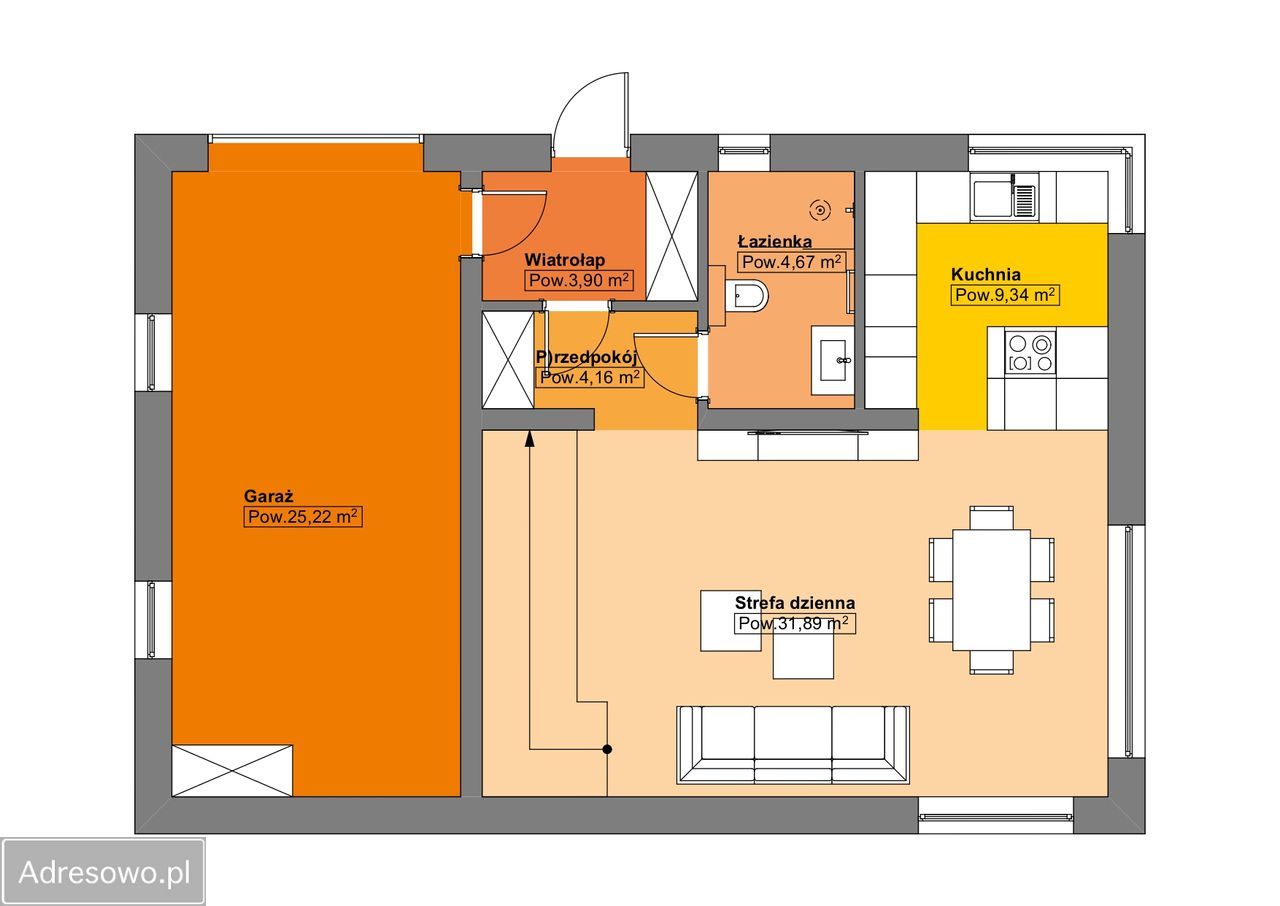
Na sprzedaż nowoczesny, piętrowy dom o powierzchni użytkowej 129,03 m², położony w Żorach przy ul. Jęczmiennej (dzielnica Rogoźna).
Budynek został właśnie wykończony pod klucz - wszystkie prace zostały zakończone, a dom jest gotowy do zamieszkania.

DLACZEGO TA OFERTA JEST WYJĄTKOWA?

- Nie płacisz 2% podatku PCC - sprzedaż z VAT, nawet jeśli posiadasz już inną nieruchomość.
- Możliwa zamiana na Twoje mieszkanie, dom lub działkę - z opcją zamieszkania do czasu przeprowadzki.
- Elastyczne warunki płatności - 70% przy zakupie, pozostałe 30% nawet po roku, bez odsetek i dodatkowych kosztów.

STANDARD I WYPOSAŻENIE:

- Dom w pełni wykończony w standardzie PREMIUM.
- W cenie nowoczesna zabudowa kuchenna z wyspą i kompletnym sprzętem AGD.
- Ogrzewanie gazowe, podłogowe na całej powierzchni.
- Budynek ocieplony (ściany i dach), okna trzyszybowe.
- Automatyczne rolety zewnętrzne, wybrukowany podjazd i taras.
- Przygotowana instalacja pod fotowoltaikę.
- Wszystko nowe, gotowe do zamieszkania - bez żadnych prac wykończeniowych!

ROZKŁAD POMIESZCZEŃ:

- Parter: przestronny salon z kuchnią i jadalnią, wyjście na taras, łazienka, przedpokój oraz garaż.
- Piętro: trzy niezależne sypialnie, duża łazienka, osobna garderoba.

DZIAŁKA I OTOCZENIE:

- Powierzchnia działki 723 m², w całości ogrodzona, z bramą wjazdową.
- Dostępne wszystkie media: prąd, woda, gaz, kanalizacja.
- Możliwość podłączenia światłowodu.
- Dojazd prywatną, zamykaną drogą z kostki brukowej.
- Spokojna, zielona okolica w sąsiedztwie lasu.
- Szybki dojazd do centrum Żor oraz autostrady A1.
- W pobliżu szkoła, sklepy i komunikacja miejska.

Ten dom to połączenie nowoczesności, komfortu i funkcjonalności - idealny dla osób, które cenią wysoką jakość, spokój i wygodę życia.

Jeśli szukasz gotowego, nowoczesnego domu bez żadnych nakładów i formalności - ta nieruchomość jest właśnie dla Ciebie!

  • ul. Jęczmienna, Żory Rogoźna  
  • Na sprzedaż dom wolnostojący o powierzchni 129,03 m², 4 pokoje wybudowany w 2025 roku
  • Sizing Streamline Icon: https://streamlinehq.com
    Działka 723 m²  
  • Budynek w stanie do zamieszkania, z aneksem kuchennym  
  • Taras, garaż  
  • Ogrzewanie gazowe
  • Materiał budowy cegła
  • Dach dachówka
  • Dojazd asfalt
  • Ogrodzenie metalowe
  • Media woda, kanalizacja, prąd, gaz
  • Oferta bezpośrednio od właściciela dodana ponad miesiąc temu i zaktualizowana ponad tydzień temu
Ta nieruchomość może być Twoja od.. sprawdź
278000 zł (20%) Okres spłaty: 30 lat

Podobne domy na sprzedaż

19
dom wolnostojący, 5 pokoi Żory, ul. Wodzisławska

1 350 000

136

5 pok.

Na sprzedaż przestronny i zadbany dom jednorodzinny z 2009 roku, położony w spokojnej i zielonej okolicy – idealny dla rodziny szukającej wygody oraz bliskości natury i miejskich udogodnień. Opis nieruchomości: • Rok budowy: 2009 • dachówka ceramiczna, pustak ceramiczny - Porotherm, ogrzewanie po...

Zobacz ogłoszenie
10
dom wolnostojący, 4 pokoje Żory Osiny, ul. Zimowa

1 265 000

131

4 pok.

Sprzedam dom parterowy,4 pokoje, kuchnia,lszienka dwa przedpokoje.Bardzo dobra lokalizacja 5 minut do centrum Żor. Kuchnia otwarta na salon, wyposażona w płytę indukcyjna, zmywarkę,,lodówke side by side,mikrofalowke,nowe meble kuchenne na zamówienie pod wymiar. Kotłownia z piecem gazowym kondensacyj...

Zobacz ogłoszenie
8
dom wolnostojący Żory Śródmieście

1 350 000

160

Do sprzedania dom w ścisłym centrum miasta. Dom wybudowany w 2021 roku. Działka: dwa tysiące m. Dom na parterze posiada: kotłownię-schowek, łazienkę do wykończenia, sypialnie i salon otwarty z kuchnią. Na piętrze znajdują się trzy sypialnie (z tego jedna z garderobą), oraz jest pralnia i duża łaz...

Zobacz ogłoszenie
8
dom wolnostojący, 6 pokoi Żory Kleszczów, ul. Wyzwolenia

1 200 000

180

6 pok.

Dom z 2005 r. na dużej działce. W spokojnej okolicy, 3.5 km od żorskiego rynku. W pobliżu: - szkoła - sklep - przystanek - trasy rowerowe - kąpielisko Ogrzewanie gazowe i kominek z płaszczem. Duży garaż na dwa samochody z pomieszczeniem gospodarczym o pow. uż. 65 m2. Dodatkowo drewutnia na drzew...

Zobacz ogłoszenie
26
dom wolnostojący, 5 pokoi Żory Kleszczów

1 399 000

138

5 pok.

*** NOWA CENA *** KOMFORTOWY DOM BLISKO NATURY ŻORY - KLESZCZÓW Nieruchomość usytuowana w jednej z najbardziej pożądanych dzielnic Żor - Kleszczowie , spełni oczekiwania tych, którzy cenią komfort, prywatność , bliskość natury i jakość wykończenia. Wokół mnóstwo zieleni, pola i domy j...

Zobacz ogłoszenie
17
dom wolnostojący, 4 pokoje Żory Baranowice, ul. Szmaragdowa

1 250 000

157

4 pok.

Powierzchnia użytkowa domu wynosi 157,2 m², a w skład domu wchodzi: Parter: - SALON Z JADALNIĄ I KUCHNIĄ - ŁAZIENKA - WIATROŁAP - GARAŻ - POMIESZCZENIE GOSPODARCZE Piętro: - ŁAZIENKA - 1. POKÓJ - obecnie dziecięcy - 2. POKÓJ - obecnie dziecięcy - 3. POKÓJ - sypialnia - GARDEROBA Poddasze pełnouży...

Zobacz ogłoszenie