Dom na sprzedaż bez pośredników
ul. Lewkonii Warszawa Radość

dom wolnostojący, 3 pokoje Warszawa Radość, ul. Lewkonii. Zdjęcie 1

Dom na sprzedaż bez pośredników Warszawa Radość ul. Lewkonii

1 199 000
27 884 zł/m²
43
3 pok.
Warszawa Radość, Lewkonii - lokalizacja przybliżona
Bezpośrednio od właściciela

Jeśli nie potrzebujesz pośrednika, zaoszczędzisz około 36 000 zł. Potrzebujesz wsparcia? Skorzystaj z pomocy agenta.

Biura pośrednictwa zapraszam tylko z klientem!

Dom 3-pokojowy o pow. użytkowej 43 m2 na działce o pow. 671 m2, zbudowany z cegły w latach 70. W 2024 roku budynek został zmodernizowany i całkowicie wyremontowany.

Położony w cichej i zielonej okolicy przy ul. Lewkonii w Warszawie (Radość). Bardzo blisko las i dużo terenów do spacerowania.

Nieruchomość położona w bardzo dobrym punkcie komunikacyjnym: ok. 300 m do przystanku 319, 142; do stacji Warszawa-Miedzeszyn ok. 1200 m; oraz ok. 2000 m (2 min. samochodem) do wjazdu na Południową Obwodnicę Warszawy.

W pobliżu znajdziemy sklepy, piekarnie, apteki, szkoły, przedszkola, restauracje, bary.

Stan prawny: pełna własność.

Opis domu:
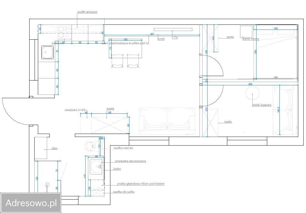
Dom ma powierzchnię mieszkalną 43 m2 i składa się z:
- salon z otwartą kuchnią - 23,5 m2
- pokój - 7,0 m2
- sypialnia - 7,5 m2
- łazienka - 5 m2

Media:
- kanalizacja (szambo)
- wodociąg
- prąd (trójfazowy)
- ogrzewanie gazowe, podłogowe

Okolica:
Parterowy budynek z cegły położony w cichej i zielonej okolicy wśród jednorodzinnych domów. Bliskość lasu.

W pobliżu znajdziemy liczne sklepy, piekarnie, apteki, lokale usługowe, szkoły, przedszkola, pocztę, restauracje, bary.

Zapraszam do kontaktu i osobistego obejrzenia nieruchomości.

  • ul. Lewkonii, Warszawa Radość  
  • Na sprzedaż dom wolnostojący o powierzchni 43 m², 3 pokoje wybudowany w 1970 roku
  • Sizing Streamline Icon: https://streamlinehq.com
    Działka 671 m²  
  • Budynek w stanie do zamieszkania, z aneksem kuchennym  
  • Ogrzewanie gazowe
  • Materiał budowy cegła
  • Dach blacha
  • Dojazd asfalt
  • Media woda, szambo, prąd, gaz
  • Oferta bezpośrednio od właściciela dodana ponad miesiąc temu i zaktualizowana ponad tydzień temu
Ta nieruchomość może być Twoja od.. sprawdź
240000 zł (20%) Okres spłaty: 30 lat

Podobne domy na sprzedaż

19
dom szeregowy, 2 pokoje Warszawa Falenica

950 000

54

2 pok.

Segment szeregowy - Warszawa (Falenica, Wawer) 64 m² powierzchni całkowitej (54 m² użytkowej) • działka 194 m² Świetnie utrzymany segment w spokojnej i dobrze skomunikowanej części Warszawy - Wawer (Falenica). Gotowy do zamieszkania, cena do lekkiej negocjacji. Układ pomieszczeń: - Łazienka - Sypi...

Zobacz ogłoszenie
2
dom szeregowy, 2 pokoje Warszawa Wawer, ul. Haczowska

890 000

60

2 pok.

Sprzedam szeregowy segment środkowy parterowy w dzielnicy Falenica-Zaporoże .Numer działki 116 W nieruchomości jest możliwość rozbudowy i nadbudowy .Bardzo dobra lokalizacja ,wszędzie blisko. W niedalekiej odległości przedszkole, szkoła ,kościół bazar ośrodek zdrowia. W otoczeniu piękne lasy , ...

Zobacz ogłoszenie
18
dom szeregowy, 3 pokoje Warszawa Wawer, ul. Gorajska

850 000

55

3 pok.

Na sprzedaż przytulny dom w zabudowie szeregowej o powierzchni 55 m² z piwnicą i garażem, położony na działce o powierzchni 247 m². Nieruchomość zlokalizowana jest w zielonej, spokojnej części Falenicy - przy ul. Gorajskiej 11, w dzielnicy Wawer. Najważniejsze informacje: • 2 pokoje + salon z aneks...

Zobacz ogłoszenie
14
inny, 2 pokoje Warszawa Białołęka, ul. Przylesie

950 000

50

2 pok.

Działka w kształcie litery L sąsiaduje z lasem który kawałkiem przynależy. Budynek nie remontowany tylko w środku odświeżany. Do niedawna zamieszkiwany na stałe w chwili obecnej na lato. W podjeździe do działki znajdują się przyłącza kanalizacji gazu i wodociągów Działka z dużym potencjałem i w sup...

Zobacz ogłoszenie