Dom na sprzedaż bez pośredników
ul. Długa Janczewo

dom wolnostojący, 3 pokoje Janczewo, ul. Długa. Zdjęcie 1

Dom na sprzedaż bez pośredników Janczewo ul. Długa

940 000
12 877 zł/m²
73
3 pok.
Janczewo, Długa - lokalizacja przybliżona
Bezpośrednio od właściciela

Jeśli nie potrzebujesz pośrednika, zaoszczędzisz około 28 200 zł. Potrzebujesz wsparcia? Skorzystaj z pomocy agenta.

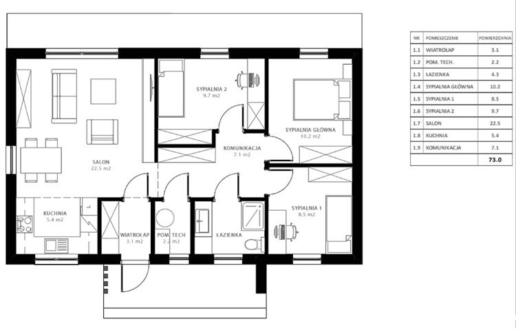
Nowy dom wolnostojący (73m2) z dużą działką (30 arów), w spokojnej okolicy.
Janczewo, gmina Santok.
Nowoczesny dom parterowy dla 4-osobowej rodziny. Część dzienna to salon połączony z kuchnią, o łącznej powierzchni 28m2. Część prywatna to trzy sypialnie, łazienka oraz pomieszczenie gospodarcze.
Dom ogrzewany jest pompą ciepła. Ogrzewanie podłogowe. Dodatkowo dom można grzać kominkiem na drewno.
Odprowadzenie ścieków do przydomowej oczyszczalni ścieków BioSolid.
Dzięki temu dom jest tani w utrzymaniu, niskie opłaty (bieżące zużycie wody, prądu).
Wybudowany w 2025 roku przez firmę Proste Domy z Gorzowa Wlkp. Posiada gwarancję na wykonanie. O jakości użytych materiałach i technologii domu można więcej poczytać na stronie https://prostedomy.com.pl/technologia/.
Sprzedaż bez umeblowania i sprzętów AGD.
Jestem osobą prywatną, bez pośredników.

  • ul. Długa, Janczewo, gmina Santok, powiat gorzowski  
  • Na sprzedaż dom wolnostojący o powierzchni 73 m², 3 pokoje wybudowany w 2025 roku
  • Sizing Streamline Icon: https://streamlinehq.com
    Działka 3 016 m²  
  • Budynek z poddaszem, w stanie do zamieszkania, z aneksem kuchennym  
  • Taras, bez piwnicy  
  • Ogrzewanie pompa ciepła
  • Materiał budowy inny
  • Dach dachówka
  • Okna plastikowe
  • Dojazd utwardzony
  • Media woda, oczyszczalnia przydomowa, prąd, gaz nieprzyłączony
  • Cena do negocjacji  
  • Świadectwo Energetyczne SCHE/****/***/2025 EU: 53.38, EK: 25.89, EP: 65.44, Jednostkowa wielkość emisji: 0.0088
  • Oferta bezpośrednio od właściciela dodana ponad miesiąc temu i zaktualizowana ponad tydzień temu
Ta nieruchomość może być Twoja od.. sprawdź
188000 zł (20%) Okres spłaty: 30 lat

Podobne domy na sprzedaż

9
dom wolnostojący, 3 pokoje Jenin, ul. Dobra

620 000

95

3 pok.

Opis Dom wolnostojący w stanie deweloperskim Na sprzedaż nowoczesny dom wolnostojący w stanie deweloperskim, położony na działce o powierzchni 3 ary. Parametry nieruchomości: Powierzchnia parter 57,6m2 plus kotłownia 5m2 Salon 22,8m2 Kuchnia 6m2 Sypialnia 10,5m2 Pokój 10,2m2 Łazienka 4m2 Przedsio...

Zobacz ogłoszenie
4
bliźniak, 4 pokoje Chwalęcice

800 000

100

4 pok.

Do sprzedaży 4 domy w zabudowie bliźniaczej, w stanie deweloperskim na nowopowstającym osiedlu Nad Bystrą w Chwalęcicach. Położone w zacisznej części Chwalęcic, w bezpośredniej bliskości natury i rzeczki Bystra, a jednocześnie z szybkim dojazdem do Gorzowa. W najbliższej okolicy: - przedszkole, - ...

Zobacz ogłoszenie
14
dom wolnostojący, 3 pokoje Kostrzyn nad Odrą Drzewice, ul. Zielona

780 000

100

3 pok.

Dom w doskonałej lokalizacji – Kostrzyn nad Odrą Cena: 780 000 zł Na sprzedaż komfortowy dom jednorodzinny z ładną działką, położony w jednej z najbardziej pożądanych i spokojnych części Kostrzyna nad Odrą. Nieruchomość znajduje się przy kameralnej ulicy zabudowy jednorodzinnej, a jednocześnie w bez...

Zobacz ogłoszenie
17
bliźniak, 3 pokoje Janczewo, ul. Orzechowa

669 000

96

3 pok.

Dom w Janczewie (Kolonia) - miejsce, w którym po prostu dobrze się żyje. To dom, w którym od razu czujesz się swobodnie. Przestrzeń jest przemyślana, ciepła i przyjazna - idealna do codziennego życia, spotkań z rodziną i spokojnych poranków przy kawie. --- Na dole znajduje się jasny salon z jadal...

Zobacz ogłoszenie
8
dom wolnostojący, 4 pokoje Rybakowo

660 000

80

4 pok.

Dom nad jeziorem, mc. Rybakowo. Wyremontowany: 3 pokoje, kuchnia z aneksem plus salon, garderoba, łazienka, prysznic i osobne WC. Taras z grillem, dom podpiwniczony z garażem. Dom położony w spokojnej okolicy. Do domu przynależy współudział w prywatnej drodze dojazdowej oraz dojściem do jeziora (o...

Zobacz ogłoszenie
21
dom szeregowy, 4 pokoje Wawrów, ul. Brzozowa

865 000

95

4 pok.

Na sprzedaż nowoczesny dom w zabudowie szeregowej z wyposażeniem - Wawrów, os. Bermudy, ul. Brzozowa. Powierzchnia: 94 m². Na sprzedaż komfortowy i nowocześnie urządzony dom w zabudowie szeregowej, położony w spokojnej i bardzo atrakcyjnej lokalizacji - Wawrów, osiedle Bermudy, ul. Brzozowa. Ideal...

Zobacz ogłoszenie