Dom na sprzedaż bez pośredników
Krzeczyn  

dom wolnostojący, 5 pokoi Krzeczyn. Zdjęcie 1

Dom na sprzedaż bez pośredników Krzeczyn

1 370 000
8 896 zł/m²
154
5 pok.
Krzeczyn - lokalizacja przybliżona
Bezpośrednio od właściciela

Jeśli nie potrzebujesz pośrednika, zaoszczędzisz około 41 100 zł. Potrzebujesz wsparcia? Skorzystaj z pomocy agenta.

Pragniesz ciszy i spokoju, z dala od zgiełku miasta? Dobrze trafiłeś.

Dom z basenem w ogrodzie, położony w malowniczej i spokojnej wsi blisko Oleśnicy i tylko 20 km od Wrocławia.

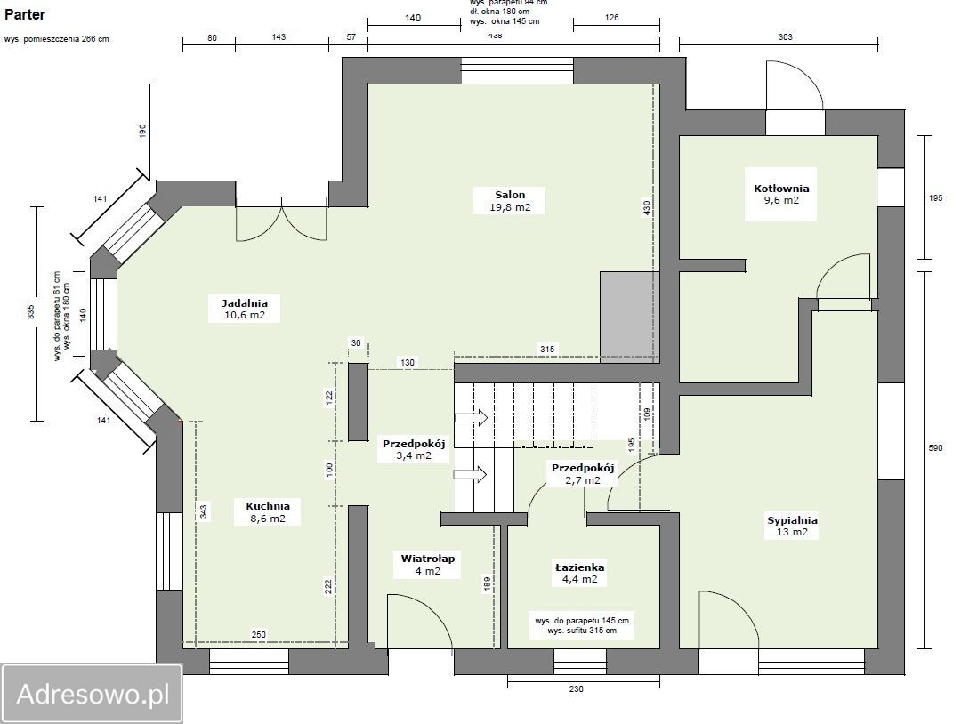
Powierzchnia domu: 154 m2

Parter - 76 m2
Salon - 19,8 m2
Jadalnia - 10,6 m2
Kuchnia - 8,6 m2
Łazienka - 4,4 m2
Sypialnia - 13 m2
Wiatrołap - 4 m2
Przedpokój - 6,1 m2
Kotłownia - 9,6 m2

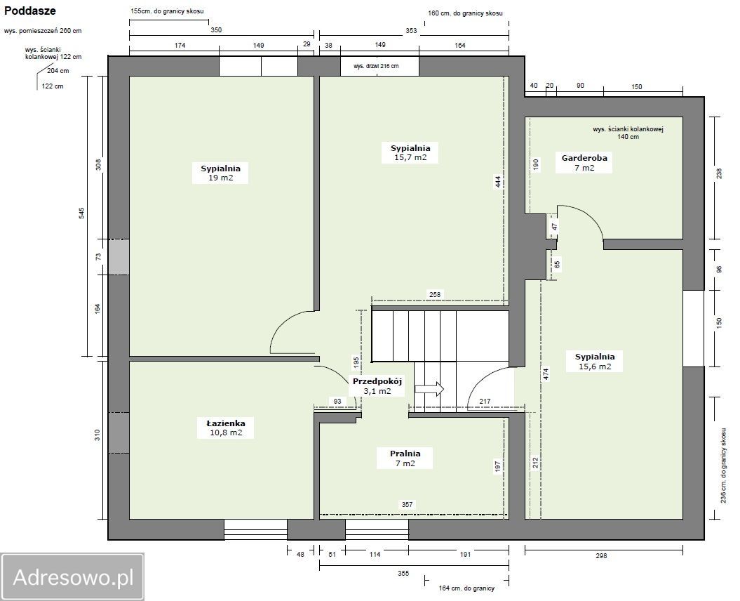
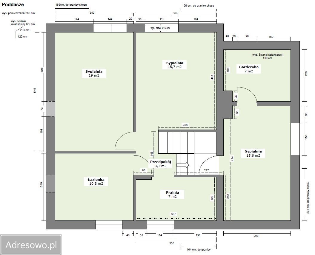
Poddasze - 78 m2 (metraż liczony po podłodze)
Sypialnia - 15,6 m2
Garderoba - 7 m2
Sypialnia - 15,7 m2
Sypialnia - 19 m2
Łazienka - 10,8 m2
Pralnia - 7 m2
Przedpokój - 3,1 m2

Na parterze znajduje się przestronny salon (19,8 m2) otwarty na jadalnię (10,6 m2) i kuchnię (8,6 m2). Otwarta przestrzeń salonu, jadalni i kuchni, ustawiona w kształcie litery L, pozwala na stały kontakt z domownikami i gośćmi przy zachowaniu odrębności pomieszczeń. Z jadalni wychodzisz na przestronny taras, skąd rozpościera się widok na ogród oraz las tuż za płotem.

Na parterze jest również pokój (13 m2) z bezpośrednim wyjściem na zewnątrz. Pokój możesz urządzić jako gabinet lub sypialnię dla gości. Obok pokoju znajduje się łazienka (4,4 m2) z toaletą i kabiną prysznicową.

Naprzeciwko łazienki są schody prowadzące na poddasze. A przestrzeń pod schodami wypełnia zabudowa na wymiar z licznymi półkami, w której jest mnóstwo miejsca na przechowywanie zapasów i sprzętów domowych.

Idąc na poddasze, na półpiętrze znajduje się duża sypialnia (15,5 m2) z garderobą (7 m2). Wysokie ściany kolankowe na 1,4 m (na węższej ścianie) pozwalają na swobodną aranżację przestrzeni.

Na poddaszu są jeszcze dwie duże sypialnie (19 m2 i 15,7 m2) z podwójnymi drzwiami balkonowymi i wyjściem na szeroki, 8-metrowy balkon. Ściany kolankowe na poddaszu również są wysokie (1,22 m), dzięki czemu masz tutaj również duże możliwości aranżacyjne. Można postawić przy nich łóżko, biurko czy wysokie komody.

Olbrzymim atutem domu jest duża, prawie 11-metrowa, jasna łazienka z 2-metrową wanną oraz obszerną kabiną prysznicową (1,5 m2). W łazience są dwa okna: jedno zwykłe, drugie połaciowe nad wanną. Obok łazienki znajduje się pralnia (7 m2), gdzie oprócz pralki postawisz suszarkę i regały na środki czystości, pościel czy ręczniki.

Z poddasza jest wyjście na duży strych. Doskonałe miejsce do przechowywania rzeczy, których nie używasz na co dzień.

Ogród z obszernym tarasem, olbrzymią ilością zieleni i spokojnym sąsiedztwem pozwala na prawdziwy relaks. W ogrodzie jest murowany grill z przestrzenią na stół. Doskonałe miejsce spotkań z rodziną i przyjaciółmi.

W centralnym punkcie ogrodu znajduje się basen (2,5 m x 5 m) otoczony liczną roślinnością. System do filtracji basenu zamontowany jest w zamykanej altanie na końcu ogrodu.

W altanie znajduje się również studnia do podlewania ogrodu z wyprowadzonymi na zewnątrz kranami. Poza tym altana spokojnie pomieści narzędzia, duży i mały sprzęt ogrodniczy, rowery i akcesoria do basenu.

Dom położony jest tuż przy lesie. Z okien rozciąga się widok ogrodu a za nim lasu. Okolica jest bardzo spokojna. To świetny dom dla rodzin z dziećmi, które wolą, żeby ich pociechy skakały na trampolinie, bawiły się w piaskownicy a latem szalały w basenie, zamiast siedzieć z tabletem w ręku. Zrobisz ogródek ziołowy, w czerwcu będziecie podjadać truskawki, w sierpniu maliny a we wrześniu spróbujecie własnych jabłek prosto z drzewa.

To też idealne miejsce dla tych, którzy mają dość miejskiego hałasu – tu złapiesz się oddech świeżym powietrzem i znajdziesz spokój, a jednocześnie zawsze możesz szybko wyskoczyć do miasta, jeśli tylko najdzie Cię taka ochota.

Szczegóły nieruchomości:

Działka 10 arów (1050 m2) .
Dom został oddany do użytku w 2012 roku.
Dom ogrzewany jest nowoczesnym piecem na pellet.
Uzupełniającym źródłem ogrzewania jest kominek w salonie. Kominek posiada rozprowadzenie ciepła na poddaszu.
W oszczędnościach na energii dodatkowo pomagają panele fotowoltaiczne (na starych zasadach).
Obszerna pralnia z suszarnią pomieści pralkę, suszarkę bębnową, regały i stojącą suszarkę.
7-metrową garderobę docenisz za wygodny i łatwy dostęp do półek z Twoimi ubraniami.
Dojazd drogą asfaltową, która kilometr dalej kończy się lasem.
Dom wyposażony jest w alarm i monitoring.
W domu zainstalowany jest centralny odkurzacz.
Media - prąd z fotowoltaiki, woda z sieci, studnia do podlewania ogrodu, przydomowa oczyszczalnia ekologiczna, światłowód.
Na parterze we wszystkich oknach zamontowane są rolety zewnętrzne. Na poddaszu w obu sypialniach rolety są na drzwiach balkonowych.

Zapraszam do kontaktu. Zadzwoń, napisz odpowiem na każde Twoje pytanie. Przyjedź i przekonaj się, że to właśnie jest Twoje miejsce.

  • Krzeczyn, gmina Oleśnica, powiat oleśnicki  
  • Na sprzedaż dom wolnostojący o powierzchni 154 m², 5 pokoi wybudowany w 2012 roku
  • Sizing Streamline Icon: https://streamlinehq.com
    Działka 1 050 m²  
  • Budynek z poddaszem użytkowym, w stanie do zamieszkania  
  • Balkon  
  • Dach dachówka
  • Okna plastikowe
  • Dojazd asfalt
  • Ogrodzenie metalowe
  • Media woda, oczyszczalnia przydomowa, prąd
  • Wyposażenie internet, kuchenka, lodówka, mikrofalówka, piekarnik, pralka, zmywarka
  • Oferta bezpośrednio od właściciela dodana ponad miesiąc temu i zaktualizowana 5 dni temu
Ta nieruchomość może być Twoja od.. sprawdź
274000 zł (20%) Okres spłaty: 30 lat

Podobne domy na sprzedaż

37
dom wolnostojący, 3 pokoje Bogusławice

1 149 000

199

3 pok.

Prezentowana nieruchomość została wybudowana w 2008 roku wraz z przydomową oczyszczalnią ścieków. Ściany z suporeksu (24 cm) docieplone styropianem (12 cm). Dach jest pokryty dachówką firmy Brass. Wartością dodaną niewątpliwie są założone na dachu panele fotowoltaiczne (5,5 kWh) więc nie płacimy za ...

Zobacz ogłoszenie
19
dom wolnostojący, 6 pokoi Nieciszów

1 380 000

153

6 pok.

ENERGOOSZCZĘDNE ROZWIĄZANIA - FUNKCJONALNY ROZKŁAD POMIESZCZEŃ - BLISKOŚĆ NATURY Mam Państwu do zaoferowania przestronny i nowoczesny dom wolnostojący o powierzchni użytkowej 153 m 2 - całkowitej ok. 190 m 2 z dużym ogrodem w cichej, spokojnej miejscowości Nieci...

Zobacz ogłoszenie
5
dom wolnostojący, 4 pokoje Krzeczyn

1 190 000

125

4 pok.

Dom nowy wykonczony do zamieszkania od zaraz pokoje trzy po 15 m ustawne. Salon 30m kuchnia 13m Taras 20m szafa 3m Pralnia,kolownia 12m Lazienka 8m .Dom na nowym osiedlu.tel 603848915

Zobacz ogłoszenie
17
dom wolnostojący, 7 pokoi Ligota Mała

1 090 000

140

7 pok.

Na sprzedaż dom wolnostojący, wybudowany w 2019 roku. Dom posiada ogrzewanie podłogowe, pompę ciepła, przydomową oczyszczalnie ścieków. Nieruchomość ma 140 m² powierzchni oraz duży ogród. Ogród zagospodarowany, posadzone drzewka, maliny, borówki oraz zrobione nawodnienie i narzędziownia. Na dole: ...

Zobacz ogłoszenie
14
dom wolnostojący, 4 pokoje Cieśle

1 300 000

128

4 pok.

OPIS NIERUCHOMOŚCI Na sprzedaż nowoczesny, energooszczędny dom wybudowany w 2024 roku, oddany do użytkowania w sierpniu 2024. Dom został wykończony w wysokim standardzie i jest gotowy do zamieszkania - nie wymaga żadnych nakładów. Powierzchnia użytkowa domu wynosi 128,3 m², a dodatkowo dostępne je...

Zobacz ogłoszenie
18
dom wolnostojący, 5 pokoi Nieciszów, ul. Lipowa

1 490 000

142

5 pok.

Sprzedajemy dom wolnostojący z 2008 roku, wybudowany w technologii tradycyjnej. Powierzchnia użytkowa wynosi 142,3 m², dodatkowo garaż 25,95 m². Działka ma 1012 m². Dostępny od września 2026 roku, dom jest w stanie do zamieszkania. Ogrzewanie gazowe i kominkowe zapewnia komfort w chłodniejsze dni. N...

Zobacz ogłoszenie