Dom na sprzedaż bez pośredników
Marcinkowo  

NOWA OFERTA
dom wolnostojący, 3 pokoje Marcinkowo. Zdjęcie 1

Dom na sprzedaż bez pośredników Marcinkowo

1 120 000
11 882 zł/m²
94
3 pok.
Marcinkowo - lokalizacja przybliżona
Bezpośrednio od właściciela

Jeśli nie potrzebujesz pośrednika, zaoszczędzisz około 33 600 zł. Potrzebujesz wsparcia? Skorzystaj z pomocy agenta.

Komfortowy, kompaktowy dom w Marcinkowie pod Mrągowem | 2021 | działka 1340 m²

Na sprzedaż funkcjonalny dom jednorodzinny położony w Marcinkowie – tuż przy Mrągowie, w bardzo wygodnej lokalizacji, blisko ronda łączącego obie miejscowości.

Nieruchomość zaprojektowana jako kompaktowy, wygodny dom do codziennego życia, który nie generuje wysokich kosztów utrzymania i nie wymaga dodatkowych nakładów.

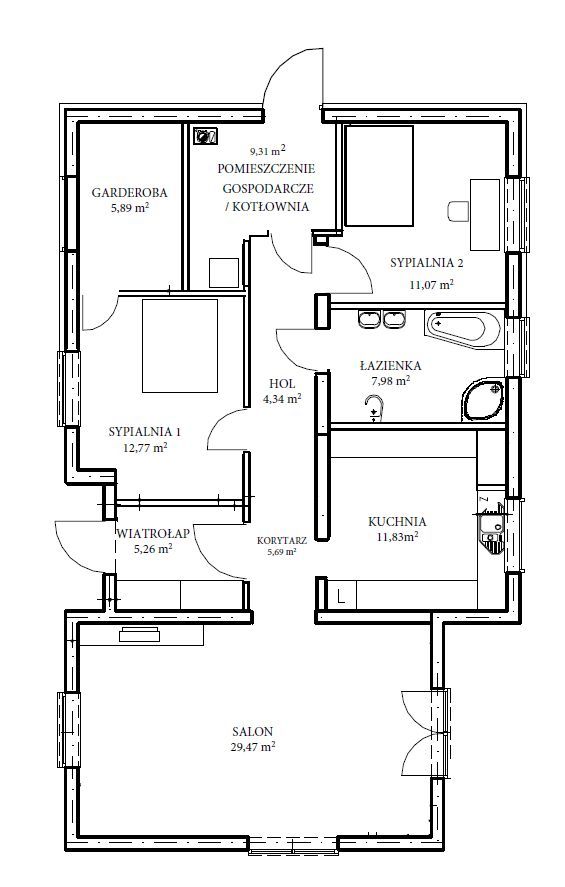
Powierzchnia i układ:
- powierzchnia użytkowa: 94,24 m² + pomieszczenie gospodarcze / kotłownia: 9,31 m²
- dodatkowo strych – praktyczna przestrzeń do przechowywania

W skład domu wchodzą:

- salon (29,47 m²) z wyjściem na taras i do ogrodu
- funkcjonalna, duża kuchnia z wysoką zabudową (11,83 m²)
- 2 sypialnie (w tym główna: 12,77 m²)
- Łazienka wyposażona w wannę i ściankę prysznicową (7,98 m²)
- garderoba (5,98m2), hol, wiatrołap

Przemyślany układ bez zbędnych metrów – wszystko, co potrzebne do wygodnego życia.

Działka:
- powierzchnia: 1340 m²
- teren ogrodzony i zagospodarowany nasadzeniami
- dodatkowo garaż drewniany i miejsce parkingowe

Duża działka daje przestrzeń, komfort i potencjał do dalszej aranżacji.

Standard wykonania:
- rok budowy: 2021
- dach pokryty dachówką
- ocieplenie: styropian grafitowy 18 cm
- okna Adams Ideal 8000 (kolor Turner Oak Malt)
- szczelny, trójwarstwowy montaż wykonanie przez firmę Studio Okien Daradziński z Giżycka (firma polecana przez Program Prawidłowy Montaż)

Ogrzewanie i media:
- ogrzewanie: gaz ziemny
- ogrzewanie podłogowe: kuchnia, hol, wiatrołap, łazienka
pełne media: prąd, gaz, woda, kanalizacja miejska
- światłowód
- stacja uzdatniania wody: Viessmann Aquahome 20

Dom jest prosty w eksploatacji i ekonomiczny w utrzymaniu.

Lokalizacja:
- szybki dojazd do Mrągowa
- bardzo dobre połączenie komunikacyjne
- w okolicy jeziora i tereny rekreacyjne
- bliskiej odległości znajdziesz: restaurację McDonald's, Centrum Handlowe M Park (m.in. Lidl, KFC)

Najważniejsze atuty:
- dom gotowy do wprowadzenia
- rozsądna powierzchnia = niższe koszty utrzymania
- duża, ogrodzona działka
- spokojna okolica z dobrym dojazdem

  • Marcinkowo, gmina Mrągowo, powiat mrągowski  
  • Na sprzedaż dom wolnostojący o powierzchni 94,26 m², 3 pokoje wybudowany w 2021 roku
  • Sizing Streamline Icon: https://streamlinehq.com
    Działka 1 340 m²  
  • Budynek z poddaszem, w stanie do zamieszkania, z osobną kuchnią  
  • Taras, bez piwnicy, garaż  
  • Ogrzewanie gazowe
  • Materiał budowy beton komórkowy
  • Dach dachówka
  • Okna plastikowe
  • Dojazd utwardzony
  • Ogrodzenie metalowe
  • Media woda, kanalizacja, prąd, gaz
  • Wyposażenie internet
  • Oferta bezpośrednio od właściciela dodana dodana dzisiaj
Ta nieruchomość może być Twoja od.. sprawdź
224000 zł (20%) Okres spłaty: 30 lat

Podobne domy na sprzedaż

14
dom wolnostojący, 5 pokoi Mikołajki, ul. Michała Kajki

1 000 000

108

5 pok.

Szukasz domu nad jeziorem do zamieszkania lub inwestycję ?  Zapraszam do zapoznania się z ofertą . Dom nad brzegiem jeziora Mikołajskiego z dużym tarasem z niesamowitym widokiem na wodę. To dom idealny dla rodziny, ale może też być z powodzeniem wynajmowany turystom. LOKALIZACJA Nieruchomość poł...

Zobacz ogłoszenie
19
bliźniak, 5 pokoi Prawdowo

948 600

118

5 pok.

Modern Town – wyjątkowa oferta dla zdecydowanych Klientów Dla osób, które podejmą decyzję o zakupie, przygotowaliśmy dodatkowy rabat-niespodziankę. Aby skorzystać z promocji, wystarczy podczas rozmowy podać hasło: MODERN TOWN. Oferta dostępna wyłącznie dla Klientów naszej agencji i ograniczona cza...

Zobacz ogłoszenie
8
dom szeregowy Marcinkowo

890 000

102

Dom w zabudowie szeregowej położony w malowniczej miejscowości Marcinkowo. Miejscowość położona jest w bliskiej odległości od Mrągowa. Nr działki: 461/5 ROZKŁAD POMIESZCZEŃ Parter: - Przytulny salon z kominkiem połączony z otwartą, w pełni wyposażoną kuchnią. - Pokój dzienny. - Łazienka z pryszni...

Zobacz ogłoszenie
15
dom wolnostojący, 5 pokoi Młynowo Tymnikowo

1 199 000

94

5 pok.

Na sprzedaż dom w stanie deweloperskim Tymnikowo 1C, obręb Młynowo gm. Mrągowo Na sprzedaż przestronny dom jednorodzinny w stanie deweloperskim, położony w miejscowości Tymnikowo 1C, gmina Mrągowo, w spokojnej i zielonej okolicy, z doskonałym dojazdem. Powierzchnia (po podłodze): ok. 160 m Powierzch...

Zobacz ogłoszenie
20
dom wolnostojący, 4 pokoje Mikołajki, ul. Michała Kajki

979 000

90

4 pok.

Mazurski dom w znakomitej lokalizacji - w Mikołajkach, w pierwszej linii zabudowy jeziora Mikołajskiego, usytuowany w spokojnej części ulicy Kajki, tuż przy EkoMarinie MKŻ. Budynek skierowany w stronę wody, z werandą, tarasem, Idealna okazja inwestycyjna pod pensjonat, także dla osób, które chciałyb...

Zobacz ogłoszenie
34
dom wolnostojący, 4 pokoje Kosewo

1 450 000

127

4 pok.

Całoroczny, wygodny dom z bala na działce gwarantującej prywatność i spokój, położony w otulinie Mazurskiego Parku Krajobrazowego. Wykończenie w drewnie, koza grzewcza w salonie, taras z wyjściem na ogród dają poczucie przytulności, a funkcjonalne wyposażenie, nowoczesny piec, budynek garażowy dają ...

Zobacz ogłoszenie