Dom na sprzedaż bez pośredników
ul. Stare Wiślisko Kraków Nowa Huta

dom szeregowy, 6 pokoi Kraków Nowa Huta, ul. Stare Wiślisko. Zdjęcie 1

Dom na sprzedaż bez pośredników Kraków Nowa Huta ul. Stare Wiślisko

1 999 000
7 139 zł/m²
280
6 pok.
Kraków Nowa Huta, Stare Wiślisko - lokalizacja przybliżona
Bezpośrednio od właściciela

Jeśli nie potrzebujesz pośrednika, zaoszczędzisz około 60 000 zł. Potrzebujesz wsparcia? Skorzystaj z pomocy agenta.

WYJĄTKOWA LOKALIZACJA:

Dom w Krakowie.

DOM SZEREGOWY NAROŻNY W STANIE DEWELOPERSKIM Z RYNKU WTÓRNEGO O POW. 280 M2,

W TYM PODZIEMIE Z GARAŻEM OK. 100 M2

+ 2 MIEJCA POSTOJOWE PRZY DOMIE

+ STRYCH

KrakówNowa Huta – ul. Stare Wiślisko 55D

Ciche, spokojne otoczenie w bezpośrednim sąsiedztwie innych nowych domów jednorodzinnych.

Tylko 10 km od centrum Krakowa (autobus na ul. Klasztornej, tramwaj na alei Jana Pawła II), zielone okolice, blisko piechotą lub rowerem do lasku Mogilskiego, placu zabaw, kompleksu sportowego z pływalnią Com Com Zone, klubu tenisowego, przystani nad Wisłą (żaglówki, kajaki, rowery wodne), łąk nowohuckich, …
Historyczne miejsce nieopodal Klasztoru Cystersów.

OPIS – DUŻY DOM Z IDEALNYM ROZWIĄZANIEM:

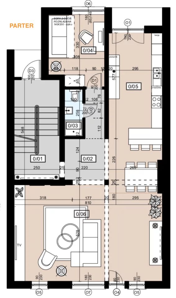
Dom jednorodzinny w zabudowie szeregowej, w stanie deweloperskim o pow. ok. 280 m2 pow. uż., na działce ok. 367 m2

Rozkład pomieszczeń domu:

1. na piętrze (pow. ok. 79 m2 + 6 m2 klatki)

· 4 sypialnie w tym jedna z garderobą

· 2 łazienki z toaletą

2. na parterze (pow. ok. 80 m2 + 13m2 klatki)

· salon ​

· duża kuchnia

· biuro

· łazienka z toaletą

· przedpokój

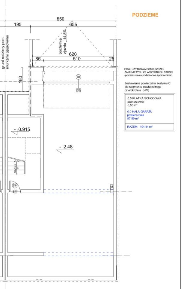
3. w podziemiu (pow. ok. 97 m2+ 6 m2 klatki)

· garaż na kilka samochodów

· kotłownia

· pralnia

· pomieszczenia do przechowywania lub innego przeznaczenia (sala gier, kino domowe, domowa sala gimnastyczna, siłownia...)

4. strych do przechowywania (pow. uż. ok. 14 m2)

MATERIALY I ROZWIĄZANIA BUDOWLANE:

Dom ma własną ścianę działową – nie jest wspólna z sąsiednim segmentem
Na płycie fundamentowej dennej
Podziemia ze ścianami z betonu szczelnego
Pustak ceramiczny POROTHERM
Ocieplenie zewnętrzne (styropian)
Tynk akrylowy
Dachówka ceramiczna
Okna pcv OKNOPLAST - 3 szybowe
Drzwi zewnętrzne OKNOPLAST antywłamaniowe
Opaska żwirowa wokół domu
Podjazd do garażu wybrukowany
Wewnątrz: tynki gipsowe i cementowo-wapienne (w łazience i wc), wylewki betonowe, wszystkie instalacje rozprowadzone
Ogrzewanie: gazowe - podłogowe, z kotłem kondensacyjnym 1-funkcyjnym, z zasobnikiem
Media: gaz, prąd, woda i kanalizacja miejska

  • ul. Stare Wiślisko, Kraków Nowa Huta  
  • Na sprzedaż dom szeregowy o powierzchni 280 m², 6 pokoi wybudowany w 2024 roku
  • Sizing Streamline Icon: https://streamlinehq.com
    Działka 367 m²  
  • Budynek z poddaszem, w stanie do wykończenia, z aneksem kuchennym  
  • Balkon, piwnica, garaż  
  • Ogrzewanie gazowe
  • Materiał budowy pustak ceramiczny
  • Dach dachówka
  • Okna plastikowe
  • Dojazd asfalt
  • Ogrodzenie siatka
  • Media woda, kanalizacja, prąd, gaz
  • Wyposażenie internet
  • Oferta bezpośrednio od właściciela dodana ponad miesiąc temu i zaktualizowana ponad tydzień temu
Ta nieruchomość może być Twoja od.. sprawdź
400000 zł (20%) Okres spłaty: 30 lat

Podobne domy na sprzedaż

35
dom wolnostojący, 6 pokoi Kraków Opatkowice, ul. Poronińska

1 899 000

200

6 pok.

Wolnostojący dom o powierzchni 200m2, położony na działce 1100m2, zlokalizowany w spokojnej i bezpiecznej okolicy , na południu Krakowa , dzielnica Podgórze ( Opatkowice ) szuka nowego Właściciela . Dom posiada dwa niezależne wejścia, wewnątrz połączony zintegrowaną klatką schodową i składa się z :...

Zobacz ogłoszenie
19
dom wolnostojący, 6 pokoi Kraków Nowa Huta, ul. Rumiankowa

1 750 000

180

6 pok.

| Dom, Kraków, ul Rumiakowa, 165 m 2 , działka 10 a, 1750 tys zł. Na sprzedaż nowoczesny dom jednorodzinny z 2023 roku, położony w Krakowie przy ul. Rumiankowej. Nieruchomość posadowiona na działce 10 arów , w pełnej własności, z szybkim dostępem do komunikacji miejskiej i infrastruktury mie...

Zobacz ogłoszenie
11
dom wolnostojący, 6 pokoi Kraków Swoszowice, ul. Józefa Warszewicza

1 990 000

270

6 pok.

Twój Energooszczędny Azyl w Krakowie – Dom, który Zarabia na Siebie Lokalizacja: Kraków – Swoszowice | Działka: 2342 m² | Powierzchnia: 270 m² Cena: 1 990 000 PLN Wyobraź sobie życie bez rachunków za prąd i ogrzewanie... Ten dom to nie tylko mury – to inteligentna inwestycja w Twój spokój i p...

Zobacz ogłoszenie
8
dom wolnostojący, 5 pokoi Kraków Wolica, ul. Betonowa

zapytaj

214

5 pok.

Sprzedaję dom wolnostojący o powierzchni 214 m². Nieruchomość ma dwa piętra i znajduje się na dużej działce o powierzchni 1024 m². To idealne miejsce dla rodzin, które cenią sobie przestrzeń i komfort. Dom znajduje się w Krakowie, w pobliżu licznych punktów usługowych. W odległości krótkiego spacer...

Zobacz ogłoszenie
23
dom wolnostojący, 5 pokoi Kraków Swoszowice, ul. Poronińska

1 950 000

170

5 pok.

| Oferujemy na sprzedaż dom wolnostojący 170 m² + strych, działka 15 ar - Opatkowice, ul. Poronińska Na sprzedaż komfortowy, wolnostojący dom o powierzchni 170 m² z możliwością adaptacji strychu, położony na przestronnej, 15-arowej działce w spokojnej i dobrze skomunikowanej części Krakowa - ...

Zobacz ogłoszenie
9
dom wolnostojący, 10 pokoi Kraków Łagiewniki, ul. Siostry Faustyny

2 000 000

260

10 pok.

| Nieruchomość inwestycyjna - Łagiewniki - 10 pokoi! Do sprzedania dom w sercu Łagiewnik, blisko sanktuarium. Na trzech kondygnacjach (każda około 70m2) znajduje się aż 10 pokoi, 2 kuchnie, 2 łazienki i WC. Nieruchomość do remontu. Położona na działce o powierzchni ponad 6 arów. Dom w...

Zobacz ogłoszenie