Dom na sprzedaż bez pośredników
ul. Osiedle na Skale Konarskie

bliźniak, 5 pokoi Konarskie, ul. Osiedle na Skale. Zdjęcie 1

Dom na sprzedaż bez pośredników Konarskie ul. Osiedle na Skale

698 000
6 724 zł/m²
103
5 pok.
Konarskie, Osiedle na Skale - lokalizacja przybliżona
Bezpośrednio od właściciela

Jeśli nie potrzebujesz pośrednika, zaoszczędzisz około 20 900 zł. Potrzebujesz wsparcia? Skorzystaj z pomocy agenta.

Sprzedam nowy dom w zabudowie dwulokalowej.

Konarskie, ul. Osiedle na Skale k. Kórnika.
Na spokojnym osiedlu jednorodzinnych budynków w otoczeniu zieleni: tereny leśne, ścieżki rowerowe, jezioro. Odległość od Poznania 15 min.

- Budynek A o powierzchni 103,8 m2 na działce 423 m2-REZERWACJA.
- Budynek B o powierzchni 103,8 m2 na działce 378 m2.

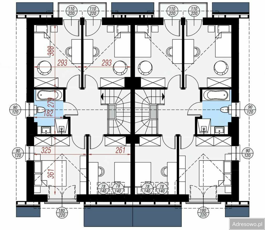
POMIESZCZENIA

Parter (52,98 m2):
- Wiatrołap: 3,43 m2
- Pokój dzienny: 21,5 m2
- Toaleta: 2,85 m2
- Hol i schody: 7,47 m2
- Kuchnia, jadalnia: 17,71 m2
- (Możliwość wygospodarowania dodatkowego pokoju na parterze).

Piętro (50,81 m2):
- Pokój: 9,26 m2
- Pokój: 9,73 m2
- Pokój: 7,29 m2
- Pokój: 9,35 m2
- Hol: 6,47 m2
- Schody: 4,16 m2
- Łazienka: 4,55 m2

Strych: 26 m2 po podłodze.

Budynek wybudowany w technologii tradycyjnej z betonu komórkowego.

- Woda: ujęcie głębinowe.
- Ocieplony styropianem grafitowym 15 cm.
- Okna PCV trzyszybowe z roletami elektrycznymi.
- Dachówka ceramiczna.
- Ogrzewanie podłogowe w całym budynku.
- Komin ceramiczny przygotowany pod kominek.
- Pompa ciepła.
- Dwa miejsca parkingowe, chodniki i tarasy - kostka brukowa.
- Instalacja internetowa i telewizyjna we wszystkich pokojach.
- Przepust na potrzeby fotowoltaiki, przygotowane przyłącze światłowodowe.

Serdecznie zapraszam na prezentację.

  • Oferta z rynku pierwotnego
  • ul. Osiedle na Skale, Konarskie, gmina Kórnik, powiat poznański  
  • Na sprzedaż bliźniak o powierzchni 103,80 m², 5 pokoi wybudowany w 2025 roku
  • Sizing Streamline Icon: https://streamlinehq.com
    Działka 400 m²  
  • Budynek w stanie surowym zamkniętym  
  • Taras  
  • Ogrzewanie pompa ciepła
  • Materiał budowy beton komórkowy
  • Dach dachówka
  • Okna plastikowe
  • Oferta bezpośrednio od właściciela dodana ponad miesiąc temu i zaktualizowana wczoraj
Ta nieruchomość może być Twoja od.. sprawdź
140000 zł (20%) Okres spłaty: 30 lat

Podobne domy na sprzedaż

20
dom szeregowy, 4 pokoje Kórnik, ul. Melchiora Grześkowiaka

719 000

111

4 pok.

POŚREDNIKOM DZIĘKUJEMY Szukasz domu, do którego możesz wejść i od razu mieszkać - bez remontów, bez stresu i bez dodatkowych kosztów? Ten 3-poziomowy dom w zabudowie szeregowej o powierzchni 111,3 m2 to idealne rozwiązanie dla osób, które cenią komfort, funkcjonalność i spokojne, rodzinne otoczenie...

Zobacz ogłoszenie
18
dom szeregowy, 4 pokoje Błażejewo, os. Osiedle Przylesie

689 000

96

4 pok.

Urządzony i wyposażony dom w zabudowie szeregowej, położony w niewielkiej enklawie mieszkaniowej tuż przy lesie! Polecamy atrakcyjną ofertę sprzedaży funkcjonalnego 4-pokojowego domu w zabudowie szeregowej o powierzchni całkowitej 96,7 m2. Nowoczesny, trzypoziomowy budynek (segment środkowy) zlokal...

Zobacz ogłoszenie
18
dom szeregowy, 3 pokoje Kórnik, ul. ks. Romualda Żurowskiego

689 000

62

3 pok.

Na sprzedaż zadbany i bardzo funkcjonalny szeregowiec o powierzchni 62,91 m², położony w jednej z najlepszych lokalizacji w Kórniku - Osiedle Bnińskie. To idealna propozycja dla osób, które szukają wygodnego domu z własnym ogrodem w spokojnym, a jednocześnie świetnie skomunikowanym miejscu. Najwięk...

Zobacz ogłoszenie
16
dom szeregowy, 5 pokoi Dachowa, ul. Okrężna

749 000

74

5 pok.

Szanowni Państwo, oferuję na sprzedaż skrajny segment szeregowca w miejscowości Dachowa, gmina Kórnik. Powierzchnia domu: 74,61 m2, działki: 150 m2. Dom jest piętrowy, składa się z 4 pokoi, salonu z kuchnią, łazienki i toalety. Dodatkowo dom ma nieużytkowy strych i dwa przynależne miejsca parkingo...

Zobacz ogłoszenie
11
dom wolnostojący, 4 pokoje Kórnik, ul. Zwierzyniecka

659 000

86

4 pok.

Zapraszam do prezentacji domu z klimatyczną aurą przy ścieżce zdrowia w Kórniku. Parter domu składa się z: - salonu, - kuchni z jadalnią, - łazienki, - pomieszczenia gospodarczego. Piętro z 3 niezależnymi sypialniami i łazienki. Jeśli szukasz domu w tej okolicy, to zachęcam do obejrzenia. Odpowie...

Zobacz ogłoszenie
8
bliźniak Borówiec

720 000

105

Na sprzedaż dom jednorodzinny dwulokalowy w stanie deweloperskim. Na sprzedaż oferujemy dom w zabudowie bliźniaczej o powierzchni 105m² + 20 m² garażu, położony na j działce o powierzchni ok. 600 m². Rozkład pomieszczeń: Parter: salon z aneksem kuchennym i wyjściem na taras oraz do ogrodu, WC, ko...

Zobacz ogłoszenie