Dom na sprzedaż bez pośredników
ul. Szałwiowa Plewiska

NOWA OFERTA
dom szeregowy, 4 pokoje Plewiska, ul. Szałwiowa. Zdjęcie 1

Dom na sprzedaż bez pośredników Plewiska ul. Szałwiowa

890 000
9 674 zł/m²
92
4 pok.
Plewiska, Szałwiowa - lokalizacja przybliżona
Bezpośrednio od właściciela

Jeśli nie potrzebujesz pośrednika, zaoszczędzisz około 26 700 zł. Potrzebujesz wsparcia? Skorzystaj z pomocy agenta.

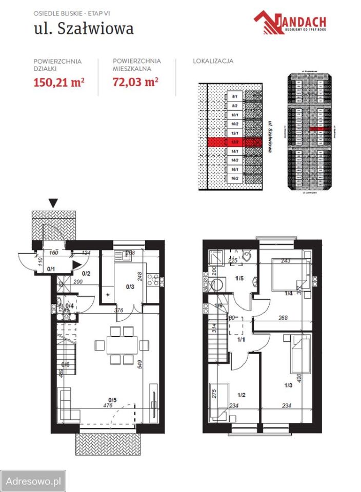
Na sprzedaż szeregówka przy samej granicy Poznania (Plewiska, ul. Szałwiowa) na osiedlu Bliskim (Etap VI), oddana do użytku w 2019 roku. Jesteśmy pierwszymi właścicielami.

Nieruchomość w pełni wyposażona we wszystkie media (woda, kanalizacja, gaz, światłowód, prąd).
Możliwość łatwego wyciągnięcia siły do ładowania samochodu elektrycznego.

Nieruchomość świetnie usytuowana:
- do sklepu Lidl 1200m
- do szkoły podstawowej 800m
- do stacji kolejowej Poznań Junikowo 1700m (dwa przystanki do stacji Poznań Główny, po drodze stacja Poznań Górczyn)
- przystanek autobusowy (linie 716 i 710) 600m
- centrum usługowe Plewiska 400m (Rossmann, Pepco, Kik, Biedronka, Stokrotka, Lidl, kilka piekarni i aptek)
- Paczkomat 300m (InPost, DHL, Orlen)

Domek usytuowany na działce 150m2 posiada 3 poziomy:
Parter - 36m2
- Wiatrołap - 4,9m2
- Kuchnia - 6,6m2
- WC - 1,1m2
- Salon - 23,6m2
- Schody - 1,2m2

Piętro - 36m2
- Korytarz - 2,9m2
- Pokój 1 - 7,1m2
- Pokój 2 - 10,1m2
- Pokój 3 - 9,6m2
- Łazienka - 4,5m2
- Schody - 2m2

Poddasze - 20m2

Do dyspozycji właścicieli jest też duży parking na 4 samochody i ogródek o powierzchni 56m2 który zawiera:
- taras - 21m2
- trawnik - 25m2
- wiata z warsztatem - 10m2

Nieruchomość gotowa do wprowadzenia od zaraz, w pełni wyposażona w meble, sprzęt RTV i AGD.
Kuchnia z dębowymi blatami wyposażona w piekarnik w zabudowie Bosch oraz płytę grzewczą, zmywarkę, okap i lodówkę Samsung.
Schody, stół w salonie i krzesła (projekt prof. Hałas) z litego drewna bukowego.
Salon z dębową szafką telewizyjną, telewizorem i soundbarem Samsung.
Rolety antywłamaniowe we wszystkich oknach, automatyczna roleta na taras.
Łazienka z pralką Samsung i piecem gazowym Junkers.
Większość mebli robiona na wymiar, podłogi o klasie ścieralności AC6.
Wiata na ogrodzie robiona z projektu indywidualnego, bardzo pojemna, pomieści koła zimowe, rowery, narzędzia, sanki i wiele więcej.
Wspaniała rodzinna nieruchomość, sprzedajemy ją z powodu przeprowadzki do Trójmiasta.

  • ul. Szałwiowa, Plewiska, gmina Komorniki, powiat poznański  
  • Na sprzedaż dom szeregowy o powierzchni 92 m², 4 pokoje wybudowany w 2019 roku
  • Sizing Streamline Icon: https://streamlinehq.com
    Działka 150 m²  
  • Taras  
  • Ogrzewanie gazowe
  • Materiał budowy cegła
  • Okna plastikowe
  • Media kanalizacja, gaz
  • Wyposażenie pralka, lodówka, piekarnik, zmywarka
  • Oferta bezpośrednio od właściciela dodana dodana dzisiaj
Ta nieruchomość może być Twoja od.. sprawdź
178000 zł (20%) Okres spłaty: 30 lat

Podobne domy na sprzedaż

10
dom wolnostojący, 4 pokoje Komorniki, ul. Komornicka

1 200 000

105

4 pok.

Na sprzedaż dom o powierzchni 105 m², składający się z dwóch osobnych mieszkań. Na całość składają się 4 pokoje w tym jeden z aneksem, kuchnia, dwie łazienki plus poddasze użytkowe (możliwość zagospodarowania i powiększenia metrażu). Dom wybudowano z cegły, znajduje się na dużej działce o powierzch...

Zobacz ogłoszenie
20
bliźniak, 3 pokoje Komorniki, ul. Kwiatowa

1 199 000

89

3 pok.

Kupujący nie płaci prowizji - wynagrodzenie doradcy pokrywa sprzedający !!! Zapraszam serdecznie do zapoznania się z ofertą gustownie urządzonego, dwupoziomowego lokalu w zabudowie bliźniaczej o powierzchni użytkowej 89,50 m². Nieruchomość została oddana do użytku w 2019 roku i znajduje się w niezwy...

Zobacz ogłoszenie
3
dom wolnostojący Głuchowo

950 000

62

Na sprzedaż dom jednorodzinny parterowy o powierzchni 62m2. Działka na której znajduje się dom ma wielkość 430m2. Rok budowy 2008 rok. Wybudowany z betonu komórkowego. Ocieplony styropianem. Wykończony z zewnątrz tynkiem mineralnym. Na dachu położono dachówkę cementową. Poddasze nieużytkowe. W skła...

Zobacz ogłoszenie
13
dom wolnostojący, 6 pokoi Bolechowo-Osiedle, ul. Szmaragdowa

890 000

111

6 pok.

Przed Tobą stoi parterowy dom z 2020 roku o powierzchni 111,48 m². Dom jest do zamieszkania, wybudowany z betonu komórkowego. Masz do dyspozycji 6 pokoi, metalowe ogrodzenie i dach skośny pokryty blachą. Na działce o powierzchni 974 m² znajdziesz miejsce na relaks i ogród. Budynek posiada wodę, prą...

Zobacz ogłoszenie
6
dom wolnostojący Wiry

760 000

70

Działka 900 m² z domem (podpiwniczonym), mediami (gaz, prąd, woda, kanalizacja) oraz projektami na rozbudowę i budowę drugiego domu! Dwa wjazdy, nowa droga z kostki. Sprzedam działkę ok. 900 m² z istniejącym domem. Nieruchomość posiada pozwolenie na budowę, obejmujące: - Rozbudowę obecnego domu o ...

Zobacz ogłoszenie
16
dom szeregowy, 4 pokoje Komorniki

929 000

108

4 pok.

ZAKUP OD DEWELOPERA, BEZ PODATKU PCC 2% ORAZ BEZ PROWIZJI KONTAKT DO BIURA SPRZEDAŻY: Mateusz Wachowiak [numer], [email] Nasz zespół doradców finansowych bezpłatnie przygotuje dedykowaną ofertę kredytowania zakupu nieruchomości, w oparciu o zasoby wszystkich wiodących banków na rynku. Prezentowany...

Zobacz ogłoszenie