Czempiń

dom szeregowy na sprzedaż Bez pośrednika

dom szeregowy, 6 pokoi Czempiń
Cena
360 000
Powierzchnia
198
Cena za m²
1 818
Pow. działki
161
Czempiń · 360 000 zł

Ogłoszenie właściciela - bez pośredników

dom szeregowy, 6 pokoi Czempiń. Zdjęcie 1
dom szeregowy, 6 pokoi Czempiń. Zdjęcie 1

Bez pośrednika. Oszczędzasz 10 800 zł na prowizji pośrednika!

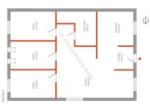
Piętrowy dom mieszkalny w zabudowie szeregowej o powierzchni 198 m2.

Dom składa się z dwóch oddzielnych mieszkań:
- Mieszkanie na parterze to: dwa pokoje, kuchnia, toaleta i łazienka.
- Mieszkanie na piętrze to: trzy pokoje, kuchnia, łazienka, salon.

Na parterze znajduje się również kotłownia i pomieszczenie gospodarcze oraz dwa pomieszczenia magazynowe pod schodami.

Oba mieszkania posiadają niezależne wejścia, co powoduje, że dom idealnie nadaje się do wynajmu. Na parterze możliwe jest prowadzenie działalności gospodarczej.

Dostępne media:
- prąd,
- woda ciepła,
- woda zimna,
- gaz,
- kanalizacja.

Centralne ogrzewanie: piecowe i gazowe.

Dom wymaga odnowienia.

Budynek usytuowany na ogrodzonej działce o powierzchni 161 m2, zlokalizowanej opodal centrum miasta.
W pobliżu znajdują się: przedszkole, szkoła, sklepy oraz dworzec PKP.

  • Czempiń, powiat kościański
  • Na sprzedaż dom szeregowy o powierzchni 198 m², 6 pokoi
  • Działka 161 m²
  • Ogrzewanie gazowe
  • Media: kanalizacja, gaz
  • Oferta dodana bezpośrednio przez właściciela ponad miesiąc temu i zaktualizowana ponad tydzień temu
Wróć
Największa baza ogłoszeń bez pośredników
Zarejestruj się, aby przejść dalej
lub

Kontynuując akceptujesz
Regulamin i Politykę prywatności

Masz już konto na adresowo.pl?
Zaloguj się

Mamy dla Ciebie kredyt hipoteczny z niską ratą! Chcesz poznać szczegóły?

Kontakt z VeloBank:
- ofertę, wniosek i decyzję o przyznaniu kredytu w procesie online,
- wsparcie eksperta hipotecznego na każdym kroku,
- kredyt do 90% wartości nieruchomości.





Wyrażam zgodę na przetwarzanie moich danych osobowych zawartych w formularzu na stronie adresowo.pl przez VeloBank S.A. z siedzibą w Warszawie przy Rondo Ignacego Daszyńskiego 2C (Bank), a tym samym na ich przetwarzanie, w tym profilowanie, przez Bank w celu marketingu produktów i usług Banku za pośrednictwem rozmowy telefonicznej i sms. Zgoda może być w każdej chwili wycofana. Cofnięcie zgody nie ma wpływu na zgodność z prawem przetwarzania danych przed jej wycofaniem.