Nieruchomość komercyjna do wynajęcia bez pośredników
bulw. Dedala 1A Wrocław Fabryczna

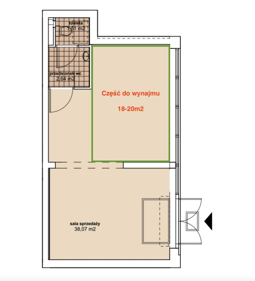
Biuro Wrocław Fabryczna, bulw. Dedala. Zdjęcie 1

Nieruchomość komercyjna do wynajęcia bez pośredników Wrocław Fabryczna bulw. Dedala 1A

3 000
150 zł/m²
20
Wrocław Fabryczna, bulw. Dedala 1A - lokalizacja dokładna
Bezpośrednio od właściciela

Jeśli nie potrzebujesz pośrednika, zaoszczędzisz prowizję. Potrzebujesz wsparcia? Skorzystaj z pomocy agenta.

Do wynajęcia od zaraz część lokalu użytkowego w świetnej lokalizacji - Bulwar Dedala, Wrocław.

SZCZEGÓŁY:
- 3 duże witryny reklamowe, wejście bezpośrednio z ulicy, parter.
- Powierzchnia około 20 m².
- Dostęp do zaplecza socjalnego i sanitariów.
- Możliwość aranżacji przestrzeni według potrzeb.
- Dostęp 24/7, ochrona, miejsce parkingowe dla klienta przy lokalu.

UWAGA!
W drugim pomieszczeniu w lokalu będzie prowadzona działalność ubezpieczeniowa. Prosimy o kontakt osoby z niekolidującą formą działalności (spokojna działalność biurowa).

CENA:
3000 zł (ogrzewanie i woda w cenie).

  • bulw. Dedala 1A, Wrocław Fabryczna  
  • Do wynajęcia biuro o powierzchni 20 m²  
  • Dostępne do wynajęcia od zaraz
  • Oferta bezpośrednio od właściciela dodana ponad miesiąc temu

Podobne nieruchomości komercyjne na wynajem

7
Lokal Wrocław Partynice, ul. Zwycięska

3 250

37

Do wynajęcia lokal użytkowy - idealny na biuro, gabinet lub kancelarię - w atrakcyjnej lokalizacji: Partynice. Oferuję do wynajęcia lokal użytkowy o powierzchni ok. 37,4 m², położony w jednej z najszybciej rozwijających się części Wrocławia przy ul. Zwycięskiej. Lokal składa się z dwóch pomieszcze...

Zobacz ogłoszenie
13
Lokal Wrocław Stare Miasto, ul. Świebodzka

2 850

40

Polecam do wynajęcia, lokal  biurowo usługowy w bardzo dobrej lokalizacji. Przy ul.Świebodzkiej ( przy sądzie ) Lokal o pow. 40 m2. Idealny na biuro, kancelarię, gabinet  itp. Lokal mieści się na wysokim parterze, usytuowany od frontu budynku z bezpośrednim wejściem od ulicy. Powierzchnia podzielona...

Zobacz ogłoszenie
13
Biuro Wrocław Gądów Mały

2 950

127

Do wynajęcia niezależny moduł biurowy o pow. 127 mkw znajdujący się na I piętrze budynku biurowo-produkcyjnego Rozkład to 4 pokoje ( 45 mkw, 20 mkw, 20 mkw i 28 mkw) + kącik kuchenny i toaleta. Aktualny stan bez mebli biurowych. Znakomita lokalizacja - Gądów Mały - okolice ul. Bystrzyckiej przy o...

Zobacz ogłoszenie
2
Biuro Wrocław

2 800

44

Prezentujemy Państwu pomieszczenie biurowo-usługowe o pow. 44,5 mkw znajdujące się na IV p. kamienicy na Wrocławskim Rynku. Oferta zawiera niezależny klimatyzowany pokój z dostępem do toalety i pomieszczenia socjalnego. Możliwość korzystania z internetu od trzech różnych dostawców dostępnych w ob...

Zobacz ogłoszenie
8
Lokal Wrocław Śródmieście

2 800

35

ODSTĄPIĘ W PEŁNI WYPOSAŻONY GABINET KOSMETOLOGICZNY - WROCŁAW ŚRÓDMIEŚCIE Odstępne: 34 900 zł   Nowoczesny, w pełni wyposażony gabinet kosmetologiczno-beauty po generalnym remoncie, gotowy do natychmiastowego rozpoczęcia pracy — bez żadnych dodatkowych inwestycji. Miejsce użytkowane przez trzy o...

Zobacz ogłoszenie
7
Biuro Wrocław Gądów Mały

3 015

86

Prezentujemy Państwu parterowy lokal o pow. 86,15 mkw znajdujący się na Wrocławskim Gądowie. Lokal jest w pełni rozkładowy, składa się z korytarza z którego rozchodzą się drzwi do 3 pokoi, łazienki oraz pomieszczenia socjalnego. Duże osiedle z wieloma miejscami parkingowymi sprzyja do prowadzeniu ...

Zobacz ogłoszenie