
Ogłoszenie właściciela - bez pośredników
Bez pośrednika. Oszczędzasz 24 600 zł na prowizji pośrednika!
24 600 zł to wartość typowej prowizji 3%, którą zapłaciłbyś pośrednikowi dla nieruchomości o wartości 820 000 zł
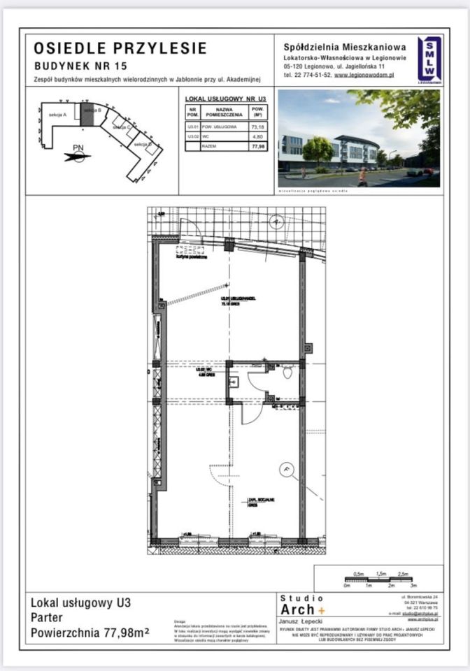
Lokal użytkowy z witryną w stanie deweloperskim. Przed budynkiem duży parking. Budynek mieszkalny z parterem usługowym. Aktualnie w części usługowej znajduje się Żabka, fryzjer, rehabilitacja, piekarnia. Lokal znajduje się na skrzyżowaniu dwóch mocno uczęszczanych ulic, przystanek autobusowy praktycznie przed budynkiem. Okolica to prężnie rozwijająca się cześć Jabłonny z zabudową jednorodzinną i budynkami mieszkalnymi.
Cena netto plus 23% VAT. Faktura.
- Jabłonna, powiat legionowski
- Na sprzedaż lokal o powierzchni 78 m²
- Oferta dodana bezpośrednio przez właściciela ponad miesiąc temu