Mieszkanie na sprzedaż bez pośredników
ul. Cukrowa Zagrody

Mieszkanie 4-pokojowe Zagrody, ul. Cukrowa. Zdjęcie 1

Mieszkanie na sprzedaż bez pośredników Zagrody ul. Cukrowa · 1 piętro

695 000
6 780 zł/m²
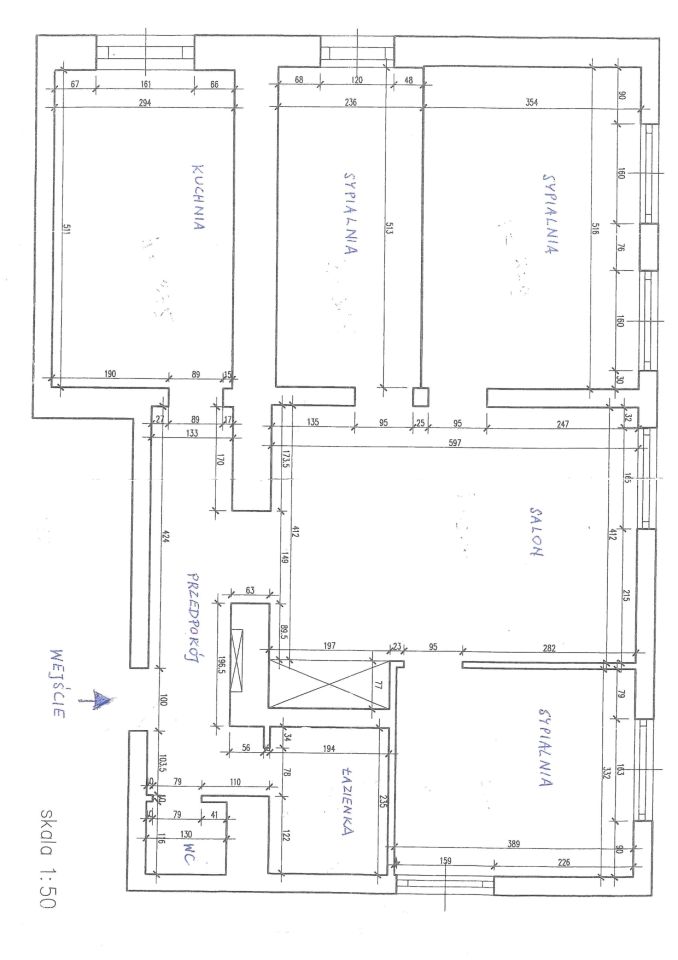
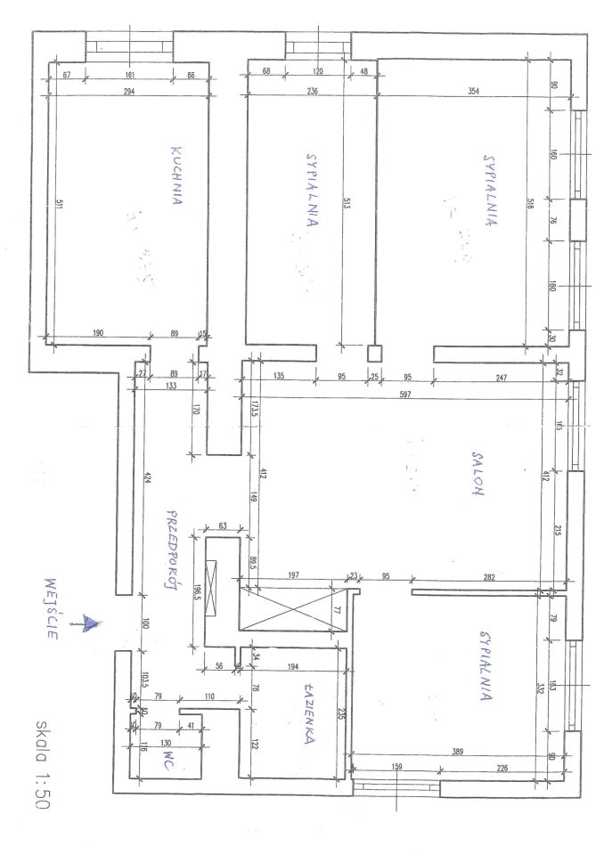
102
4 pok.
Zagrody, Cukrowa - lokalizacja przybliżona
Bezpośrednio od właściciela

Jeśli nie potrzebujesz pośrednika, zaoszczędzisz około 20 900 zł. Potrzebujesz wsparcia? Skorzystaj z pomocy agenta.

Przestronne mieszkanie na pierwszym piętrze w odnowionej dwupiętrowej kamienicy.
W skład mieszkania wchodzą:
• salon ( 25 m2);
• sypialnia ( 18 m2);
• sypialnia ( 13 m2);
• sypialnia ( 12 m2);
• kuchnia ( 15 m2);
• przedpokój ( 12 m2);
• łazienka ( 4,5 m2);
• wc ( 1,5 m2).
Wysokość pomieszczeń to 3,4 m.
Dodatkowo do mieszkania przynależy piwnica o powierzchni 18 m2 oraz ogólnodostępna pralnia/suszarnia o pow. 13 m2.
Ogrzewanie i ciepła woda z sieci miejskiej.
Przed kamienicą zagospodarowana działka z licznymi nasadzeniami, o powierzchni 10 arów. Miejsca postojowe ogólnodostępne wokół budynku.
Mieszkanie usytuowane na spokojnym osiedlu w miejscowości Zagrody ( gm. Garbów).
Dobrze rozwinięta infrastruktura społeczna. W promieniu 50 m:
• szkoła podstawowa oraz przedszkole;
• ośrodek zdrowia;
• apteka;
• galeria handlowa, sklepy, punkty gastronomiczne, garmażerka;
• kościół;
• boiska oraz place zabaw;
• przystanek autobusowy ( busy w kierunku Lublina oraz Puław co 15 minut);
W odległości 1.5 km zjazd na drogę ekspresową S17 . Odległość do:
• Lublina - 25 km (15 minut);
• Puław - 25 km ( 20 minut);
• Nałęczowa - 10 km ( 10 minut)
Niniejsze ogłoszenie nie stanowi oferty w rozumieniu przepisów Kodeksu Cywilnego i ma wyłącznie charakter informacyjny.
Zapraszam do kontaktu.

  • Na sprzedaż mieszkanie 4-pokojowe o powierzchni 102,50 m² piwnica, ogródek, osobna kuchnia
  • 1 piętro w 2-piętrowej kamienicy bez windy, rok budowy 1900
  • Zagrody ul. Cukrowa
  • Mieszkanie w bardzo dobrym stanie okna plastikowe
  • Odrębna własność z księgą wieczystą  
  • Wyposażenie telewizor, internet, pralka, lodówka, kuchenka, piekarnik, zmywarka
  • Oferta bezpośrednio od właściciela dodana ponad miesiąc temu i zaktualizowana ponad tydzień temu
Ta nieruchomość może być Twoja od.. sprawdź
139000 zł (20%) Okres spłaty: 30 lat

Podobne mieszkania na sprzedaż

7
Mieszkanie 3-pokojowe Turka

660 000

63

3 pok.

Na sprzedaż gotowe do zamieszkania, 3-pokojowe mieszkanie o powierzchni 63,22 m², zlokalizowane na osiedlu Borek, miejscowość Turka. Rok oddania bloku 2019. Mieszkanie znajduje się na pierwszym piętrze w bloku z windą. Do lokalu przynależy również piwnica. Rozkład pomieszczeń: salon z aneksem kuch...

Zobacz ogłoszenie
1
Mieszkanie 3-pokojowe Turka

650 000

65

3 pok.

Pilnie sprzedam mieszkanie znajdujące się w świetnej lokalizacji. Wszystkie szczegółowe informację udzielam pod telefonem

Zobacz ogłoszenie
20
Mieszkanie 3-pokojowe Turka, ul. Topolowa

642 000

67

3 pok.

Oferuję przestronne mieszkanie na sprzedaż o powierzchni 67,42 m². Mieszkanie znajduje się na 1. piętrze w 2-piętrowym bloku z 1999 roku. Oferuje pełną własność. Mieszkanie gotowe do zamieszkania. W skład wyposażenia wchodzą: meble, pralka, lodówka, kuchenka oraz piekarnik. Dodatkowo do mieszkania p...

Zobacz ogłoszenie
7
Mieszkanie 3-pokojowe Jakubowice Murowane

450 000

64

3 pok.

Sprzedam mieszkanie-kondygnację w domu 3-kondygnacyjnym, jak na zdjęciach. Lokal wydzielony, z własną Księgą Wieczystą, bezczynszowy. Powierzchnia mieszkalna wynosi 64 m². Składa się z 3 pokoi, kuchni i łazienki. Rozliczenie indywidualne ze wszystkich mediów: prąd, woda, gaz. Dom znajduje się na o...

Zobacz ogłoszenie
6
Mieszkanie 3-pokojowe Bełżyce, ul. Bychawska

510 000

63

3 pok.

Oferuję na sprzedaż mieszkanie 63,4 m2, położone w Bełżycach, przy ul. Bychawskiej. Mieszkanie znajduje się na 1. piętrze i posiada: oddzielną kuchnię, 3 pokoje, łazienkę, toaletę, duży przedpokój oraz duży balkon. Przed wejściem do mieszkania znajduje się duży korytarz, zamykany na klucz, współdzi...

Zobacz ogłoszenie
13
Mieszkanie 4-pokojowe Bychawa, ul. marsz. Józefa Piłsudskiego

530 000

87

4 pok.

Na sprzedaż mieszkanie położone na trzecim piętrze w bloku przy ul. M.J. Piłsudskiego 65B. Dobra propozycja dla rodzin. Mieszkanie jest dwupoziomowe o łącznej powierzchni 87,6 m2. Na dolnej kondygnacji znajdują się: - przedpokój - pokój dzienny - sypialnia - kuchnia - łazienka - toaleta Na górnej...

Zobacz ogłoszenie