Mieszkanie do wynajęcia bez pośredników
Praga-Południe Warszawa

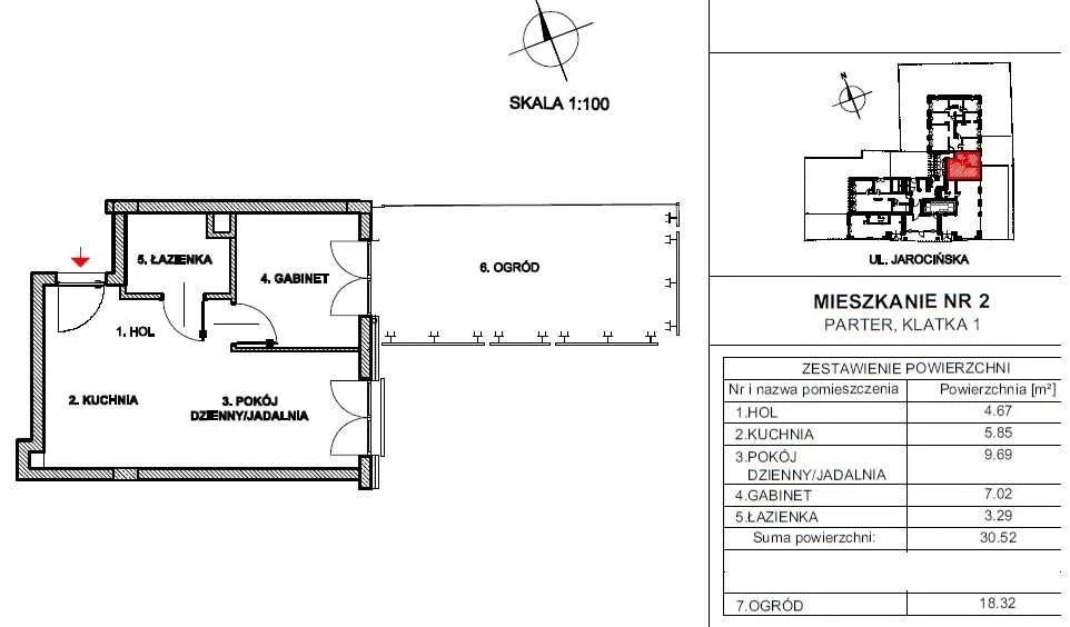
Mieszkanie 2-pokojowe Warszawa Praga-Południe. Zdjęcie 1

Mieszkanie do wynajęcia bez pośredników Warszawa Praga-Południe brak adresu · parter

3 300
108 zł/m²
30
2 pok.
Warszawa Praga-Południe - lokalizacja przybliżona
Bezpośrednio od właściciela

Do wynajęcia 2-pokojowe, przytulne mieszkanie o powierzchni 30,52 m² w apartamentowcu z 2021 r.
Do mieszkania przynależy ogródek (18,32 m²) .

Mieszkanie jest w pełni umeblowane i wyposażone:

Salon: narożnik z funkcją spania, stolik kawowy, szafka RTV, telewizor oraz trzy krzesła.
Sypialnia: łóżko (140x200) i duża szafa na ubrania.
Łazienka: pralka z suszarką.
Dodatkowo: odkurzacz.

Opłaty:
Czynsz najmu: 3300 zł.
Dodatkowe opłaty: ( woda, co, śmieci i prąd płatny według zużycia)
Miejsce w garażu podziemnym: opcjonalnie 150 zł miesięcznie.
Internet i TV: umowa po stronie najemcy.
Kaucja zwrotna 3300 zł.
Warunki:
Najem okazjonalny na minimum rok.

Zapraszam do prezentacji

  • Do wynajęcia mieszkanie 2-pokojowe o powierzchni 30,52 m² ogródek
  • Parter w apartamentowcu  
  • Warszawa, Praga-Południe  
  • Money Wallet 1 Streamline Icon: https://streamlinehq.com
    Kaucja 3300 zł
  • Umeblowanie w pełni
  • Wyposażenie pralka
  • Oferta bezpośrednio od właściciela dodana ponad miesiąc temu i zaktualizowana ponad tydzień temu

Podobne mieszkania na wynajem

7
Mieszkanie 2-pokojowe Warszawa Praga-Południe, ul. Zwycięzców

3 300

42

2 pok.

Dizajnerskie 2 pokoje na parterze. Prawdziwa Saska Kępa. Bzy za oknem, spokój i prywatność. Doskonały adres - Zwyciezców 47 - kamienica z białej cegły z 1960 roku. Mieszkanie zadbane, czyste, dostępne od ręki. Wszystkie media miejskie. W bezpośrednim sąsiedztwie Towarzyska, Koleżanka, a za rogiem ca...

Zobacz ogłoszenie
7
Mieszkanie 2-pokojowe Warszawa Praga-Południe, ul. Grochowska

3 500

40

2 pok.

Do wynajęcia nowe, bardzo komfortowe mieszkanie oddane w 2018 r. znajdujące się w inwestycji na Pradze Południe – Rondo Wiatraczna. Mieszkanie znajduje się na 7 piętrze budynku od strony Ronda Wiatraczna – piękny widok na panoramę Warszawy i brak sąsiadów patrzących z budynku naprzeciwko. Budynek z...

Zobacz ogłoszenie
10
Mieszkanie 2-pokojowe Warszawa Praga-Południe, ul. Zwycięzców

3 300

37

2 pok.

Na wynajem oferuję jasne i w pełni wyposażone mieszkanie o powierzchni 37,03 m², położone na 2. piętrze zadbanego budynku przy ul. Zwycięzców 4 w samym sercu Saskiej Kępy. W budynku jest winda. UKŁAD Mieszkanie składa się z: - komfortowego salonu z wyjściem na balkon (kanapa, stół, telewizor, stoli...

Zobacz ogłoszenie
9
Mieszkanie 2-pokojowe Warszawa Praga-Południe, ul. Podskarbińska

3 500

38

2 pok.

Do wynajęcia przytulne i funkcjonalne mieszkanie o powierzchni 38m2, położone na 3. piętrze w spokojnej części Pragi Południe-Kamionek. Lokal nigdy wcześniej nie był wynajmowany - do tej pory mieszkał w nim właściciel, dzięki czemu mieszkanie jest zadbane i dobrze utrzymane. Idealne dla jednej osoby...

Zobacz ogłoszenie
12
Mieszkanie 2-pokojowe Warszawa Praga-Południe, ul. Walecznych

3 500

33

2 pok.

Zapraszam na prezentację mieszkania na Saskiej Kępie Saska Kępa jest jedną z najbardziej urokliwych lokalizacji w Warszawie, bliskość unikatowej ulicy Francuskiej, Stadionu Narodowego i najpiękniejszego Parku Skaryszewskiego sprawia, że to jest wyjątkowe miejsce. Mieszkanie w przedwojennej kamienicy...

Zobacz ogłoszenie
15
Mieszkanie 2-pokojowe Warszawa Praga-Południe, ul. Jugosłowiańska

3 300

39

2 pok.

Wysoki standard, apartament o powierzchni 39m2 na 12 piętrze z 13 z przepiękną panoramą. :: Dla kogo? Dla ceniących estetykę na równi, z jakością. Apartament urządzony zgodnie z projektem znanego architekta wnętrz. :: Atuty? Poczucie przestrzeni, garderoba w postaci pięknej nowej szafy , jasne wnętr...

Zobacz ogłoszenie