Mieszkanie do wynajęcia bez pośredników
ul. Wawelska 78 Warszawa Ochota

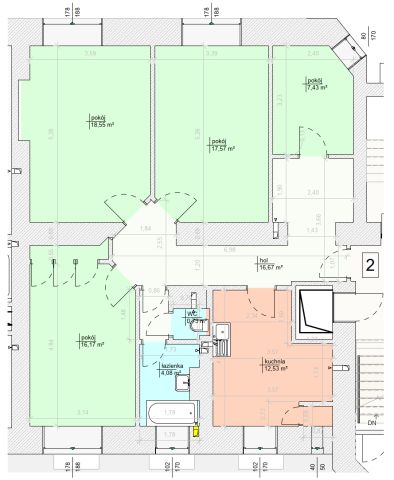
Mieszkanie 4-pokojowe Warszawa Ochota, ul. Wawelska. Zdjęcie 1

Mieszkanie do wynajęcia bez pośredników Warszawa Ochota ul. Wawelska 78 · parter

8 000
84 zł/m²
95
4 pok.
Warszawa Ochota, Wawelska 78 - lokalizacja dokładna
Bezpośrednio od właściciela

Lokal dostępny od 1 lipca

Do wynajęcia wyjątkowe, przestronne mieszkanie o powierzchni 95 m², położone na parterze klimatycznej, przedwojennej kamienicy w jednej z najbardziej pożądanych części Starej Ochoty.

Lokal wyróżnia się ponadstandardową wysokością pomieszczeń (ok. 3 m), dużymi oknami oraz klasycznym układem, który zapewnia komfort zarówno do zamieszkania, jak i prowadzenia działalności.

To idealna propozycja dla osób poszukujących:

reprezentacyjnej przestrzeni na kancelarię, biuro lub gabinety,
miejsca o unikalnym charakterze do zamieszkania,
lokalu łączącego klimat przedwojennej architektury z funkcjonalnością.
Nieruchomość położona jest w prestiżowej części Starej Ochoty — u zbiegu ulic Wawelskiej i Glogera. W bezpośrednim otoczeniu znajdują się kancelarie prawne, biura podatkowe, fundacje oraz inne spokojne działalności, co dodatkowo podnosi rangę lokalizacji.

Atuty lokalu:

przedwojenna kamienica z klimatem,
4 niezależne pokoje,
wysokie wnętrza,
grube mury zapewniające komfort termiczny (chłodno latem), oraz dobrą dzwiękoszczelność
funkcjonalny układ pomieszczeń,
parter z dwoma wejściami (jedno od wewnętrznego, zielonego podwórza, drugie od ulicy Wawelskiej) — wygodny dostęp dla klientów lub domowników.
Lokal z powodzeniem wykorzystywany był do różnych celów — przez wiele lat funkcjonowały tu gabinety psychologiczne, a obecnie od wielu lat mieści się szkoła śpiewu, co potwierdza bardzo dobrą akustykę oraz uniwersalność przestrzeni.

Istnieje możliwość dostosowania lokalu do potrzeb przyszłego najemcy. Część mebli widocznych na zdjęciach należy do obecnego najemcy — lokal może być częściowo umeblowany lub opróżniony.

kaucja: jednomiesięczny czynsz.

Oferta bezpośrednio od właściciela.

Zapraszam do kontaktu telefonicznego oraz na prezentację.

  • Do wynajęcia mieszkanie 4-pokojowe o powierzchni 95 m² piwnica, osobna kuchnia
  • Parter w 5-piętrowej kamienicy z windą
  • Dostępne do wynajęcia od 2026-07-01
  • Warszawa, Ochota ul. Wawelska 78
  • Opłaty 1429 zł/miesiąc
  • Money Wallet 1 Streamline Icon: https://streamlinehq.com
    Kaucja 8000 zł
  • Umeblowanie częściowo
  • Wyposażenie lodówka, piekarnik, pralka, zmywarka
  • Oferta bezpośrednio od właściciela dodana ponad tydzień temu i zaktualizowana 5 dni temu

Podobne mieszkania na wynajem

14
Mieszkanie 3-pokojowe Warszawa Śródmieście, ul. Wilcza

8 000

71

3 pok.

Wynajem na cele biurowe. Mieszkanie po generalnym remoncie w wysokim standardzie, kamienicy na rogu Wilczej i Marszałkowskiej, znakomicie skomunikowane. Mieszkanie składa się z 3 pokoi - 25, 20 i 14 m2, kuchni - 2,7 m2, łazienki 2,5 m2 i przedpokoju 7,5 m2. We wszystkich pokojach klimatyzacja.. ...

Zobacz ogłoszenie
17
Mieszkanie 4-pokojowe Warszawa Wola, al. Jana Pawła II

8 000

126

4 pok.

Mam przyjemność zaprezentować wyjątkowo przestronny apartament o powierzchni 126 m², zlokalizowany na 6 piętrze w centrum Warszawy. NIERUCHOMOŚĆ Apartament 4-pokojowy o powierzchni 126 m2, położony na 6. piętrze z dużą zamkniętą loggią. Wygodny układ i funkcjonalne pokoje sprawiają, że to idealna pr...

Zobacz ogłoszenie
20
Mieszkanie 4-pokojowe Warszawa Mokotów, ul. Bluszczańska

8 000

119

4 pok.

Do wynajęcia - eleganckie, przestronne mieszkanie z klimatyzacją, Bluszczańska 73 (119,2 m²). Komfortowe, nowoczesne i świeżo odświeżone mieszkanie z nową klimatyzacją, położone w kameralnym apartamentowcu otoczonym zielenią przy ul. Bluszczańskiej 73 w Warszawie. Projekt wnętrza autorstwa znanego...

Zobacz ogłoszenie
13
Mieszkanie 3-pokojowe Warszawa Śródmieście, ul. Mokotowska

7 900

84

3 pok.

Mieszkanie zlokalizowane w zabytkowej, eleganckiej kamienicy przy ul.Mokotowskiej - jednym z najbardziej prestiżowych adresów w Warszawie. NIERUCHOMOŚĆ Do wynajęcia mieszkanie o powierzchni 84 m², położona na 1. piętrze odrestaurowanej, reprezentacyjnej kamienicy przy ul. Mokotowskiej 7. Nieruchomoś...

Zobacz ogłoszenie
21
Mieszkanie 3-pokojowe Warszawa Śródmieście, ul. Tamka

7 900

70

3 pok.

Wyłącznie u NAS ENGLISH DESCRIPTION BELOW - PLEASE DO NOT HESITATE TO CONTACT US Dostępny od 1 LIPCA 2026 Apartament w sercu Warszawy na Powiślu ulica Tamka! PARAMETRY NIERUCHOMOŚCI: • Przestronny salon z wyjściem na dużą loggie/balkon z widokiem na ogrody sióstr Szarytek • Nowoczesna, otwarta kuc...

Zobacz ogłoszenie
25
Mieszkanie 5-pokojowe Warszawa Ochota, ul. Włodarzewska

8 000

127

5 pok.

Elegancki, 5-pokojowy apartament po remoncie | Ochota - Włodarzewska 55G | blisko zieleni i świetnej komunikacji Na wynajem wyjątkowy, przestronny apartament o powierzchni 125 m², zlokalizowany przy ul. Włodarzewskiej 55G na warszawskiej Ochocie - w jednej z najbardziej zielonych i przyjaznych do ży...

Zobacz ogłoszenie