Mieszkanie na sprzedaż bez pośredników
ul. Jana III Sobieskiego Wejherowo Centrum

NOWA OFERTA
Mieszkanie 3-pokojowe Wejherowo Centrum, ul. Jana III Sobieskiego. Zdjęcie 1

Mieszkanie na sprzedaż bez pośredników Wejherowo Centrum ul. Jana III Sobieskiego · parter

599 000
9 618 zł/m²
62
3 pok.
Wejherowo Centrum, Jana III Sobieskiego - lokalizacja przybliżona
Bezpośrednio od właściciela

Jeśli nie potrzebujesz pośrednika, zaoszczędzisz około 18 000 zł. Potrzebujesz wsparcia? Skorzystaj z pomocy agenta.

Na sprzedaż przytulne mieszkanie na parterze położone na osiedlu Sobieskiego - Orlex.

Mieszkanie bez konieczności nakładów finansowych.
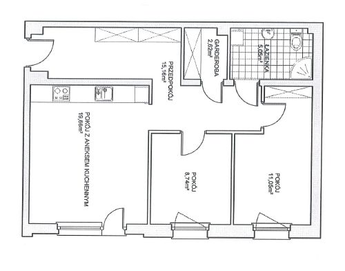
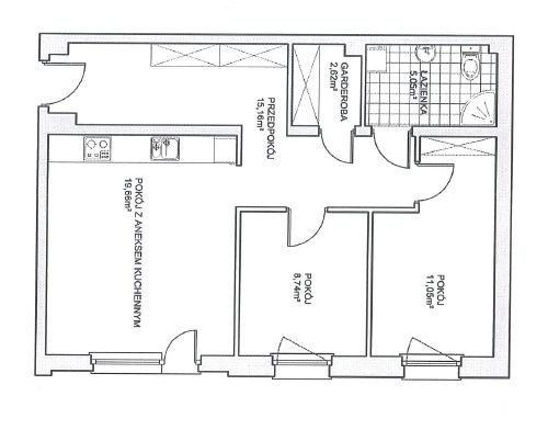
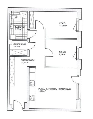
Powierzchnia mieszkania wynosi 62,28 m2
Układ mieszkania:
salon połączony z kuchnią
sypialnia
pokój
garderoba
łazienka
przedpokój
korytarz
W pobliżu
SKM - dworzec główny
Autobusy
Sklepy i punkty usługowe
szkoły i przedszkola
To idealne mieszkanie dla osób szukających mieszkania w cichej i spokojnej okolicy.

POŚREDNIKOM DZIĘKUJE

  • Na sprzedaż mieszkanie 3-pokojowe o powierzchni 62,28 m² ogródek, aneks kuchenny
  • Parter w 3-piętrowym bloku bez windy, rok budowy 2016
  • Wejherowo, Centrum ul. Jana III Sobieskiego
  • Mieszkanie w bardzo dobrym stanie okna plastikowe
  • Odrębna własność z księgą wieczystą  
  • Świadectwo Energetyczne SCHE/****/***/2016 EU: 41.97, EK: 68.6, EP: 90.4, Jednostkowa wielkość emisji: 0.02
  • Oferta bezpośrednio od właściciela dodana dodana dzisiaj
Ta nieruchomość może być Twoja od.. sprawdź
120000 zł (20%) Okres spłaty: 30 lat

Podobne mieszkania na sprzedaż

9
Mieszkanie 2-pokojowe Wejherowo Centrum, ul. 12 Marca

420 000

44

2 pok.

Na sprzedaż jasne, funkcjonalne mieszkanie o powierzchni 44,13 m², położone na 3 piętrze w zadbanej kamienicy przy ul. 12 Marca w Wejherowie. Lokal jest świeżo odmalowany i gotowy do zamieszkania od zaraz - bez dodatkowych nakładów finansowych! W skład mieszkania wchodzą: - Salon z aneksem kuchenny...

Zobacz ogłoszenie
13
Mieszkanie 3-pokojowe Wejherowo Centrum

560 000

53

3 pok.

Na sprzedaż jest trzypokojowe mieszkanie o powierzchni 53 m2, położone w doskonałej lokalizacji Wejherowa - w ścisłym centrum miasta, a jednocześnie w miejscu zapewniającym spokój. Mieszkanie znajduje się na pierwszym piętrze w czterokondygnacyjnym budynku. Składa się z salonu z wyjściem na mały b...

Zobacz ogłoszenie
4
Mieszkanie 3-pokojowe Wejherowo Centrum, ul. 3 Maja

399 000

56

3 pok.

Sprzedam mieszkanie z rozpoczętym remontem. W mieszkaniu wykonano nową instalację elektryczną z rozdzielnią, hydrauliczną do kuchni, tynki gipsowe na siatce, zdjęta stara podłoga na legarach (planowane było ogrzewanie podłogowe) W styczniu tego roku wymieniony został pion kanalizacyjny przez wszystk...

Zobacz ogłoszenie
10
Mieszkanie 3-pokojowe Wejherowo Centrum, ul. św. Jacka

495 000

74

3 pok.

Z ogromną przyjemnością prezentujemy nieruchomość o nieprzeciętnym potencjale, położoną w klimatycznej kamienicy w ścisłym centrum Wejherowa przy ul. św. Jacka. To propozycja idealna zarówno dla osób szukających przestronnego miejsca do życia w sercu miasta, jak i inwestorów planujących otworzenie ...

Zobacz ogłoszenie
20
Mieszkanie 3-pokojowe Wejherowo, ul. Franciszka Fenikowskiego

590 000

69

3 pok.

Zadzwoń lub napisz i zapytaj o wirtualny spacer! Spacer z opcją łatwego pomiaru dowolnego elementu nieruchomości! Na sprzedaż przestronne mieszkanie o powierzchni ok. 69,1 m², położone na parterze (kondygnacja 0) w budynku z 2008 roku. Do lokalu przynależy prywatny ogród o powierzchni ok. 120 m² — i...

Zobacz ogłoszenie
20
Mieszkanie 3-pokojowe Wejherowo Centrum, ul. Wałowa

799 000

65

3 pok.

98m2 powierzchni całkowitej w 2 poziomowym mieszkaniu z windą w nowoczesnym budownictwie !! Zapraszamy do skorzystania z wirtualnego spaceru 360 po mieszkaniu ! MIESZKANIE: Nieruchomość o powierzchni użytkowej w KW 65,49m2, a całkowitej po podłodze 98m2 z wysokością pomieszczeń 260 cm na parterze or...

Zobacz ogłoszenie