+10
zdjęć
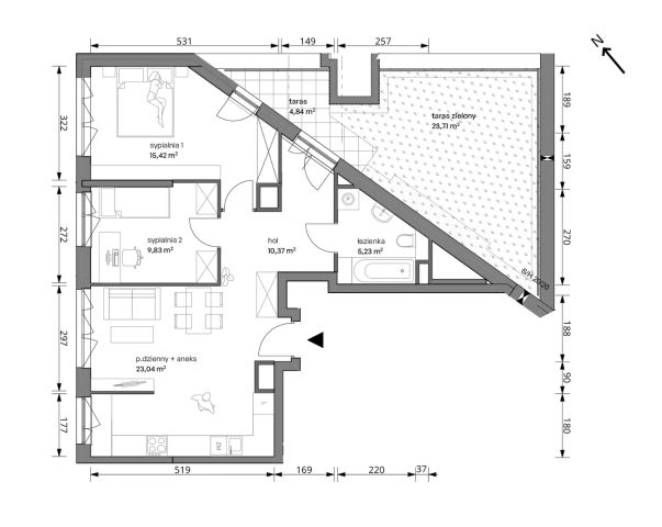
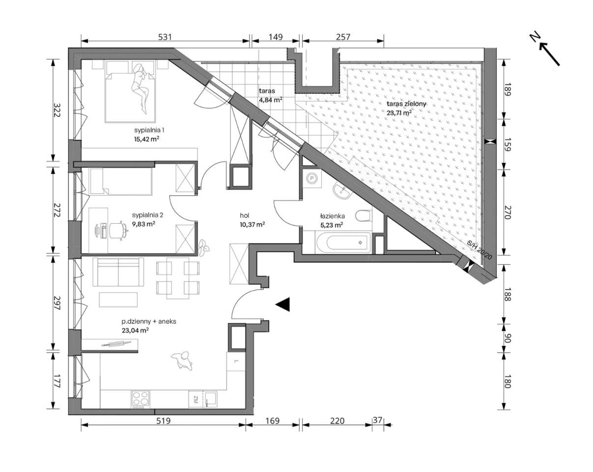
Nowe mieszkanie 3-pokojowe o powierzchni 63,89 m² w inwestycji Trzcinowa Vita dewelopera DEVELIA, na 5 piętrze w budynku 18 pod adresem ul. Trzcinowa 18, Warszawa Włochy. Planowany termin oddania to II kwartał 2027 roku.
Trzcinowa Vita to nowoczesna inwestycja mieszkaniowa zlokalizowana w spokojnej, zielonej części dzielnicy Włochy. Projekt inspirowany ideą miasta-ogrodu Ebenezera Howarda harmonijnie łączy komfort życia wśród przyrody z wygodnym dostępem do infrastruktury miejskiej oraz doskonałą komunikacją z centrum Warszawy.
W ramach I etapu powstaną dwa budynki, w których zaprojektowano 117 funkcjonalnych mieszkań o powierzchni od 26 do 113 m². Przeważają ustawne, 3-pokojowe lokale, idealne dla rodzin,... więcej >
Trzcinowa Vita to nowoczesna inwestycja mieszkaniowa zlokalizowana w spokojnej, zielonej części dzielnicy Włochy. Projekt inspirowany ideą miasta-ogrodu Ebenezera Howarda harmonijnie łączy komfort życia wśród przyrody z wygodnym dostępem do infrastruktury miejskiej oraz doskonałą komunikacją z centrum Warszawy.
W ramach I etapu powstaną dwa budynki, w których zaprojektowano 117 funkcjonalnych mieszkań o powierzchni od 26 do 113 m². Przeważają ustawne, 3-pokojowe lokale, idealne dla rodzin, par i singli. Do każdego mieszkania przynależy balkon lub prywatny ogródek – w zależności od kondygnacji.
II etap inwestycji obejmuje 46 komfortowych mieszkań, zaprojektowanych z myślą o różnych potrzebach przyszłych mieszkańców. W ofercie znajdują się:
- mieszkania 2-pokojowe o powierzchni od 34 do 43 m²,
- funkcjonalne lokale 3-pokojowe od 50 do 67 m²,
- przestronne mieszkania 4-pokojowe o metrażach od 68 do 77 m².
Podobnie jak w pierwszym etapie, każde mieszkanie posiada balkon lub ogródek, zapewniając dodatkową przestrzeń do wypoczynku.
Na terenie osiedla zaplanowano parking podziemny, naziemne miejsca postojowe, komórki lokatorskie oraz boksy do przechowywania. Dla miłośników aktywnego trybu życia przewidziano również stojaki rowerowe.
Lokalizacja sprzyjająca codziennemu komfortowi
Inwestycja znajduje się w bezpośrednim sąsiedztwie terenów zielonych, takich jak Park Ogrody Kosmosu, Park Koziorożca czy Park Kombatantów. W niewielkiej odległości położony jest także malowniczy staw Glinianki Sznajdra – idealny na spacery i rekreację. W promieniu kilkuset metrów dostępne są liczne punkty usługowe, sklepy (m.in. Biedronka, Lidl), a także placówki edukacyjne – żłobek, przedszkole oraz szkoła muzyczna.
Zaledwie 1 km od osiedla znajduje się stacja PKP Warszawa Włochy, z której dojazd do centrum Warszawy zajmuje około 15–20 minut. Bliskość przystanków autobusowych dodatkowo zwiększa komfort komunikacyjny.
Atuty inwestycji:
- spokojna okolica w otoczeniu zabudowy mieszkaniowej
- sąsiedztwo terenów rekreacyjnych i zieleni
- bliskość placówek edukacyjnych, sklepów i punktów usługowych
- szeroki wybór mieszkań z balkonami lub ogródkami
Niniejszy materiał ma charakter informacyjny i nie stanowi oferty w rozumieniu Kodeksu cywilnego.
Oficjalna strona internetowa inwestycji:
https://develia.pl/pl/mieszkania/warszawa/trzcinowa-vita/
Podobne mieszkania w inwestycji Trzcinowa Vita:
3 pok.
54.63 m²
parter
zapytaj
3 pok.
63.70 m²
1 piętro
zapytaj
3 pok.
54.63 m²
1 piętro
zapytaj
3 pok.
63.70 m²
2 piętro
zapytaj
3 pok.
54.63 m²
2 piętro
zapytaj
3 pok.
63.70 m²
3 piętro
zapytaj
3 pok.
54.63 m²
3 piętro
zapytaj
3 pok.
63.70 m²
4 piętro
zapytaj
3 pok.
54.63 m²
4 piętro
zapytaj
3 pok.
64.10 m²
parter
zapytaj
3 pok.
56.61 m²
parter
zapytaj
3 pok.
56.61 m²
1 piętro
zapytaj
3 pok.
56.61 m²
2 piętro
zapytaj
3 pok.
56.61 m²
3 piętro
zapytaj
3 pok.
56.61 m²
4 piętro
zapytaj
3 pok.
56.61 m²
5 piętro
zapytaj
3 pok.
62.22 m²
parter
zapytaj
3 pok.
73.19 m²
1 piętro
zapytaj
3 pok.
70.33 m²
1 piętro
zapytaj
3 pok.
73.19 m²
2 piętro
zapytaj
3 pok.
70.33 m²
2 piętro
zapytaj
3 pok.
73.19 m²
3 piętro
zapytaj
3 pok.
70.33 m²
3 piętro
zapytaj
3 pok.
73.19 m²
4 piętro
zapytaj
3 pok.
70.33 m²
4 piętro
zapytaj
3 pok.
73.19 m²
5 piętro
zapytaj
3 pok.
70.32 m²
5 piętro
zapytaj
3 pok.
62.23 m²
parter
zapytaj
3 pok.
68.53 m²
1 piętro
zapytaj
3 pok.
62.23 m²
1 piętro
zapytaj
3 pok.
68.53 m²
2 piętro
zapytaj
3 pok.
62.23 m²
2 piętro
zapytaj
3 pok.
55.78 m²
1 piętro
zapytaj
3 pok.
66.77 m²
1 piętro
zapytaj
3 pok.
55.78 m²
2 piętro
zapytaj
3 pok.
66.77 m²
2 piętro
zapytaj
3 pok.
55.78 m²
3 piętro
zapytaj
3 pok.
55.78 m²
4 piętro
zapytaj
3 pok.
68.31 m²
parter
zapytaj
3 pok.
55.30 m²
1 piętro
zapytaj
3 pok.
68.32 m²
1 piętro
zapytaj
3 pok.
55.30 m²
2 piętro
zapytaj
3 pok.
68.32 m²
2 piętro
zapytaj
3 pok.
55.30 m²
3 piętro
zapytaj
3 pok.
68.32 m²
3 piętro
zapytaj
3 pok.
55.30 m²
4 piętro
zapytaj
3 pok.
68.32 m²
4 piętro
zapytaj
3 pok.
57.49 m²
1 piętro
zapytaj
3 pok.
57.49 m²
2 piętro
zapytaj
3 pok.
65.83 m²
2 piętro
zapytaj
3 pok.
57.49 m²
3 piętro
zapytaj
3 pok.
65.83 m²
3 piętro
zapytaj
3 pok.
57.49 m²
4 piętro
zapytaj
3 pok.
65.83 m²
4 piętro
zapytaj
3 pok.
65.83 m²
5 piętro
zapytaj
3 pok.
63.89 m²
5 piętro
zapytaj
3 pok.
67.84 m²
1 piętro
zapytaj
3 pok.
67.84 m²
2 piętro
zapytaj
3 pok.
55.38 m²
parter
zapytaj
3 pok.
53.63 m²
parter
zapytaj
Pozostałe nieruchomości tego dewelopera:
Mieszkania DEVELIA Warszawa
Mieszkania DEVELIA Trzcinowa Vita Warszawa
Mieszkania 3-pokojowe DEVELIA Trzcinowa Vita Warszawa