+6
zdjęć
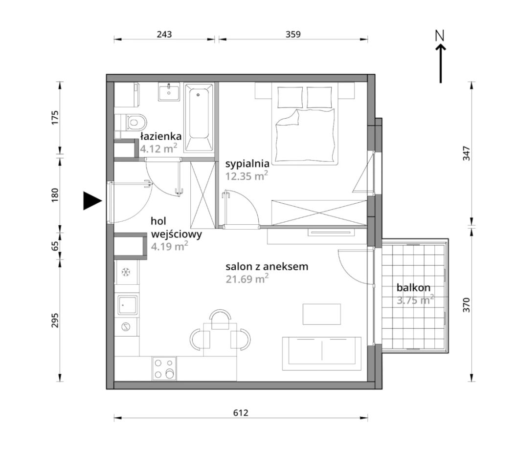
Nowe mieszkanie 2-pokojowe o powierzchni 42,32 m² w inwestycji Aleje Praskie dewelopera DEVELIA, na 3 piętrze pod adresem ul. Podskarbińska, Warszawa Praga-Południe. Planowany termin oddania to III kwartał 2025 roku.
Aleje Praskie to warszawska inwestycja realizowania w jednej z najdynamiczniej rozwijających się części Pragi Południe, niespełna 500 m od planowanej stacji metra Mińska. Projekt podzielony na kilka etapów, zakłada budowę 1572 mieszkań, w niskich, 4-piętrowych budynkach. Osiedle będzie wyróżniać się atrakcyjnym zagospodarowaniem terenu.
Oferta została zaprojektowana tak, aby każdy mógł znaleźć układ i metraż idealnie dopasowany do swoich potrzeb. Każde mieszkanie posiada dodatkową otwartą... więcej >
Aleje Praskie to warszawska inwestycja realizowania w jednej z najdynamiczniej rozwijających się części Pragi Południe, niespełna 500 m od planowanej stacji metra Mińska. Projekt podzielony na kilka etapów, zakłada budowę 1572 mieszkań, w niskich, 4-piętrowych budynkach. Osiedle będzie wyróżniać się atrakcyjnym zagospodarowaniem terenu.
Oferta została zaprojektowana tak, aby każdy mógł znaleźć układ i metraż idealnie dopasowany do swoich potrzeb. Każde mieszkanie posiada dodatkową otwartą przestrzeń w postaci balkonu, tarasu lub ogródka. Projekt realizowany jest z zastosowaniem najnowszych technologii i w trosce o ochronę środowiska. Potwierdzeniem tego jest certyfikowanie budynków międzynarodowym systemem BREEAM. Centralnym punktem osiedla będzie przestronny, wewnętrzny dziedziniec, gdzie ruch kołowy zostanie ograniczony do minimum. Na terenie inwestycji powstaną także alejki spacerowe, tężnia solankowa, siłownia plenerowa oraz plac zabaw dla najmłodszych mieszkańców. W ofercie przewidziane są również lokale usługowe.
Lokalizacja
Aleje Praskie są usytuowane w obrębie osiedla Kamionek – części Pragi, która zyskuje na popularności i wyróżnia się ciekawą architekturą oraz sztuką uliczną. Liczne tereny zielone stwarzają doskonałe warunki do aktywnego wypoczynku na świeżym powietrzu, ale również do odpoczynku i wyciszenia w wielkim mieście. W pobliżu znajdziemy m.in.: Park Obwodu Praga Armii Krajowej, Park Polińskiego, Park Skaryszewski czy teren wokół Jeziora Kamionkowskiego. Kamionek jest również bardzo dobrze skomunikowany. Bliskość ważnych węzłów komunikacyjnych – ul. Grochowskiej, ul. Targowej, Al. Waszyngtona i Al. Stanów Zjednoczonych pozwala na szybki dojazd w inne rejony miasta, a dotarcie samochodem do centrum zajmuje kilkanaście minut.
Atuty inwestycji:
- Funkcjonalne układy mieszkań
- Tężnia solankowa, aleje spacerowe na terenie osiedla
- Inwestycja atrakcyjna pod kątem wynajmu
- W pobliżu jest planowana stacja metra – Mińska
- Dobra komunikacja z innymi dzielnicami Warszawy
- Niska zabudowa i spokojny charakter inwestycji
- Parki i tereny rekreacyjne w okolicy
Daty zakończenia poszczególnych etapów inwestycji:
Etap III - III kwartał 2025 r.
Etap V – II kwartał 2025 r.
Etap VIII - III kwartał 2026 r.
Etap IX – III kwartał 2026 r.
Niniejszy materiał nie stanowi oferty w rozumieniu Kodeksu cywilnego i ma charakter wyłącznie informacyjny.
Szczegóły inwestycji dostępne są na stronie internetowej develia.pl
Podobne mieszkania w inwestycji Aleje Praskie:
2 pok.
42.37 m²
parter
zapytaj
2 pok.
42.93 m²
parter
zapytaj
2 pok.
41.53 m²
parter
zapytaj
2 pok.
42.19 m²
2 piętro
zapytaj
2 pok.
42.33 m²
4 piętro
zapytaj
2 pok.
41.53 m²
4 piętro
zapytaj
2 pok.
44.71 m²
2 piętro
zapytaj
2 pok.
41.06 m²
2 piętro
zapytaj
2 pok.
41.09 m²
3 piętro
zapytaj
2 pok.
41.21 m²
4 piętro
zapytaj
2 pok.
46.66 m²
1 piętro
zapytaj
2 pok.
37.88 m²
2 piętro
zapytaj
2 pok.
46.66 m²
2 piętro
zapytaj
2 pok.
46.66 m²
3 piętro
zapytaj
2 pok.
43.11 m²
4 piętro
zapytaj
2 pok.
47.32 m²
1 piętro
zapytaj
2 pok.
45.52 m²
2 piętro
zapytaj
2 pok.
42.65 m²
parter
zapytaj
2 pok.
40.85 m²
parter
zapytaj
2 pok.
41.68 m²
parter
zapytaj
2 pok.
45.64 m²
1 piętro
zapytaj
2 pok.
39.26 m²
1 piętro
zapytaj
2 pok.
39.07 m²
1 piętro
zapytaj
2 pok.
40.99 m²
1 piętro
zapytaj
2 pok.
41.68 m²
1 piętro
zapytaj
2 pok.
41.93 m²
1 piętro
zapytaj
2 pok.
45.64 m²
2 piętro
zapytaj
2 pok.
39.26 m²
2 piętro
zapytaj
2 pok.
39.07 m²
2 piętro
zapytaj
2 pok.
40.99 m²
2 piętro
zapytaj
2 pok.
41.68 m²
2 piętro
zapytaj
2 pok.
41.93 m²
2 piętro
zapytaj
2 pok.
45.64 m²
3 piętro
zapytaj
2 pok.
39.26 m²
3 piętro
zapytaj
2 pok.
39.07 m²
3 piętro
zapytaj
2 pok.
40.99 m²
3 piętro
zapytaj
2 pok.
41.68 m²
3 piętro
zapytaj
2 pok.
41.93 m²
3 piętro
zapytaj
2 pok.
45.64 m²
4 piętro
zapytaj
2 pok.
39.26 m²
4 piętro
zapytaj
2 pok.
39.07 m²
4 piętro
zapytaj
2 pok.
40.99 m²
4 piętro
zapytaj
2 pok.
41.68 m²
4 piętro
zapytaj
2 pok.
41.93 m²
4 piętro
zapytaj
2 pok.
41.93 m²
5 piętro
zapytaj
2 pok.
48.84 m²
parter
zapytaj
2 pok.
43.10 m²
parter
zapytaj
2 pok.
43.10 m²
1 piętro
zapytaj
2 pok.
48.84 m²
1 piętro
zapytaj
2 pok.
43.10 m²
2 piętro
zapytaj
2 pok.
48.84 m²
2 piętro
zapytaj
2 pok.
43.10 m²
3 piętro
zapytaj
2 pok.
48.84 m²
3 piętro
zapytaj
2 pok.
43.10 m²
4 piętro
zapytaj
2 pok.
48.84 m²
4 piętro
zapytaj
2 pok.
38.36 m²
parter
zapytaj
2 pok.
38.36 m²
1 piętro
zapytaj
2 pok.
42.50 m²
1 piętro
zapytaj
2 pok.
38.26 m²
1 piętro
zapytaj
2 pok.
42.00 m²
2 piętro
zapytaj
Pozostałe nieruchomości tego dewelopera:
Mieszkania DEVELIA Warszawa
Mieszkania DEVELIA Aleje Praskie Warszawa
Mieszkania 2-pokojowe DEVELIA Aleje Praskie Warszawa