Mieszkanie na sprzedaż bez pośredników
Tolkmicko  

Mieszkanie 1-pokojowe Tolkmicko. Zdjęcie 1

Mieszkanie na sprzedaż bez pośredników Tolkmicko brak adresu · 1 piętro

199 900
7 688 zł/m²
26
1 pok.
Tolkmicko - lokalizacja przybliżona
Bezpośrednio od właściciela

Jeśli nie potrzebujesz pośrednika, zaoszczędzisz około 6 000 zł. Potrzebujesz wsparcia? Skorzystaj z pomocy agenta.

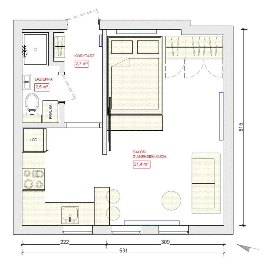
Sprzedam przytulną, po remoncie i w pełni umeblowaną kawalerkę w Tolkmicku.

Sprzedam słoneczną i bardzo przytulną kawalerkę o powierzchni 26,57 m², położoną w Tolkmicku (I piętro).

Mieszkanie przeszło generalny remont, podczas którego wymieniono m. in. instalację elektryczną, dzięki czemu lokal nie wymaga żadnych dodatkowych nakładów finansowych.

Mieszkanie jest ciepłe i słoneczne dzięki południowo-zachodniej ekspozycji, co sprawia, że przez większość dnia wpada do niej naturalne światło.

Lokal jest w pełni umeblowany - wszystkie meble oraz wyposażenie widoczne na zdjęciach są wliczone w cenę, co pozwala na natychmiastowe wprowadzenie się lub szybkie rozpoczęcie wynajmu.

Atuty nieruchomości:

* Po generalnym remoncie, z nową instalacją elektryczną.
* Niski czynsz - jedynie 190 zł/miesiąc.
* Piwnica 6 m² przynależna do lokalu.
* Mieszkanie gotowe do zamieszkania od zaraz.
* Sprzedaż bez pośredników.
* Budynek ocieplony.
* Dwie opcje ogrzewania - elektryczne lub możliwość korzystania z pieca c.o. znajdującego się w piwnicy.
* Słoneczne wnętrze dzięki południowo-zachodniej ekspozycji.
* Świetna lokalizacja - blisko sklepy, punkty usługowe, tereny zielone.

To doskonała propozycja dla osób szukających niewielkiego, funkcjonalnego mieszkania lub jako inwestycja pod wynajem.

Więcej informacji udzielę telefonicznie.

  • Na sprzedaż mieszkanie 1-pokojowe o powierzchni 26 m² piwnica
  • 1 piętro w bloku  
  • Tolkmicko  
  • Oferta bezpośrednio od właściciela dodana ponad miesiąc temu i zaktualizowana ponad tydzień temu
Ta nieruchomość może być Twoja od.. sprawdź
40000 zł (20%) Okres spłaty: 30 lat

Podobne mieszkania na sprzedaż

17
Mieszkanie 2-pokojowe Tolkmicko, ul. Morska

189 000

36

2 pok.

Witam, Mam na sprzedaż mieszkanie własnościowe przy plaży w miejscowości Tolkmicko, nad Zalewem Wiślanym. Mieszkanie o powierzchni 36 metrów kwadratowych składa się z: - Duży, ustawny pokój z oknem skierowanym na podwórze - około 18 m2. - Mniejszy pokój z aneksem kuchennym i oknem wychodzącym na u...

Zobacz ogłoszenie