Mieszkanie na sprzedaż bez pośredników
ul. Romana Brandstaettera Tarnów

Mieszkanie 3-pokojowe Tarnów, ul. Romana Brandstaettera. Zdjęcie 1

Mieszkanie na sprzedaż bez pośredników Tarnów ul. Romana Brandstaettera · 2 piętro

420 000
6 774 zł/m²
62
3 pok.
Tarnów, Romana Brandstaettera - lokalizacja przybliżona
Bezpośrednio od właściciela

Jeśli nie potrzebujesz pośrednika, zaoszczędzisz około 12 600 zł. Potrzebujesz wsparcia? Skorzystaj z pomocy agenta.

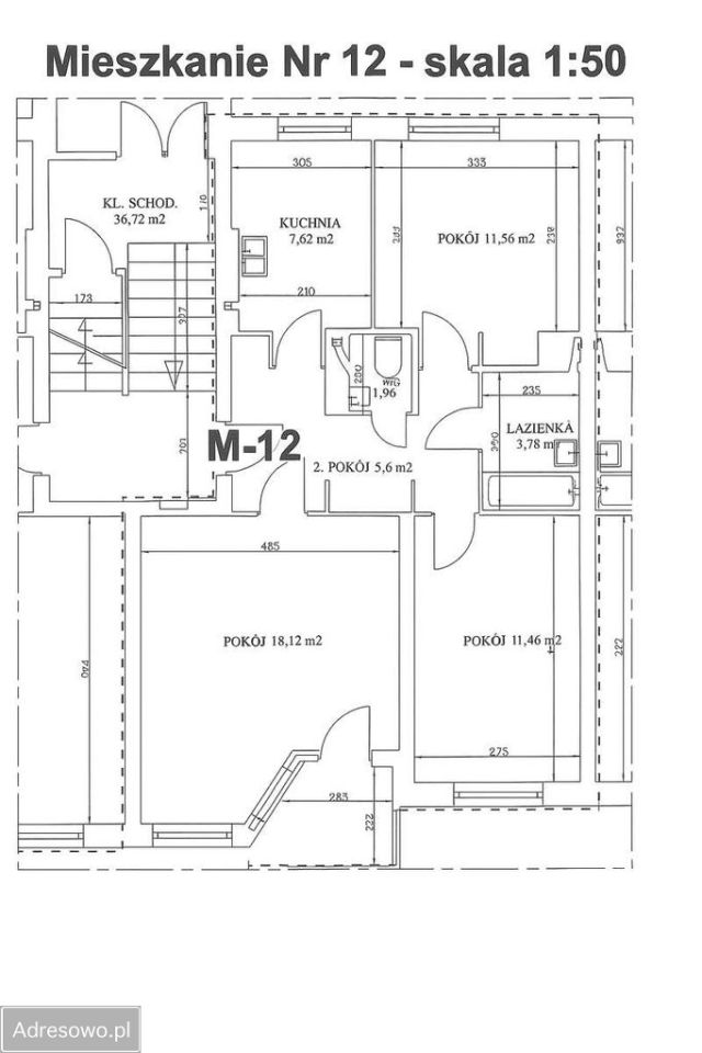
Na sprzedaż: Przestronne mieszkanie 62 m² w Tarnowie

LOKALIZACJA: ul. Brandstaettera, Tarnów
CENA: 420 000 PLN (do negocjacji z właścicielem)

---

Na sprzedaż przestronne mieszkanie o powierzchni 62 m², położone na drugim piętrze w czteropiętrowym budynku z cegły. Mieszkanie dostępne bezpośrednio od właściciela.

INFORMACJE PODSTAWOWE:
- Rok budowy: 1996
- Powierzchnia: 62 m²
- Piętro: 2 (blok z cegły)
- Parking: dostępny pod blokiem

UKŁAD POMIESZCZEŃ:
- duży salon z wyjściem na balkon,
- oddzielna sypialnia,
- kuchnia z otwartą przestrzenią,
- łazienka,
- osobne WC,
- przestronny przedpokój.

STAN MIESZKANIA:
Mieszkanie wymaga odświeżenia lub remontu, jednak posiada duży potencjał aranżacyjny.

DODATKOWE INFORMACJE:
- Do mieszkania przynależy piwnica o powierzchni 8 m².
- Czynsz wynosi ok. 1100 zł (dla 2 osób) i obejmuje:
- ogrzewanie,
- zaliczki na zimną i ciepłą wodę,
- utrzymanie czystości,
- opłaty za części wspólne,
- wywóz nieczystości,
- fundusz remontowy.
- Mieszkanie znajduje się w zasobach spółdzielni mieszkaniowej.

WAŻNA UWAGA:
Zdjęcia przedstawione w ogłoszeniu są jedynie wizualizacją realnych pomieszczeń. Drewniana wyspa w kuchni jest elementem stałym. Fotografie z balkonu i sprzed bloku są realnym przedstawieniem stanu budynku.

  • Na sprzedaż mieszkanie 3-pokojowe o powierzchni 62 m² balkon, piwnica, garaż/miejsce parkingowe
  • 2 piętro w 4-piętrowym bloku rok budowy 1996
  • Tarnów ul. Romana Brandstaettera
  • Mieszkanie w stanie do odświeżenia  
  • Odrębna własność z księgą wieczystą  
  • Oferta bezpośrednio od właściciela dodana ponad miesiąc temu i zaktualizowana ponad tydzień temu
Ta nieruchomość może być Twoja od.. sprawdź
84000 zł (20%) Okres spłaty: 30 lat

Podobne mieszkania na sprzedaż

8
Mieszkanie 3-pokojowe Tarnów, ul. Rolnicza

419 914

45

3 pok.

Sprzedaż prywatna bez pośredników. Mieszkanie jest w trakcie remontu. Zdjęcia przedstawiają nasze poprzednie realizacje. Zakończenie prac planowane jest na początek marca, na obecnym etapie jest możliwość wyboru materiałów wykończeniowych przez klienta. Na sprzedaż mieszkanie o powierzchni 45 m2, ...

Zobacz ogłoszenie
17
Mieszkanie 3-pokojowe Tarnów

469 920

48

3 pok.

Nowa Pradolina - Nowy wymiar życia w Tarnowie Osiedle przy ul. Skrzyszowskiej łączy nowoczesną architekturę z zielonym otoczeniem, tworząc idealne miejsce do życia i inwestowania. Etap I - Mieszkania 132 mieszkania i domy w zabudowie szeregowej (pow. 48-81 m², 3-4 pokoje, także dwupozio...

Zobacz ogłoszenie
5
Mieszkanie 2-pokojowe Tarnów, ul. Romana Brandstaettera

369 000

48

2 pok.

Na sprzedaż mieszkanie bezpośrednio od właściciela, zlokalizowane na jednym z najbardziej popularnych osiedli w Tarnowie przy ul. Brandstattera. Mieszkanie składa się z dwóch oddzielnych pokoi, przestronnego przedpokoju, kuchni oraz łazienki. Mieszkanie w bardzo dobrym stanie technicznym, na podło...

Zobacz ogłoszenie
8
Mieszkanie 4-pokojowe Tarnów, ul. Promienna

430 000

60

4 pok.

Do sprzedania: Przestronne 4-pokojowe mieszkanie 60,5m² - umeblowane i po świeżym częściowym remoncie. Opis: Mam przyjemność zaproponować do sprzedania atrakcyjne 4-pokojowe mieszkanie o powierzchni 60,5 m² mieszczące się przy ul. Promiennej w Tarnowie. Mieszkanie znajduje się na 2 piętrze w bloku ...

Zobacz ogłoszenie
17
Mieszkanie 3-pokojowe Tarnów, os. Zielone

429 000

60

3 pok.

Mieszkanie na sprzedaż, rynek wtórny, księga wieczysta. Tarnów, Os. Zielone, 3 pokoje, 60,4m2 + duża piwnica, duży balkon. Czynsz średnio 650zł (gas, woda, ogrzewanie, śmieci). Media: telewizja kablowa, internet. Mieszkanie zlokalizowane jest na 3 piętrze w zadbanym 4-piętrowym bloku, po termoizolac...

Zobacz ogłoszenie
8
Mieszkanie 3-pokojowe Tarnów, ul. Bitwy pod Studziankami

440 000

48

3 pok.

Sprzedam mieszkanie 48,2 m² po generalnym remoncie - Tarnów, z balkonem i piwnicą, w świetnej lokalizacji i z pięknym widokiem. Na sprzedaż oferuję atrakcyjne mieszkanie o powierzchni 48,2 m², położone na 6. piętrze w bloku z windą przy ul. Bitwy pod Studziankami w Tarnowie. Do lokalu przynależy pi...

Zobacz ogłoszenie