Środa Wielkopolska
ul. Klonowa
2-pokojowe mieszkanie na sprzedaż Bez pośrednika

Mieszkanie 2-pokojowe Środa Wielkopolska, ul. Klonowa
Cena
259 000
Powierzchnia
27
Cena za m²
9 593
Piętro
parter
Rok budowy
2026
Środa Wielkopolska · 259 000 zł

Ogłoszenie właściciela - bez pośredników

Mieszkanie 2-pokojowe Środa Wielkopolska, ul. Klonowa. Zdjęcie 1
Mieszkanie 2-pokojowe Środa Wielkopolska, ul. Klonowa. Zdjęcie 1

Bez pośrednika. Oszczędzasz 7 800 zł na prowizji pośrednika!

Zastanawiając się przy zakupie samochodu rozważamy jaki powinien mieć silnik, czym jest napędzany i ile będzie kosztować Nas podróżowaniem nim z punktu A do B. W przypadku budynku często pomijamy czy jego eksploatacja albo przyszłe wydatki pozwolą Nam żyć w spokoju o budżet domowy.

Dlatego dom na Osiedlu Błękitnym został tak zbudowany aby mieć jak najmniejszą stratę ciepła i zapotrzebowanie na ogrzewanie. Sprawdź inne oferty czy posiadają takie rozwiązania, a się przekonasz że większość jest nadal budowana w oparciu o rozwiązania sprzed kilkudziesięciu lat w najlepszym przypadku.

Wybierz mądrze! Nadeszły trudne czasy i koszty ogrzewania budynków podrożały kilkukrotnie.

Według nowych rozporządzeń od 2028 roku wprowadzony ma zostać zakaz ogrzewania budynków piecami gazowymi, w naszym domu nie grozi Ci kosztowna modernizacja.

Obecnie wskaźnik zapotrzebowania energetycznego dla nowych budynków nie może być większy niż 70kWh/(m2 x rok), a dzięki zastosowanej technologii w domach na Osiedlu Błękitnym udało się osiągnąć wskaźnik na poziomie 23,85kWh/(m2 x rok).W rezultacie otrzymujecie niskie koszty utrzymania domu ale i też spokój na przyszłość poprzez brak konieczności dostosowywania się do coraz to nowszych wytycznych, niższych wskaźników, które będą z roku na rok coraz bardziej rygorystyczne. Domy na Osiedlu Błękitnym to brak konieczności modernizacji budynków i ponoszenia związanych z tym wysokich kosztów.

OCENA CHARAKTERYSTYKI ENERGETYCZNEJ BUDYNKU:
Wskaźnik rocznego zapotrzebowania na energię użytkową: EU=34,07 kWh/(m2 x rok)
Wskaźnik rocznego zapotrzebowania na energię końcową: EK=53,41 kWh/(m2 x rok)
Wskaźnik rocznego zapotrzebowania na nieodnawialną energię pierwotną: EP= 23,85 kWh/(m2 x rok)
Jednostkowa wielkość emisji CO2: Eco2=0,00t CO2/(m2 x rok)
Udział odnawialnych źródeł energii w rocznym zapotrzebowaniu na energię końcową: Uoze=85,11%

Osiedle mieści się w dobrze skomunikowanej z Poznaniem miejscowości Środa Wielkopolska-dojazd z dworca głównego Poznań zajmuje 21 minut, a droga S11 około 25 minut.

Dzięki niskiemu zapotrzebowaniu na energię dom spełnia także warunki ekokredytu hipotecznego(niższe oprocentowanie kredytu).

Przetestowane rozwiązania pozwolą płacić 250 zł rocznie za ogrzewanie oraz znacząco podnieść komfort mieszkania.

Rozwiązania, których nawet za dopłatą nie znajdziesz u innych.

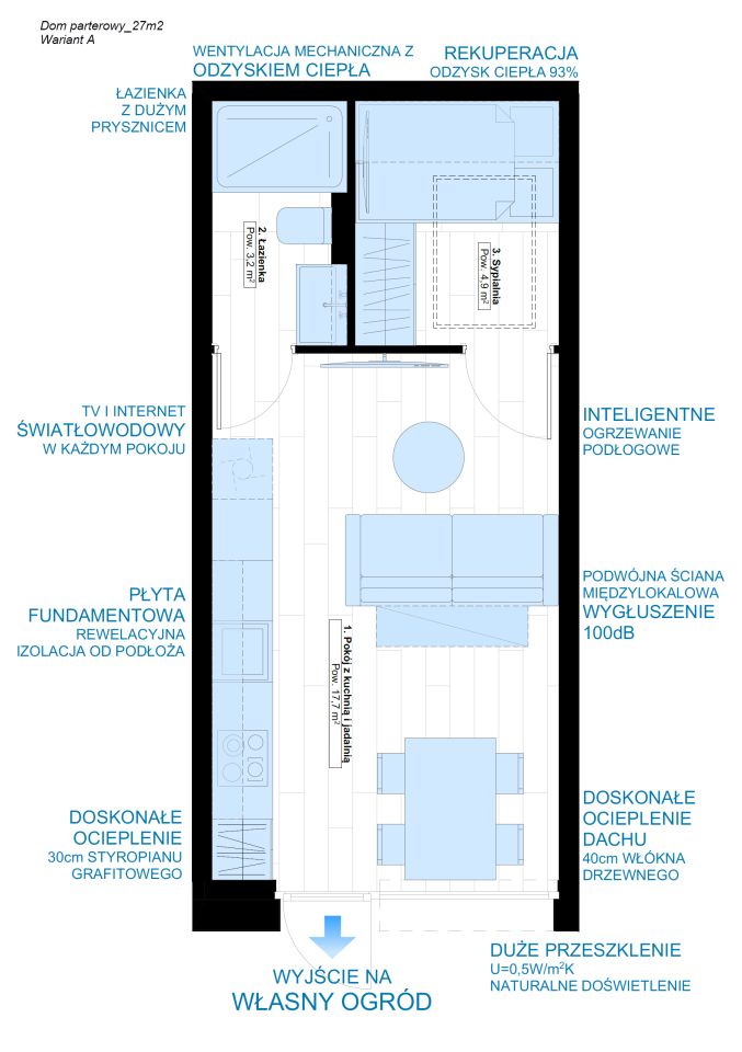
Standard Osiedla Błękitnego to:
- inteligentne ogrzewanie podłogowe - wysoki komfort i znikome rachunki za ogrzewanie
- wentylacja mechaniczna w domu z odzyskiem ciepła-rekuperator odzysk do 93% ciepła
- ocieplenie ścian 30 cm styropianem grafitowym
- ocieplenie dachu 40 cm oddychającej wełny drzewnej -ciepło zimą chłodno latem
- dom posadowiony na płycie fundamentowej - doskonale zaizolowany od gruntu
- własne miejsce postojowe bezpośrednio przed domem
- pełną własność domu i działki
- teren rekreacji na osiedlu- boiska sportowe, miejsce na ognisko, huśtawki
- podwójne ściany między domami-rewelacyjna akustyka między sąsiadami.
- filtracja powietrza 24h na dobę- brak pyłków oraz wilgoci w domu

Osiedle Błękitne to domy niskoenergetyczne i przyjazne dla środowiska

Wybierz Błękitny Dom i oszczędzaj nawet 70% rocznie na kosztach ogrzewania!
20 lat doświadczenia, tysiące zadowolonych klientów
Ponad 312 wybudowanych domów

Energooszczędny dom, powinien być dopracowany w każdym szczególe. Odpowiednia izolacja ścian sprawi, że budynek dłużej utrzymywał będzie odpowiednią temperaturę. Ocieplenie ścian to nie wszystko, chcąc zapobiec uciekaniu ciepła warto również zadbać o szczelność okien. Ograniczenie utraty ciepła przez budynek wymaga perfekcyjnego uszczelnienia wszystkich miejsc, które mogą przyczynić się do strat energetycznych.

Mniejsze rachunki to przede wszystkim niezależność. Energooszczędny dom to pierwszy krok do pewnego rodzaju wolności. Rosnące ceny energii elektrycznej sprawiają, że jedynym ratunkiem wydaje się zmniejszenia zapotrzebowania energetycznego. Jak tego dokonać? Wystarczy postawić na oszczędny, zdrowy i inteligentny dom. Osiedle Błękitne oferuje wyjątkowe budynki mieszkalne, które zapewnia nie tylko mniejsze koszty eksploatacji ale także wyjątkowy komfort wszystkich mieszkańców. Bądź niezależny, przestań płacić wysokie rachunki utrzymania i mieszkaj w zdrowym domu!

Zastosowana technologia chroni Cię przed przegrzewaniem domu w letnie upały!

Wybierając dom, warto wybiegać myślami w przyszłość. Mniejsze koszty utrzymania powinny być wystarczającą motywacją do decyzji o zamieszkaniu w domu energooszczędnym. Rachunki już nie muszą przewyższać twoich możliwości finansowych. Energia elektryczna stanowi znaczny wydatek pochłaniający spore środki z budżetu domowego?

Zamieszkanie w jednym z domów zlokalizowanych na Osiedlu Błękitnym pozwoli na większa kontrolę nad finansami.

Spokojna Lokalizacja:
- dojazd do Ronda Rataje i centrów handlowych w Poznaniu (Posnania, Galeria Malta, Park Handlowy Franowo oraz IKEA) zajmuje tylko 22 min,
- dojazd samochodem do Autostrady A2 zajmuje tylko 15 min,
- rozwinięta infrastruktura na terenie osiedla-drogi wewnętrzne brukowane, boiska sportowe, place zabaw, miejsce na ognisko,
- w promieniu 700 m od osiedla znajdują się sieci dyskontów Dino, Lidl, Polo Market oraz Intermarche,
- w pobliżu osiedla znajdują się szkoły, przedszkola, uczelnia wyższa, punkty usługowe, przychodnie, apteki oraz liczne sklepy,
- bliskość jeziora,
- doskonałe połączenie komunikacyjne na trasie Środa Wielkopolska – Poznań koleją metropolitalną w 20 min na Dworzec Główny

Sprzedajemy prawdziwe DOMY. Dajemy gwarancje. Tylko u nas jest to formalnie i konstrukcyjnie DOM zamiast wszechobecnych lokali mieszkalnych.

Na Osiedlu Błękitnym zamieszkasz we własnym i niezależnym DOMU:
- pełna własność dla domu i budynku- własna księga wieczysta
- konstrukcja domu jest niezależna- podwójne ściany
- niezależność sąsiedzka w zakresie jakichkolwiek zmian lub dodatkowych instalacji np. panele fotowoltaiczne
- doskonała akustyka między domami dzięki sześciu warstwom ściany oddzielającej domy

POMAGAMY W KREDYTOWANIU
Zdając sobie sprawę, iż zakup własnego M to jedna z najważniejszych decyzji w życiu, proponujemy kompleksową obsługę w zakresie kredytów hipotecznych.

Brak prowizji i podatku od czynności cywilnoprawnych przy zakupie!

Powyższy opis nie stanowi oferty w rozumieniu kodeksu cywilnego, a dane w nim zawarte mają charakter informacyjny i mogą ulec zmianie. Prezentowane zdjęcia mają charakter poglądowy i przedstawiają przykładowe wykończenie domu.

  • Oferta z rynku pierwotnego
  • Na sprzedaż mieszkanie 2-pokojowe o powierzchni 27 m²
  • parter w 1-piętrowym apartamentowcu bez windy z 2026 roku
  • Środa Wielkopolska, ul. Klonowa
  • Taras, zewnętrzne miejsce parkingowe, ogródek, aneks kuchenny
  • Mieszkanie do wykończenia, okna plastikowe
  • Odrębna własność z księgą wieczystą
  • Wyposażenie: internet
  • Oferta dodana bezpośrednio przez właściciela ponad miesiąc temu i zaktualizowana wczoraj
  • Świadectwo Energetyczne SCHE/****/***/2024
    EU: 37.87, EK: 57.98, EP: 19.88, UOZE: 86.29%, Jednostkowa wielkość emisji: 0
Wróć
Największa baza ogłoszeń bez pośredników
Zarejestruj się, aby przejść dalej
lub

Kontynuując akceptujesz
Regulamin i Politykę prywatności

Masz już konto na adresowo.pl?
Zaloguj się

Mamy dla Ciebie kredyt hipoteczny z niską ratą! Chcesz poznać szczegóły?

Kontakt z VeloBank:
- ofertę, wniosek i decyzję o przyznaniu kredytu w procesie online,
- wsparcie eksperta hipotecznego na każdym kroku,
- kredyt do 90% wartości nieruchomości.





Wyrażam zgodę na przetwarzanie moich danych osobowych zawartych w formularzu na stronie adresowo.pl przez VeloBank S.A. z siedzibą w Warszawie przy Rondo Ignacego Daszyńskiego 2C (Bank), a tym samym na ich przetwarzanie, w tym profilowanie, przez Bank w celu marketingu produktów i usług Banku za pośrednictwem rozmowy telefonicznej i sms. Zgoda może być w każdej chwili wycofana. Cofnięcie zgody nie ma wpływu na zgodność z prawem przetwarzania danych przed jej wycofaniem.