Mieszkanie na sprzedaż bez pośredników
ul. Czerwonego Krzyża Siedlce Centrum

Mieszkanie 3-pokojowe Siedlce Centrum, ul. Czerwonego Krzyża. Zdjęcie 1

Mieszkanie na sprzedaż bez pośredników Siedlce Centrum ul. Czerwonego Krzyża · 1 piętro

569 000
8 891 zł/m²
64
3 pok.
Siedlce Centrum, Czerwonego Krzyża - lokalizacja przybliżona
Bezpośrednio od właściciela

Jeśli nie potrzebujesz pośrednika, zaoszczędzisz około 17 100 zł. Potrzebujesz wsparcia? Skorzystaj z pomocy agenta.

Dzień dobry,
Bez pośredników! Za wszelkie propozycje współpracy dziękuję, ale nie skorzystam!
Mieszkanie w super lokalizacji, samo centrum, z parkingiem pod blokiem (za szlabanem) oraz ogrodzonym placem zabaw dla dzieci - blisko skrzyżowania ul. Czerwonego Krzyża z ul. Aslanowicza, w drugiej linii od ulicy więc cisza i spokój.
Czysta księga wieczysta, bez zadłużeń w spółdzielni.
Szkoły, sklepy, urzędy, przedszkola, uczelnie, przychodnia, lokale gastronomiczne czy park - wszystko w promieniu max 10min na piechotę.

Mieszkanie własnościowe, na pierwszym piętrze (1 z 11) dodatkowo jest winda, duży balkon, piwnica i komórka.
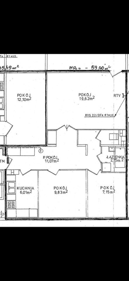
3 pokoje (mały pokój, średni i salon z balkonem), kuchnia, łazienka i oddzielnie toaleta.
Wymienione drzwi i okna. Klimatyzacja od strony zachodniej 3,2kw.

Zapraszam do kontaktu

  • Na sprzedaż mieszkanie 3-pokojowe o powierzchni 64 m² balkon, piwnica, osobna kuchnia
  • 1 piętro w 11-piętrowym bloku z windą, rok budowy 1982
  • Siedlce, Centrum ul. Czerwonego Krzyża
  • Mieszkanie w bardzo dobrym stanie okna plastikowe
  • Odrębna własność z księgą wieczystą  
  • Wyposażenie internet, klimatyzacja, kuchenka, lodówka, piekarnik, pralka, zmywarka
  • Cena do negocjacji  
  • Oferta bezpośrednio od właściciela dodana ponad miesiąc temu i zaktualizowana przedwczoraj
Ta nieruchomość może być Twoja od.. sprawdź
114000 zł (20%) Okres spłaty: 30 lat

Podobne mieszkania na sprzedaż

8
Mieszkanie 3-pokojowe Siedlce Centrum, ul. Sulimów

560 000

58

3 pok.

3 pokojowe mieszkanie ul. sulimów 31 na ostatnim 3 piętrze bez windy kuchnia salon skierowane na wschód sypialnia i mały pokój na zachód 2 balkony w sypialni i salonie. Łazienka z wanna i osłoną do prysznica osobne WC 2 szafy w zabudowie na przedpokoju i salonie , w oknach rolety i moskitiery. Piwni...

Zobacz ogłoszenie
20
Mieszkanie 3-pokojowe Siedlce Centrum, ul. Jana III Sobieskiego

495 000

51

3 pok.

Nowe

Siedlce 51 m², 3 pokoje, duży balkon, piwnica, 1 piętro, gotowe do zamieszkania, blok po termomodernizacji, możliwość dokupienia garażu blaszaka. Na sprzedaż jasne, słoneczne (okna wschód, południe, zachód), funkcjonalne mieszkanie o powierzchni 51 m², położone na 1 piętrze budynku przy ul. Jana II...

Zobacz ogłoszenie
13
Mieszkanie 3-pokojowe Siedlce Centrum, ul. Wiatraczna

595 000

48

3 pok.

Na sprzedaż wyjątkowe, 3-pokojowe mieszkanie o powierzchni 48,07 m², położone w samym centrum Siedlec - ul. Wiatraczna, na 2. piętrze w zadbanym budynku. Lokalizacja to jeden z największych atutów - ścisłe centrum miasta, a jednocześnie zielone i spokojne otoczenie. W zasięgu kilku minut pieszo: sk...

Zobacz ogłoszenie
12
Mieszkanie 3-pokojowe Siedlce Centrum, ul. Sulimów

500 000

57

3 pok.

Sprzedam trzy pokojowe mieszkanie z oddzielną kuchnią, piwnicą i dostępem do dużej, dodatkowej komórki. Zlokalizowane na 2 piętrze gotowe do zamieszkania i idealne pod względem infrastrukturalnym w okolicy przedszkole i tereny zielone. Mieszkanie posiada KW i nie jest w żaden sposób obciążone, więc ...

Zobacz ogłoszenie
7
Mieszkanie 4-pokojowe Siedlce Centrum, ul. Błonie

490 000

70

4 pok.

Zapraszam do zakupu mieszkań w centrum Siedlec. Oferuję na sprzedaż przestronne mieszkanie o powierzchni 70 m². Mieszkanie położone jest na ostatnim piętrze budynku przy ulicy Błonie. Do lokalu przynależy piwnica oraz garaż, co stanowi dodatkowy atut. Osiedle jest zamknięte, spokojne i bezpieczne ...

Zobacz ogłoszenie
12
Mieszkanie 3-pokojowe Siedlce Centrum, ul. 10 Lutego

580 000

53

3 pok.

OPIS MIESZKANIA Mieszkanie 3-pokojowe, dwustronne z balkonem, składa się z: - pokój, - pokój, - salon otwarty z kuchnią w zabudowie, - łazienka, - oddzielna toaleta (z szafkami), - korytarz. Ponadto: garaż - 18,80 m2, pomieszczenie gospodarcze - 4 m2 - gotowe do użytkowania z zamontowanymi półkami...

Zobacz ogłoszenie