Mieszkanie na sprzedaż bez pośredników
ul. Jarzębinowa Siechnice

Mieszkanie 4-pokojowe Siechnice, ul. Jarzębinowa. Zdjęcie 1

Mieszkanie na sprzedaż bez pośredników Siechnice ul. Jarzębinowa · 3 piętro

670 000
7 791 zł/m²
86
4 pok.
Siechnice, Jarzębinowa - lokalizacja przybliżona
Bezpośrednio od właściciela

Jeśli nie potrzebujesz pośrednika, zaoszczędzisz około 20 100 zł. Potrzebujesz wsparcia? Skorzystaj z pomocy agenta.

Przestronne i jasne mieszkanie w Centrum Siechnic, w otoczeniu zieleni. Sprzedaż z wyposażeniem.

Lokalizacja:
Siechnice, Jarzębinowa 15.

Mieszkanie składa się z:
Strefy dziennej:
- Łazienka z kabiną prysznicową, pralką i suszarką (4,00 m2)
- Korytarz z pojemnymi szafami wnękowymi (7,8 m2)
- Pokój dzienny połączony z kuchnią i wyjściem na balkon (23,2 m2)
- Pokój (8,1 m2)

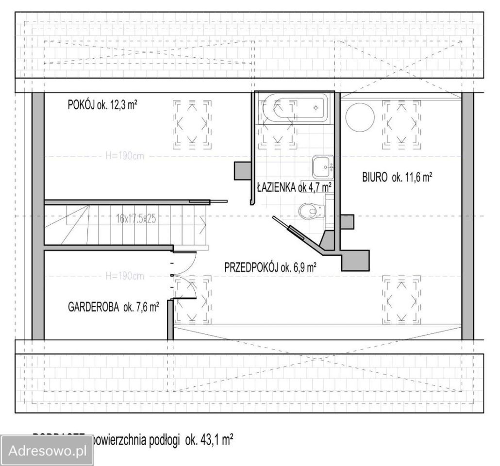
Strefy prywatnej na drugim poziomie mieszkania:
- Sypialnia (12,3 m2)
- Łazienka z wanną i oknem (4,7 m2)
- Przestrzeń biurowa, idealna do pracy zdalnej (możliwość aranżacji kolejnego pokoju) (11,60 m2)
- Garderoba (7,6 m2)
- Korytarz z pojemnymi szafami pod wymiar z lustrami oraz wygodnym fotelem (6,9 m2)

Dodatkowo:
- Balkon 4,5 m kw.
- Komórka lokatorska.

Parametry główne:
- Salon połączony z kuchnią, dwa osobne pokoje, dwie łazienki, w tym jedna z oknem i wanną.
- Centrum Siechnic, ogrodzone osiedle, bardzo zielone, znajdujące się w otoczeniu parków.
- Sprzedaje drugi właściciel, remont elewacji bloku w 2021 roku.
- Dwupoziomowe. Parter mieszkania wyremontowany w 2022 r.
- Nowa klimatyzacja.
- Ogrzewanie kominkowe i elektryczne.
- Balkon z widokiem na zieleń.
- Mieszkanie na 3. piętrze (bez windy).

Wyposażenie i udogodnienia:
- Mieszkanie w pełni wyposażone w meble i sprzęt AGD.
- Nowy klimatyzator.
- Balkon zadaszony prześwitującą pleksą, nie zabiera światła. Widok z balkonu na zieleń i ogrodzone osiedle, idealne dla rodzin z dziećmi, gwarantujące bezpieczną zabawę.
- Komórka lokatorska przyległa do mieszkania, pojemna i wygodna do przechowywania (w cenie mieszkania).
- Nowe schody prowadzące na drugi poziom.
- Ogrzewanie elektryczne (dla wygodnych), alternatywne ogrzewanie kominkowe (bardzo ekonomiczne).
- Bardzo dużo miejsca do przechowywania, skosy na drugim poziomie zagospodarowane na pojemne szafy w zabudowie z lustrami, powiększającymi optycznie przestrzeń.
- Nowe meble kuchenne na wymiar wykonane w 2022 r., nowe pojemne szafy w zabudowie w przedpokoju.
- Wyremontowana w 2022 r. łazienka.
- Na pierwszym poziomie w pokoju dziennym wiele miejsca na domowe i kuchenne gadżety, bardzo dobrze wykorzystana przestrzeń do przechowywania, również w kuchni. Szafy po sam sufit.
- Na pierwszym poziomie drewniana podłoga, na drugim poziomie wykładzina.
- Poziom drugi z pięcioma oknami dachowymi, w tym trzy nowe, drewniane okna dachowe. W powierzchni biurowej znajdują się żaluzje zewnętrzne, sterowane pilotem - zasilanie solarne.
- Przytulny kominek, dający ciepło i tworzący atmosferę domu.
- Balkon z zadaszeniem, na którym można spożywać posiłki lub wieczorem relaksować się.

Lokalizacja i otoczenie:
- Centrum Siechnic, blisko do Żabki, sklepu spożywczego osiedlowego, apteki, Biedronki, Lidla, Dino, stacji paliw, Kościoła, Poczty, Urzędu Miejskiego, piekarni, warzywniaka, kosmetyczki i fryzjera na wyciągnięcie ręki. Nowo wybudowana przychodnia.
- W otoczeniu paczkomaty InPost / Orlen.
- Przystanek PKP - 25 minut na pieszo (10 min. dojazd do Wrocławia).
- Przystanek komunikacji Siechnickiej 5 minut na pieszo (40 min. dojazd do G. Dominikańskiej).
- Przystanek PKS Oława - Wrocław - 10 minut na pieszo (25 minut do Wrocławia).

Edukacja:
Blisko żłobki, przedszkola oraz nowo wybudowana Szkoła Podstawowa numer 2.

Rekreacja i infrastruktura:
Trasy spacerowe, trasy rowerowe, sąsiedztwo zieleni, parków, lasów. Blisko kąpielisko Laguna oraz wały (teren nie jest oczywiście zagrożony powodzią). Blisko siłownia.

Dla kogo:
- Dla rodziny 2+1 lub 2+2.
- Dla osób, które pracują zdalnie w domu - przestrzeń biurowa jest przystosowana do pracy codziennej w domu, szybki internet, okna z roletami zewnętrznymi, szybko działające.
- Dla osób lubiących życie miejsko-wiejskie - centrum Siechnic zapewnia dogodne i wygodne życie z wykorzystaniem wszelkich atutów życia miejskiego, ale otoczenie zieleni i teren wokół jest na tyle przyjemny, że czujemy się jak na wsi.

Atuty:
- Centrum Siechnic, lokalizacja bardzo dogodna jeśli chodzi o autobusy i pociągi. Blisko żłobki, przedszkola, szkoła, Biedronka, Lidl, Centrum Handlowe, Apteka, piekarnia, warzywniak.
- Osiedle ogrodzone z widokiem na zieleń, gdzie dziecko może spokojnie się bawić. W spokojnej okolicy, wokół wiele terenów zielonych, dogodnych do spacerów oraz wycieczek rowerowych.
- Mieszkanie bardzo jasne i przestronne.
- Oddzielona strefa dzienna od nocnej, prywatnej.
- Sąsiedzi bardzo mili, uczynni, przyjemna i bardzo rodzinna atmosfera osiedla.
- Miejsca parkingowe do wynajmu lub darmowe na parkingach wokół bloku.
- Brak szumu z ulicy i bezpośredniego sąsiedztwa ruchliwej ulicy.
- Pomimo bardzo dużej przestrzeni - czynsz do wspólnoty na bardzo niskim poziomie.
- Zapas brykietu na kolejną zimę w komórce lokatorskiej pozostawiamy dla nowych właścicieli.
- Ekspozycja okien na trzy strony świata.
- Bardzo ciepłe w zimie, nie nagrzewa się w lecie.
- Układ pozwala na wygodne codzienne funkcjonowanie - bez wąskich korytarzy i niewykorzystanych metrów.
- Jasne wnętrza, dobry rozkład i naturalne światło sprawiają, że przestrzeń jest przyjemna i komfortowa na co dzień.
- Nieruchomość nie jest obciążona hipoteką, możliwość zakupu przez cudzoziemców.

Zapraszam do kontaktu po więcej szczegółów lub umówienia terminu prezentacji.

Dlaczego warto zobaczyć na żywo:
To mieszkanie wypada najlepiej podczas prezentacji na żywo - rozkład, światło i przestrzeń są jego największymi atutami, których nie oddają w pełni zaprezentowane zdjęcia, rzuty oraz dokładny opis.

  • Na sprzedaż dwupoziomowe mieszkanie 4-pokojowe o powierzchni 86 m² balkon, piwnica, aneks kuchenny
  • 3 piętro w 3-piętrowym bloku bez windy, rok budowy 2007
  • Siechnice ul. Jarzębinowa
  • Mieszkanie w stanie do odświeżenia okna plastikowe
  • Odrębna własność z księgą wieczystą  
  • Wyposażenie internet, klimatyzacja, kuchenka, mikrofalówka, piekarnik, telewizor, zmywarka
  • Oferta bezpośrednio od właściciela dodana ponad miesiąc temu i zaktualizowana ponad tydzień temu
Ta nieruchomość może być Twoja od.. sprawdź
134000 zł (20%) Okres spłaty: 30 lat

Podobne mieszkania na sprzedaż

10
Mieszkanie 3-pokojowe Siechnice, ul. Mieszczańska

630 000

58

3 pok.

Na sprzedaż oferuję mieszkanie o powierzchni 58,31 m2. Położone w doskonałej lokalizacji, zapewniającej szybki dostęp do infrastruktury miejskiej przy zachowaniu spokoju osiedlowej zabudowy. Mieszkanie z przestronną, w pełni funkcjonalną antresolą znajduje się na pierwszym piętrze dwupiętrowego bud...

Zobacz ogłoszenie
8
Mieszkanie 3-pokojowe Siechnice

635 191

60

3 pok.

Bez podatku od czynności cywilnoprawnych (PCC) Bez prowizji  Na sprzedaż  3 pokojowe mieszkanie w stanie deweloperskim na kameralnym osiedlu willowym w Siechnicach. Komórka lokatorska i miejsce postojowe w cenie. Inwestycja składa się z 11 dwupiętrowych budynków mieszkalnych. Na ogrodzonym osiedlu ...

Zobacz ogłoszenie
8
Mieszkanie 3-pokojowe Siechnice, ul. Graniczna

659 000

57

3 pok.

Nowe

Sprzedam bezpośrednio mieszkanie o powierzchni użytkowej 57,77m2. w Siechnicach przy ulicy Granicznej. Mieszkanie składa się z trzech pokoi, kuchni, łazienki i przedpokoju. Posiada balkon i przynależną komórkę lokatorską. Mieszkanie jest częściowo umeblowane. W cenie mieszkania - meble w kuchni, zmy...

Zobacz ogłoszenie
7
Mieszkanie 3-pokojowe Siechnice

610 575

61

3 pok.

Szukasz idealnego miejsca do życia ? z dala od miejskiego zgiełku, a jednocześnie z doskonałym dostępem do infrastruktury i natury? Poznaj Siechnice ? nowoczesną inwestycję mieszkaniową, która łączy funkcjonalność, estetykę i wyjątkowy standard wykończenia. Nowoczesne i funkcjonalne mieszkania, 2 ...

Zobacz ogłoszenie
23
Mieszkanie 3-pokojowe Siechnice, ul. Jana Pawła II

675 000

55

3 pok.

Do sprzedania 3-pokojowe mieszkanie o powierzchni 55,6 m² z balkonem i komórką. Usytuowane na 2 piętrze w budynku z 2016r przy ul. Jana Pawła II w Siechnicach. Mieszkanie jest klimatyzowane , posiada praktyczny i nowoczesny układ pomieszczeń oraz wykończone jest w dobrym standardzie. MIESZKAN...

Zobacz ogłoszenie
7
Mieszkanie 3-pokojowe Siechnice

640 000

52

3 pok.

Szukasz idealnego miejsca do życia ? z dala od miejskiego zgiełku, a jednocześnie z doskonałym dostępem do infrastruktury i natury? Poznaj Siechnice ? nowoczesną inwestycję mieszkaniową, która łączy funkcjonalność, estetykę i wyjątkowy standard wykończenia. Nowoczesne i funkcjonalne mieszkania, 2 ...

Zobacz ogłoszenie