Mieszkanie na sprzedaż bez pośredników
ul. M. Kopernika Pszczyna

Mieszkanie 2-pokojowe Pszczyna, ul. M. Kopernika. Zdjęcie 1

Mieszkanie na sprzedaż bez pośredników Pszczyna ul. M. Kopernika · parter

380 010
9 998 zł/m²
38
2 pok.
Pszczyna, M. Kopernika - lokalizacja przybliżona
Bezpośrednio od właściciela

Jeśli nie potrzebujesz pośrednika, zaoszczędzisz około 11 400 zł. Potrzebujesz wsparcia? Skorzystaj z pomocy agenta.

Super okazja mieszkanie w centrum Pszczyny.

Pszczyna Apartamenty Kopernika Park - ul. Mikołaja Kopernika 25

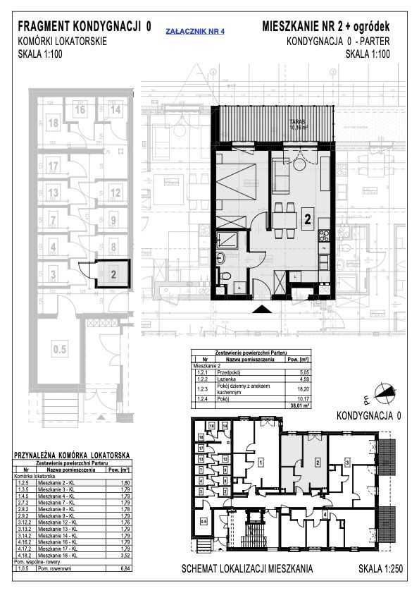
Na sprzedaż oferujemy nowe mieszkanie o powierzchni 38,01 m², zlokalizowane na parterze kameralnego budynku w centrum Pszczyny.

Szczegóły nieruchomości:
Metraż: 38,01 m²
Ilość pokoi: 2
Stan: mieszkanie w inwestycji w trakcie realizacji.
Otoczenie:
W okolicy sklepy, placówki edukacyjne, przystanki komunikacji miejskiej.
Blisko do terenów spacerowych i stref rekreacyjnych, nieopodal rynku.
Standard:
Ogrzewanie podłogowe z niezależnym sterowaniem.
Rolety w oknach.

Dodatkowo płatne miejsce postojowe zewnętrzne lub w garażu.

Mieszkanie cechuje się funkcjonalnym rozkładem i nowoczesnymi rozwiązaniami technicznymi. To świetna opcja dla osób szukających komfortowego lokum w dobrej lokalizacji lub inwestycji pod wynajem.

Zadzwoń lub napisz, aby uzyskać więcej szczegółów i poznać inne dostępne mieszkania w tej inwestycji.

Ogłoszenie ma charakter informacyjny i nie stanowi oferty w rozumieniu przepisów Kodeksu Cywilnego.

  • Oferta z rynku pierwotnego
  • Na sprzedaż mieszkanie 2-pokojowe o powierzchni 38,01 m² garaż
  • Parter w apartamentowcu  
  • Pszczyna ul. M. Kopernika
  • Oferta bezpośrednio od właściciela dodana ponad miesiąc temu i zaktualizowana ponad tydzień temu
Ta nieruchomość może być Twoja od.. sprawdź
76000 zł (20%) Okres spłaty: 30 lat

Podobne mieszkania na sprzedaż

11
Mieszkanie 2-pokojowe Goczałkowice-Zdrój, ul. Zimowa

490 000

47

2 pok.

Sprzedaję mieszkanie na trzecim piętrze w nowym apartamentowcu z 2022 roku. Lokal ma powierzchnię 47 m² i jest w pełni wyposażony w meble, pralkę, zmywarkę, lodówkę, kuchenkę, piekarnik oraz telewizor. Dodatkowo do mieszkania przynależy balkon oraz miejsce parkingowe. W budynku jest winda, a także s...

Zobacz ogłoszenie
5
Mieszkanie 2-pokojowe Wola

260 000

48

2 pok.

Witam! Posiadam na sprzedaż mieszkanie znajdujące się w miejscowości Wola. Idealne położenie: szkoła po drugiej stronie ulicy, blisko przedszkole, basen, sklepy. Mieszkanie to 48 m2: dwa pokoje, kuchnia osobno, łazienka i WC, balkon oraz dwie przynależne do niego piwnice. Mieszkanie znajduje się ...

Zobacz ogłoszenie
13
Mieszkanie 3-pokojowe Pszczyna Siedlice, ul. ks. bp. Bogedaina

339 000

43

3 pok.

Na sprzedaż 3-pokojowe mieszkanie, mieszczące się na II piętrze jednego z wielorodzinnych budynków w Pszczynie przy ul. Bogedaina. Powierzchnia użytkowa mieszkania to 43,56 mkw, składają się na nią 3 całkowicie niezależne pokoje, duża ustawna kuchnia z oknem, łazienka oraz przedpokój z wnęka n...

Zobacz ogłoszenie
4
Mieszkanie 2-pokojowe Pszczyna Siedlice, ul. L. Zamenhofa

320 000

50

2 pok.

Mieszkanie , atrakcyjna lokalizacja, miejsce parkingowe, spokojna okolica, do zamieszkania od zaraz.

Zobacz ogłoszenie
5
Mieszkanie 2-pokojowe Pszczyna

288 600

37

2 pok.

Witam, Mam do sprzedaży dwupokojowe mieszkanie o powierzchni 37 m², zlokalizowane w samym centrum urokliwej Pszczyny. Mieszkanie znajduje się w bezpośrednim sąsiedztwie legendarnego Parku Pszczyńskiego - idealnego miejsca na codzienne spacery i rekreację. W zasięgu krótkiego spaceru znajdą Państwo...

Zobacz ogłoszenie