Mieszkanie na sprzedaż bez pośredników
ul. Rzeczna Przemyśl Kmiecie

Mieszkanie 4-pokojowe Przemyśl Kmiecie, ul. Rzeczna. Zdjęcie 1

Mieszkanie na sprzedaż bez pośredników Przemyśl Kmiecie ul. Rzeczna · 2 piętro

348 000
6 063 zł/m²
57
4 pok.
Przemyśl Kmiecie, Rzeczna - lokalizacja przybliżona
Bezpośrednio od właściciela

Jeśli nie potrzebujesz pośrednika, zaoszczędzisz około 10 400 zł. Potrzebujesz wsparcia? Skorzystaj z pomocy agenta.

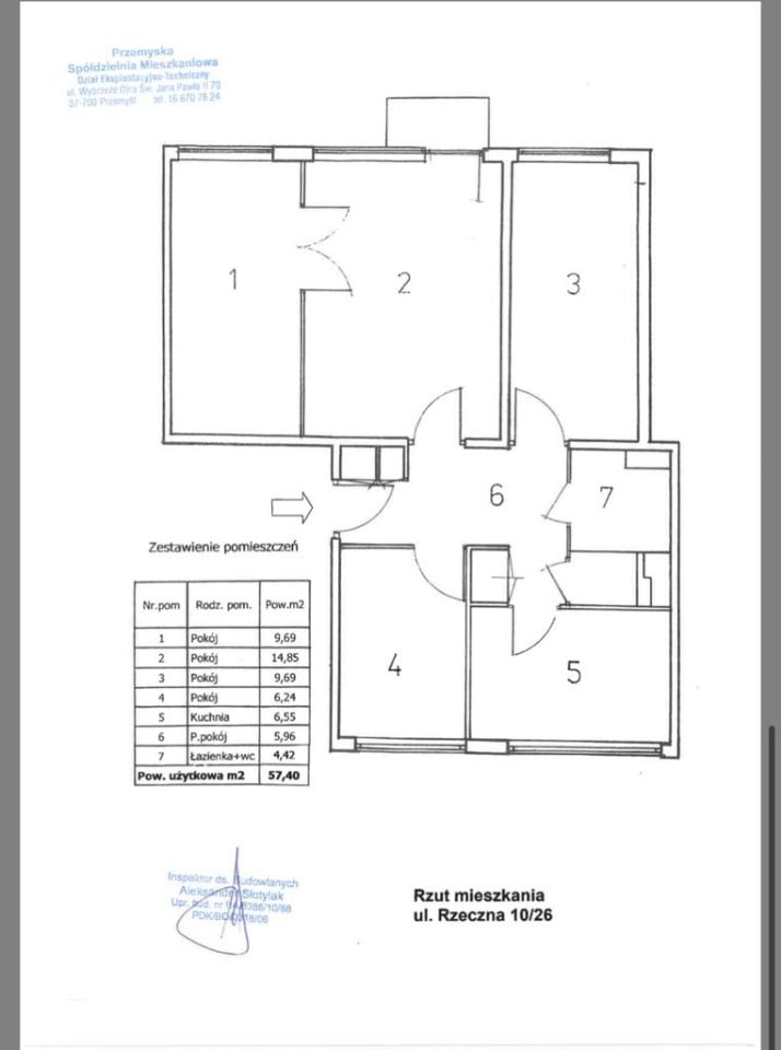
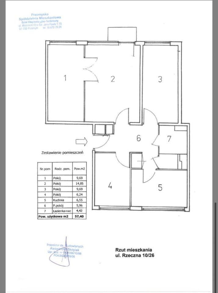
Na sprzedaż mieszkanie własnościowe spółdzielcze o powierzchni 57,4 m.
Nieruchomość położona jest przy ul. Rzecznej 10 w Przemyślu, na zielonym i spokojnym osiedlu Kmiecie.
Oferta bezpośrednia od właściciela bez prowizji.

Mieszkanie znajduje się na 2. piętrze i składa się z 4 pokoi (jeden przechodni), kuchni, łazienki, osobnej toalety oraz przedpokoju z dwiema wnękami na szafy. Do lokalu przynależy balkon od strony południowej oraz piwnica ok. 5 m.

Trzy pokoje oraz balkon posiadają ekspozycję południową, kuchnia i jeden pokój północną. Mieszkanie jest środkowe, bardzo ciepłe i dobrze nasłonecznione.
Stan: do generalnego remontu idealne do aranżacji według własnych potrzeb. W mieszkaniu nigdy nie palono.

Ogrzewanie miejskie MPEC, ciepła woda z piecyka gazowego, gaz w kuchni. Czynsz do spółdzielni(woda, śmieci, fundusz remontowy, piwnica) wynosi 683zł.
Blok z 1975 r., po kompleksowej modernizacji i ociepleniu, zarządzany przez Przemyską Spółdzielnię Mieszkaniową. Przed budynkiem ogólnodostępne miejsca parkingowe.

Cicha okolica, dużo zieleni, widok na rzekę San, Stare Miasto i wyciąg narciarski. W pobliżu deptak, ścieżka rowerowa, szkoła, przedszkole, sklepy, apteka, poczta i przystanek autobusowy.

Cena 348 000zł do rozsądnej negocjacji.

  • Na sprzedaż mieszkanie 4-pokojowe o powierzchni 57,40 m² balkon, piwnica, osobna kuchnia
  • 2 piętro w 4-piętrowym bloku bez windy, rok budowy 1975
  • Przemyśl, Kmiecie ul. Rzeczna
  • Mieszkanie w stanie do remontu okna plastikowe
  • Spółdzielcze własnościowe z księgą wieczystą  
  • Cena do negocjacji  
  • Oferta bezpośrednio od właściciela dodana ponad miesiąc temu i zaktualizowana ponad tydzień temu
Ta nieruchomość może być Twoja od.. sprawdź
70000 zł (20%) Okres spłaty: 30 lat

Podobne mieszkania na sprzedaż

15
Mieszkanie 4-pokojowe Przemyśl Lempertówka, ul. Henryka Siemiradzkiego

380 000

61

4 pok.

Sprzedam własnościowe 4 pokojowe mieszkanie z założoną księgą wieczystą o pow. 61,19 m² położone na pierwszym piętrze w czteropiętrowym bloku. Do mieszkania przynależy piwnica o powierzchni 7,50 m² Mieszkanie składa się z czterech pokoi, osobnej widnej kuchni, przedpokoju, łazienki i odrębnego wc. D...

Zobacz ogłoszenie
6
Mieszkanie 4-pokojowe Przemyśl, ul. Henryka Siemiradzkiego

320 000

66

4 pok.

Mieszkanie do sprzedania jest z nakazem sadowym sprzedaży. jest 3 udziałowców . Wszyscy zgodni do sprzedaży. Mieszkanie jest po moich rodzicach . Jest wspólnota mieszkaniowa która generuje koszty o wysokości 700 zl. W tych kosztach jest : remontowe , empec , smieciowe +woda .

Zobacz ogłoszenie
11
Mieszkanie 3-pokojowe Przemyśl Zasanie, ul. Biskupa Jakuba Glazera

338 000

53

3 pok.

Sprzedam mieszkanie trzy pokojowe o pow.53 m2 w Przemyślu przy ul Bpa Jakuba Glazera. Kuchnia z oknem ,WC oddzielny, duży przedpokój z zabudowanymi szafami. Mieszkanie będzie wymagało jedynie odświeżenia, zmian wniesionych przez kupującego. Wyposażenie w meble i inne do uzgodnienia. Mieszkanie znaj...

Zobacz ogłoszenie
12
Mieszkanie 3-pokojowe Przemyśl Kmiecie, ul. Henryka Wieniawskiego

429 000

51

3 pok.

Słoneczne 3-pokojowe mieszkanie 51 m², po kapitalnym remoncie, gotowe do zamieszkania od zaraz. Południowa ekspozycja, balkon, niskie koszty (ok. 200 zł) i spokojna, zielona dzielnica Kmiecie. Bezpośrednio od właściciela - brak prowizji. Na sprzedaż jasne, bardzo dobrze doświetlone mieszkanie położ...

Zobacz ogłoszenie
10
Mieszkanie 3-pokojowe Przemyśl, ul. Mnisza

339 000

63

3 pok.

Prezentujemy Państwu ofertę sprzedaży mieszkania położonego w Przemyślu przy ul. Mniszej, w centrum miasta, w pobliżu dworca PKP, PKS. Mieszkanie znajduje się na II piętrze w kamienicy. Jest to propozycja dla osób, które szukają mieszkania w centrum do własnej aranżacji lub też chcą zainwestować w l...

Zobacz ogłoszenie
8
Mieszkanie 3-pokojowe Przemyśl Zasanie, ul. Zygmunta Noskowskiego

349 000

53

3 pok.

Przytulne, trzypokojowe mieszkanie z nietypową klatką schodową i słonecznym balkonem - Przemyśl, ul. Noskowskiego Mam do sprzedaży wyjątkowe, trzypokojowe mieszkanie o powierzchni 53,20 m², położone na 3. piętrze zadbanego, 4-piętrowego, ocieplonego bloku przy ul. Noskowskiego w Przemyślu. Atuty m...

Zobacz ogłoszenie