Ogłoszenie usunięte

Mieszkanie na sprzedaż
Piastów  

Mieszkanie 3-pokojowe Piastów. Zdjęcie 1

Mieszkanie na sprzedaż Piastów brak adresu · 2 piętro

-
-
78
3 pok.

Właściciel powierzył sprzedaż nieruchomości pośrednikowi. Możesz zadzwonić lub napisać do agenta za darmo.

Opiekun oferty
Mariusz Poręcki
[numer]

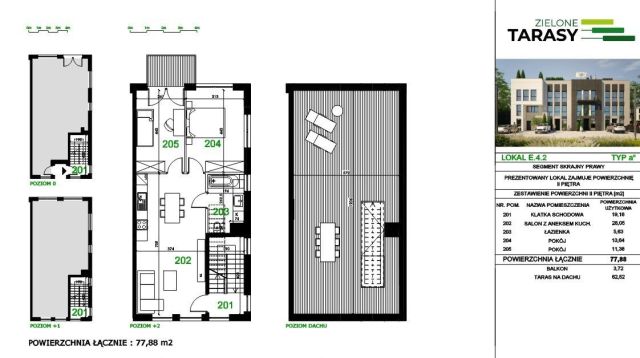
Mieszkanie o powierzchni 78,02m2 z tarasem na dachu o powierzchni 62,52m2.

Podstawowe informacje:
Trzypokojowe mieszkanie o powierzchni 78,02 m2 , z dużym tarasem na dachu ( 62,52m2) w inwestycji Zielone Tarasy w Piastowie.

Otoczenie nieruchomości:
Prezentowana nieruchomość znajduje się na drugim piętrze segmentu w Piastowie, na terenie zamkniętego osiedla Zielone Tarasy. Spośród wielu elementów, które znacząco wyróżniają się na tle innych inwestycji są m.in. zastosowane szlachetne tynki elewacyjne oraz taras na dachu budynku. Lokalizacja łączy w sobie bliskość i łatwy dostęp do stolicy z możliwością prowadzenia życia rodzinnego wśród domów jednorodzinnych otoczonych dużą ilość zieleni z dala od zgiełku wielkiego miasta. Osiedle znajduje się tuż przy granicy z Warszawą co pozawala w zaledwie kilkanaście minut dostać się do centrum zarówno samochodem, komunikacją miejską jak i koleją szynową SKM.
Układ pomieszczeń:
- Salon z aneksem kuchennym ok. 28,05 m2
- Sypialnia ok. 13,64 m2
- Sypialnia ok. 11,36 m2
- Łazienka ok. 5,63 m2
- Balkon ok. 3,72 m2
- Klatka schodowa 19,18 m2
Dodatkowo:
- Taras na dachu ok. 62,52 m2 . Taras na dachu to połączenie komfortu, prywatności i kontaktu z naturą - bez wychodzenia z domu.

Najważniejsze informacje:
- stan do wykończenia
- kameralny budynek, tylko 8 lokali w segmencie
- wystawa okien: wschód- zachód
- taras na dachu o powierzchni 62,52m2
- miejsce postojowe w cenie
- bliskość SKM
- szkoła podstawowa w odległości 550m (7 minut spacerem)
- market spożywczy Dino lub Biedronka w odległości 1,4 km ( 4 minuty samochodem) 
Nieruchomość tę polecam szczególnie dla pary lub rodziny ze względu na pobliską infrastrukturę i przyjazną okolicę.
Niedostateczne środki? To nie problem:
Pomagamy w uzyskaniu finansowania na tę i inne nieruchomości. Zadzwoń i zapytaj o szczegóły. Serdecznie zapraszam na prezentację!
Opiekun oferty
Mariusz Poręcki
[numer]

  • Na sprzedaż mieszkanie 3-pokojowe o powierzchni 78,02 m² zewnętrzne miejsce parkingowe
  • 2 piętro w 2-piętrowym domu wielorodzinnym rok budowy 2023
  • Piastów  
  • Odrębna własność z księgą wieczystą  
  • Ogłoszenie biura nieruchomości  

Aktualne mieszkania na sprzedaż

16
Mieszkanie 3-pokojowe Piastów, ul. T. Kościuszki

900 000

60

3 pok.

Do sprzedania mieszkanie oddane do użytku w 2023 roku, 3 pokojowe (60,3m2) mieszące się na 3 piętrze w w nowoczesnym budynku w centrum Piastowa. Do mieszkania przynależy miejsce w garażu podziemnym (+50 000 zł) Mieszkanie jest umeblowane i wyposażone w AGD. W pokojach rolety i w salonie karnisz (bra...

Zobacz ogłoszenie
8
Mieszkanie 2-pokojowe Piastów, ul. Warszawska

830 000

61

2 pok.

Dwupokojowy apartament w samym centrum Piastowa, ul. Warszawska 28. Powierzchnia lokalu 61 m2. Osiedle monitorowane, zarządzane przez wspólnotę mieszkaniową. Lokal usytuowany na drugim piętrze w budynku z 2001 roku. Dwustronna wystawa okien: płn-wsch. W skład wchodzi: - pokój dzienny 30 m2; - kuchn...

Zobacz ogłoszenie
4
Mieszkanie 3-pokojowe Piastów

811 320

67

3 pok.

Kupujący nie płaci prowizji! Oferta bezpośrednio od developera! Na sprzedaż wysokiej jakości  3-pokojowe mieszkanie o powierzchni 67.61 m², usytuowane na parterze nowo wybudowanego budynku w Piastowie, tuż przy granicy z warszawskim Ursusem. Funkcjonalny układ: salon z aneksem kuchennym (27 m²), s...

Zobacz ogłoszenie
11
Mieszkanie 3-pokojowe Piastów, ul. Stanisława Bodycha

801 746

66

3 pok.

Zakup bez PCC i prowizji dla biura nieruchomości. Mam przyjemność przedstawić Państwu 3-pokojowe  mieszkanie o powierzchni 66,84 mkw. położone na parterze nowo wybudowanego, kameralnego budynku przy ulicy Bodycha 122. Mieszkanie, mimo swojej bliskości do węzłów komunikacyjnych, pozostaje miejscem c...

Zobacz ogłoszenie
11
Mieszkanie 4-pokojowe Piastów, ul. Michała Kleofasa Ogińskiego

780 000

83

4 pok.

4-pokojowe mieszkanie nr 2B o powierzchni 83,13 m2 (52,13 m2 na piętrze w stanie deweloperskim + 31 m2 poddasze w stanie surowym, do adaptacji koszt ok. 95’000 netto) z balkonem 3,25 m2. Kupujący nie płaci prowizji, sprzedaż obsługiwana jest przez agencje pośrednictwa należącą do dewelopera. Dużym ...

Zobacz ogłoszenie
5
Mieszkanie 3-pokojowe Piastów, ul. Stanisława Bodycha

826 184

67

3 pok.

Kupujący nie płaci prowizji. Na sprzedaż wysokiej jakości bezpośrednio od dewelopera 3 - pokojowe mieszkanie o powierzchni 67.72 m², usytuowane na parterze nowo wybudowanego budynku w Piastowie, tuż przy granicy z warszawskim Ursusem. Funkcjonalny układ: salon z aneksem kuchennym (27 m²), sypialn...

Zobacz ogłoszenie