Mieszkanie na sprzedaż bez pośredników
ul. im. Generała Józefa Hallera Otwock

NOWA OFERTA
Mieszkanie 2-pokojowe Otwock, ul. im. Generała Józefa Hallera. Zdjęcie 1

Mieszkanie na sprzedaż bez pośredników Otwock ul. im. Generała Józefa Hallera · parter

675 000
13 314 zł/m²
50
2 pok.
Otwock, im. Generała Józefa Hallera - lokalizacja przybliżona
Bezpośrednio od właściciela

Jeśli nie potrzebujesz pośrednika, zaoszczędzisz około 20 300 zł. Potrzebujesz wsparcia? Skorzystaj z pomocy agenta.

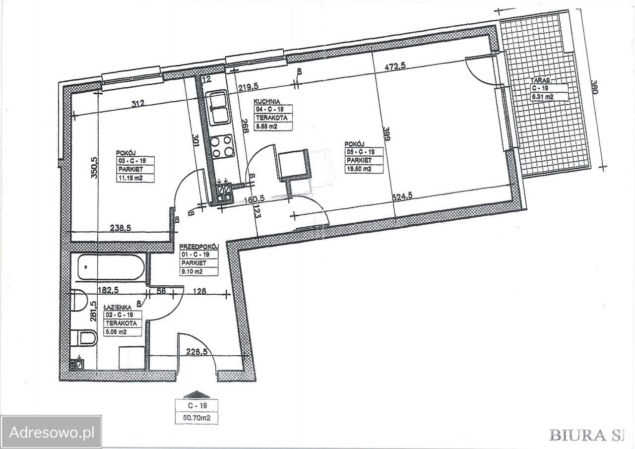
Na sprzedaż przytulne i funkcjonalne mieszkanie o powierzchni 50 m², z tarasem i ogródkiem 70 m², położone na spokojnym Osiedlu Morskie Oko w Otwocku.

Mieszkanie znajduje się na parterze, co zapewnia wygodę codziennego użytkowania i bezpośredni dostęp do ogródka. Ogródek, jak całe mieszkanie, położony jest od tylnej, kameralnej strony budynku - z dala od wejścia do klatki i ruchu na osiedlu. Ogródek otoczony jest wyższymi drzewami i zielenią, dzięki czemu zapewnia poczucie prywatności i spokojne miejsce do wypoczynku.

Układ mieszkania i wyposażenie:
- salon z aneksem kuchennym (kuchnia w zabudowie ze sprzętem AGD)
- sypialnia z łóżkiem i szafą
- łazienka z zabudową meblową, pralką i wanną
- taras z ogródkiem (wydzielonym notarialnie) o pow. 71,3 m²

W cenie mieszkania:
- komórka lokatorska
- stałe miejsce postojowe na terenie zamkniętego osiedla przypisane do mieszkania

Atuty lokalizacji:
- spokojna, zielona okolica
- w pobliżu: Vendo Park, Biedronka, Lidl, targowisko miejskie, przedszkole
- liczne atrakcje rekreacyjne: plac zabaw, Orlik, pumptrack, tyrolka, siłownia plenerowa
- przystanek autobusowy (bezpłatna linia M1 do PKP Otwock)
- wygodny dojazd do centrum Otwocka i Warszawy - ok. 40 minut

Cena: 675 000 zł

Zapraszam do kontaktu i obejrzenia mieszkania na żywo.
Ogłoszenie prywatne - agencjom nieruchomości dziękuję za kontakt.

  • Na sprzedaż mieszkanie 2-pokojowe o powierzchni 50,70 m² taras, piwnica, garaż/miejsce parkingowe, ogródek, aneks kuchenny
  • Parter w 4-piętrowym bloku  
  • Otwock ul. im. Generała Józefa Hallera
  • Mieszkanie w stanie do zamieszkania okna plastikowe
  • Odrębna własność z księgą wieczystą  
  • Wyposażenie pralka
  • Oferta bezpośrednio od właściciela dodana dodana dzisiaj
Ta nieruchomość może być Twoja od.. sprawdź
135000 zł (20%) Okres spłaty: 30 lat

Podobne mieszkania na sprzedaż

8
Mieszkanie 3-pokojowe Otwock

750 000

64

3 pok.

Do sprzedaży bezpośredniej, jasne, zadbane i nowocześnie wyposażone mieszkanie o powierzchni 64,21m², położone na 3 piętrze w bloku na osiedlu Morskie Oko - w budynku z 2008 roku. Najważniejsze atuty mieszkania: • Jasne, ciepłe wnętrza - dzięki korzystnej ekspozycji. • Mieszkanie gotowe do wprowadz...

Zobacz ogłoszenie
8
Mieszkanie 2-pokojowe Otwock

729 000

52

2 pok.

WYJĄTKOWE 52m² POD KLUCZ – BALKON, GARAŻ, LAS I RZEKA ŚWIDER! ​Szukasz mieszkania, do którego po prostu wejdziesz z walizką? Cenisz sobie spokój natury, ale nie chcesz rezygnować z miejskich wygód? To oferta właśnie dla Ciebie! ​Oferuję na sprzedaż słoneczne, 2-pokojowe mieszkanie o powierzchni 52 m...

Zobacz ogłoszenie
20
Mieszkanie 3-pokojowe Otwock, ul. Tadeusza Kościuszki

600 000

47

3 pok.

Cena podlega negocjacji. Na sprzedaż przytulne, funkcjonalne mieszkanie o powierzchni 47 m², zlokalizowane po zielonej stronie Otwocka niedaleko ulicy Warszawskiej. Układ mieszkania: Mieszkanie posiada 3 pokoje (2 sypialnie, pokój dzienny), hol, łazienkę, oddzielną kuchnię oraz balkon. Pokój dzi...

Zobacz ogłoszenie
12
Mieszkanie 3-pokojowe Otwock, ul. Powstańców Warszawy

699 000

65

3 pok.

LOKALIZACJA: Budynek zlokalizowany w ścisłym centrum Otwocka, przy ulicy Powstańców Warszawy. Do stacji SKM/PKP dojdziemy w 5 minut, w pobliżu przystanek autobusowy, sklepy, apteki, przychodnie, szkoła, przedszkole, usługi. Blisko do Parku Miejskiego okoliczne leśne tereny doskonałe dla miłośników ...

Zobacz ogłoszenie
7
Mieszkanie 3-pokojowe Otwock, ul. Ługi

699 000

52

3 pok.

Oferuję na sprzedaż wykończone mieszkanie o powierzchni 52,5 m2, położone na parterze budynku z 2024 roku przy ulicy Ługi 53B w Otwocku - kameralne osiedle Park Hallera 8. Do nieruchomości przynależy ogródek ponad 40 m2 oraz miejsce w garażu podziemnym (dodatkowo płatne 35 000 zł). Stan mieszkania ...

Zobacz ogłoszenie
11
Mieszkanie 2-pokojowe Otwock, ul. im. Generała Józefa Hallera

699 000

54

2 pok.

LOKALIZACJA: Osiedle położone jest w bezpośrednim sąsiedztwie terenów leśnych, co czyni tę lokalizację idealnym wyborem dla osób poszukujących spokoju i wytchnienia od warszawskiego zgiełku. Niewątpliwym atutem jest cicha, zielona okolica przy jednoczesnym zachowaniu dobrych połączeń komunikacyjnych...

Zobacz ogłoszenie