Mieszkanie na sprzedaż bez pośredników
ul. Adama Chętnika Ostrołęka

Mieszkanie 3-pokojowe Ostrołęka, ul. Adama Chętnika. Zdjęcie 1

Mieszkanie na sprzedaż bez pośredników Ostrołęka ul. Adama Chętnika · 3 piętro

390 000
8 571 zł/m²
45
3 pok.
Ostrołęka, Adama Chętnika - lokalizacja przybliżona
Bezpośrednio od właściciela

Jeśli nie potrzebujesz pośrednika, zaoszczędzisz około 11 700 zł. Potrzebujesz wsparcia? Skorzystaj z pomocy agenta.

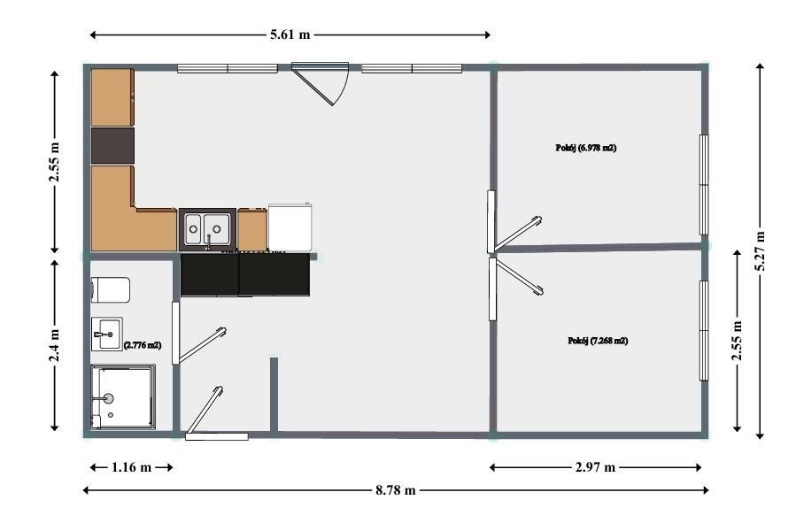
Sprzedam mieszkanie o powierzchni 45,5m2 + piwnica + balkon

Mieszkanie po generalnym remoncie
DOSTĘPNE OD RĘKI
Bez pośredników

Do remontu zostały wykorzystane materiały najwyższej jakości i najnowocześniejsze rozwiązania

Mieszkanie słoneczne, jasne, urządzone w zgodzie z najnowszymi trendami

Przestronny salon połączony z kuchnią wyposażoną w nowe sprzęty AGD w zabudowie
(Zmywarka, piekarnik, lodówka, płyta gazowa)

Łazienka z dużym prysznicem
Przedpokój wyposażony w szafę w zabudowie, gdzie znajdzie się miejsce na pralkę (szafa wyposażona w niezbędne przyłącza)

Dwa niezależne pokoje
📞

Cena:419000 do negocjacji

  • Na sprzedaż mieszkanie 3-pokojowe o powierzchni 45,50 m² balkon, piwnica, aneks kuchenny
  • 3 piętro w 4-piętrowym bloku z płyty bez windy, rok budowy 1980
  • Ostrołęka ul. Adama Chętnika
  • Mieszkanie w wysokim standardzie okna plastikowe
  • Odrębna własność z księgą wieczystą  
  • Wyposażenie kuchenka, lodówka, piekarnik, zmywarka
  • Cena do negocjacji  
  • Świadectwo Energetyczne  
  • Oferta bezpośrednio od właściciela dodana ponad miesiąc temu i zaktualizowana ponad tydzień temu
Ta nieruchomość może być Twoja od.. sprawdź
78000 zł (20%) Okres spłaty: 30 lat

Podobne mieszkania na sprzedaż

1
Mieszkanie 3-pokojowe Ostrołęka, ul. rtm. Witolda Pileckiego

375 000

59

3 pok.

Sprzedam mieszkanie o powierzchni 59,66 m2 na drugim piętrze przy ulicy Pileckiego w Ostrołęce. W skład mieszkania wchodzą: - trzy pokoje, - osobna kuchnia, - łazienka z oknem, - oddzielne WC, - duży balkon. Przynależna piwnica. Mieszkanie jest w doskonałej lokalizacji. W pobliżu są: plac zabaw d...

Zobacz ogłoszenie
10
Mieszkanie 4-pokojowe Ostrołęka, ul. Henryka Sienkiewicza

350 000

57

4 pok.

Powierzchnia mieszkania: 57,86 m2 Piętro: 2 Lokalizacja: ul. Sienkiewicza, Ostrołęka Stan: do remontu Status lokalu: Odrębna własność Czynsz: 590 PLN Cena sprzedaży: 350 000 PLN Cena do negocjacji Mieszkanie dwustronne, bardzo jasne. 4 pokoje, w tym przechodni salon z balkonem. Przedpokój, oddzieln...

Zobacz ogłoszenie
18
Mieszkanie 3-pokojowe Ostrołęka, ul. gen. Ignacego Prądzyńskiego

409 000

48

3 pok.

Mieszkanie 3pokoje (48,17) Prądzyńskiego 23a Ścisłe centrum miasta, Wszędzie blisko spacerkiem, Kilka lat temu po generalnym remoncie, Aktualnie po generalnym remoncie łazienki. Pełna własność, jeden właściciel. Możliwość wynajęcia także garażu 100m od bloku, miejsce postojowe obok bloku,brama na pi...

Zobacz ogłoszenie
8
Mieszkanie 2-pokojowe Ostrołęka, ul. Ostrołęckich Harcerzy

405 000

37

2 pok.

Sprzedam mieszkanie w apartamentowcu Villa Piano w Ostrołęce na ulicy Ostrołęckich Harcerzy. Metraż około 37m2. Salon z aneksem kuchennym otwarty na przedpokój, sypialnia, łazienka, duży balkon. Winda, 2 piętro. Osiedle zamknięte, monitorowane. Obok bloku przystanek autobusów komunikacji miejskiej, ...

Zobacz ogłoszenie
1
Mieszkanie 3-pokojowe Ostrołęka, ul. Stefana Jaracza

365 000

57

3 pok.

Ogłoszenie sprzedaży mieszkania – Ostrołęka, ul. Jaracza 4/35 Oferuję na sprzedaż jasne, rozkładowe mieszkanie 3-pokojowe o powierzchni 57,86 m², zlokalizowane przy ul. Jaracza 4/35 w Ostrołęce. Mieszkanie znajduje się na 4. piętrze w budynku wielorodzinnym. Stan mieszkania: Mieszkanie zostało odr...

Zobacz ogłoszenie
21
Mieszkanie 3-pokojowe Ostrołęka, ul. Romualda Traugutta

330 000

54

3 pok.

Mieszkanie mieści się w bloku z pustaka na ulicy Traugutta 4 w super lokalizacji przede wszystkim dla rodzin z dziećmi, uczniów i studentów, w pobliżu liceów, przedszkola, parku, lokalnych sklepów, ścieżek rowerowych oraz plaży i rzeki. Lokalizacja pomiędzy szkołami średnimi: I LO, II LO, ZSZ nr ...

Zobacz ogłoszenie