Mieszkanie na sprzedaż bez pośredników
ul. gen. Ludwika Mierosławskiego Leszno Centrum

Mieszkanie 2-pokojowe Leszno Centrum, ul. gen. Ludwika Mierosławskiego. Zdjęcie 1

Mieszkanie na sprzedaż bez pośredników Leszno Centrum ul. gen. Ludwika Mierosławskiego · 1 piętro

376 000
10 491 zł/m²
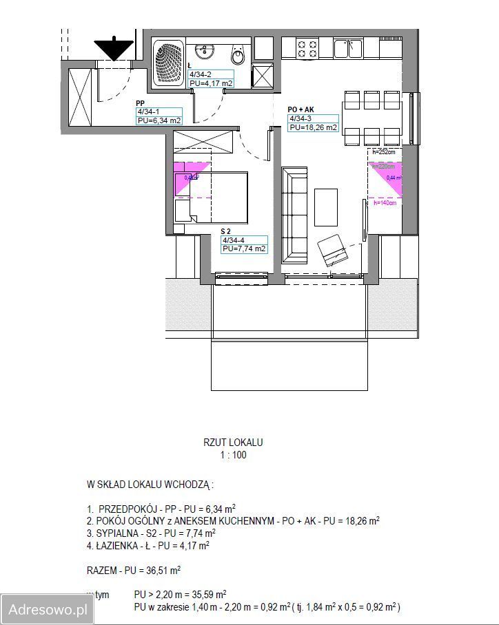
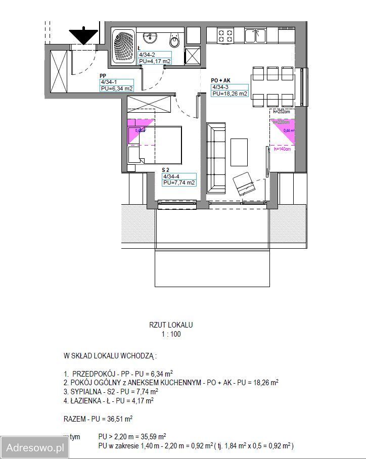
35
2 pok.
Leszno Centrum, gen. Ludwika Mierosławskiego - lokalizacja przybliżona
Bezpośrednio od właściciela

Jeśli nie potrzebujesz pośrednika, zaoszczędzisz około 11 300 zł. Potrzebujesz wsparcia? Skorzystaj z pomocy agenta.

Luksusowe mieszkania w centrum Leszna na sprzedaż.

Budynek czterokondygnacyjny przy ul. Mierosławskiego 1.

Powierzchnia: 34m2, 36m2, 38m2, 62m2.

Najwyższy standard wykonania:
• ogrzewanie podłogowe,
• klimatyzacja,
• wideodomofony,
• teren monitorowany ze szlabanem wjazdowym na pilota,
• winda,
• komórki lokatorskie,
• garaże podziemne,
• miejsca postojowe przed budynkiem.

Budynek energooszczędny z fotowoltaiką.
Teren monitorowany, zamknięty.

Bliski dostęp do sklepów, szkół, urzędów, kościoła, apteki.

Mieszkania wykończone pod klucz - cena od 11 600,00 zł za m2.
Mieszkanie w stanie deweloperskim, pomalowane na biało - cena od 9 900,00 zł za m2.

Dodatkowo płatne:
• garaże podziemne 70 tys. zł,
• komórki lokatorskie 25 tys. zł,
• miejsca postojowe 25 tys. zł.

Ogłoszenie prywatne bez pośredników.

Zapraszam do kontaktu.
Chętnie udzielę wszelkich informacji.

Link do strony:

  • Oferta z rynku pierwotnego
  • Na sprzedaż mieszkanie 2-pokojowe o powierzchni 35,84 m² balkon, piwnica, garaż/miejsce parkingowe
  • 1 piętro w 3-piętrowym apartamentowcu z windą, rok budowy 2024
  • Leszno, Centrum ul. gen. Ludwika Mierosławskiego
  • Odrębna własność z księgą wieczystą  
  • Wyposażenie klimatyzacja
  • Oferta bezpośrednio od właściciela dodana ponad miesiąc temu i zaktualizowana ponad tydzień temu
Ta nieruchomość może być Twoja od.. sprawdź
75000 zł (20%) Okres spłaty: 30 lat

Podobne mieszkania na sprzedaż

22
Mieszkanie 2-pokojowe Leszno Centrum, ul. Bohaterów Westerplatte

349 000

38

2 pok.

Piękne Przytulne | PARTER | Po generalnym remoncie Sprzedam przestronne mieszkanie o powierzchni 38,5 m² na parterze, zlokalizowane w samym sercu miasta. Leszno ul. Westerplatte. Idealna propozycja dla singla lub pary szukającej nowoczesnego mieszkania do wprowadzenia blisko Rynku, a także dla sen...

Zobacz ogłoszenie
11
Mieszkanie 3-pokojowe Leszno Centrum, ul. por. Leona Włodarczaka

449 000

46

3 pok.

Oferujemy Pañstwu na sprzedaż nowocześnie wykończone mieszkanie o powierzchni 46,3 m², położone na 1. piętrze, w doskonałej lokalizacji – w Centrum Leszna. Lokal przeszedł kapitalny remont, jest w pełni gotowy do zamieszkania. Układ pomieszczeń: jasny salon, otwarty na korytarz kuchnia w osob...

Zobacz ogłoszenie
7
Mieszkanie 2-pokojowe Leszno Centrum

349 000

47

2 pok.

Oferuję ciepłe i przytulne mieszkanie o powierzchni 47,5 m. Znajduje się na drugim piętrze w bloku z cegły! Składa się z: -korytarz -toaleta -salon -pokój -kuchnia Mieszkanie jest umeblowane (narożnik z funkcją spania, stół z 6 krzesłami , stolik kawowy , rozkładaną sofa i szafa komandor, druga szaf...

Zobacz ogłoszenie
7
Mieszkanie 2-pokojowe Leszno Centrum, ul. Henryka Sienkiewicza

389 000

48

2 pok.

Do sprzedaży nowy lokal mieszkalny w Lesznie (64-100), w centrum, ul. Henryka Sienkiewicza , o powierzchni 48,39 m kw., dwa pokoje, w tym jeden z aneksem kuchennym o powierzchni aż 33m2, możliwość wydzielenia z niego trzeciego pokoju,korytarz, łazienka, w stanie deweloperskim (gładzie na ścianach,...

Zobacz ogłoszenie
10
Mieszkanie 3-pokojowe Leszno Centrum, ul. Osiedle Józefa Sułkowskiego

355 000

47

3 pok.

Na sprzedaż funkcjonalne 3 pokojowe mieszkanie, na 4 piętrze w centrum miasta, przy ul. Sułkowskiego. Powierzchnia mieszkania 48m2. Idealna lokalizacja - w pobliżu: galeria handlowa, sklepy, apteka przedszkole, boisko, komunikacja miejska. Mieszkanie jest gotowe do zamieszkania. Idealne dla rodzi...

Zobacz ogłoszenie
16
Mieszkanie 3-pokojowe Leszno Centrum, ul. gen. Jarosława Dąbrowskiego

353 000

46

3 pok.

Sprzedam mieszkanie 3 pokojowe na drugim piętrze w centrum Leszna. Dwie sypialnie plus salon połączony z przedpokojem co powoduje większą przestrzeń. Balkon-piwnica - rolety we wszystkich oknach /balkonowe na pilota /-zabudowa w przedpokoju i sypialni wykonana na wymiar przez stolarza - okna PCV - n...

Zobacz ogłoszenie