Mieszkanie na sprzedaż bez pośredników
ul. Bieszczadzka Lesko

Mieszkanie 3-pokojowe Lesko, ul. Bieszczadzka. Zdjęcie 1

Mieszkanie na sprzedaż bez pośredników Lesko ul. Bieszczadzka · 3 piętro

570 000
9 421 zł/m²
60
3 pok.
Lesko, Bieszczadzka - lokalizacja przybliżona
Bezpośrednio od właściciela

Jeśli nie potrzebujesz pośrednika, zaoszczędzisz około 17 100 zł. Potrzebujesz wsparcia? Skorzystaj z pomocy agenta.

Wyjątkową apartament znajdującego się na nowopowstałym Osiedlu w Dolinie Sanu w Lesku z pięknym panoramicznym widokiem na okolicę i rzekę San.

Mieszkanie ma zastosowane duże przeszklenia, okna dachowe, a także okno tarasowe  dzięki czemu mieszkanie jest bardzo jasne.

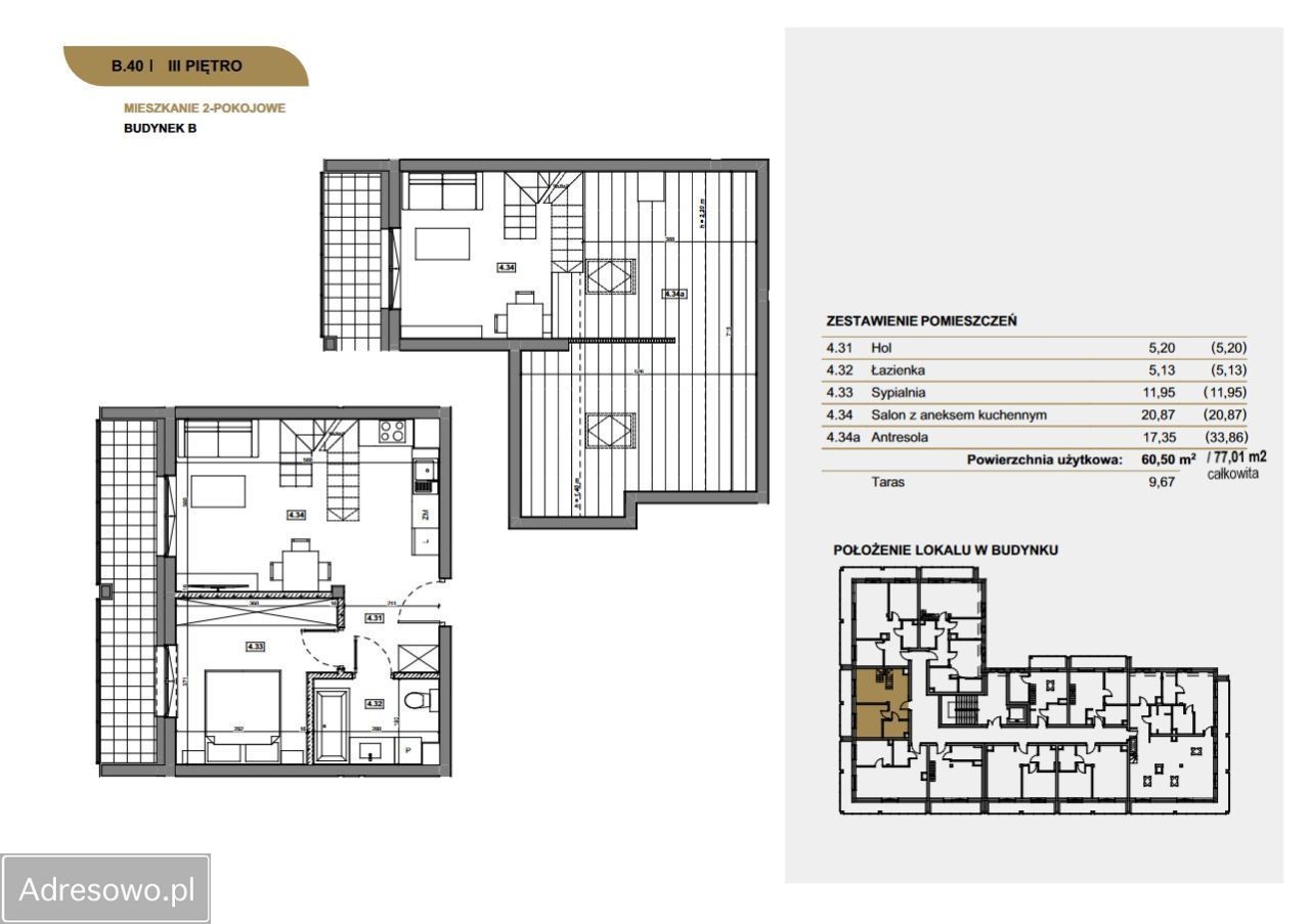
Mieszkanie o pow. użytkowej 77,01 m2 z czego powierzchni użytkowej 60,50 Hol 5,20m1, Łazienka 5,13 m2, Sypialnia 11,95m2, Salon z aneksem kuchennym 20,87m2, Antresola 33,86 m2 (podzielona na dwa pokoje) Taras 9,67m2

Poziom wykończenia:

Hydraulika oraz elektryka

Klimatyzacje 5,5 kW

Zamontowano czarny videodomofon firmy MVC

Zamontowane oświetlenie

1 Geberyty

1 Umywalka

1 Odpływy liniowe (design pod wygodny, duży prysznic)

Oświetlenie punktowe łazienkowe (hermetyczne)

Gładzie szpachlowe

Pomalowane

Panele fotowoltaicznych na dachu 3,2 kW jest to jedyne mieszkanie z systemem fotowoltaicznym.

2 miejsca postojowe zewnętrzne w tym jedno z ładowarką do samochodów elektrycznych.

Mieszkanie usytuowane jest w nowoczesnym 4-kondygnacyjnym budynku

Teren wokół budynku został ładnie zagospodarowany z ścieżkami w formie chodników z ławki do wypoczynku, oświetlenie oraz zieleń ozdobna. W najbliższym czasie ma powstać również miejsce dla najmłodszych, a więc bezpieczny plac zabaw.

Osiedle jest dobrze skomunikowane z centrum miasta w pobliżu ronda z którego jest rozjazd w kierunku Sanoka, Ustrzyk Dolnych, Polańczyka i Cisnej.

W najbliższym otoczeniu znajduje się:

Basen/ Siłownia/ Sauna/ Boisko sportowe/ 150 metrów

wyciąg narciarski/ 4 km

sklepy spożywcze sieciowe Netto i Delikatesy Centrum- 150 metrów

stacja paliw 200 metrów

dworzec- 1 km

Idealne do zamieszkania lub na wynajem długo lub krótkoterminowy.

  • Na sprzedaż dwupoziomowe mieszkanie 3-pokojowe o powierzchni 60,50 m² balkon, aneks kuchenny
  • 3 piętro w 3-piętrowym bloku z windą, rok budowy 2024
  • Lesko ul. Bieszczadzka
  • Odrębna własność z księgą wieczystą  
  • Wyposażenie klimatyzacja
  • Oferta bezpośrednio od właściciela dodana ponad miesiąc temu i zaktualizowana ponad tydzień temu
Ta nieruchomość może być Twoja od.. sprawdź
114000 zł (20%) Okres spłaty: 30 lat

Podobne mieszkania na sprzedaż

7
Mieszkanie 3-pokojowe Hoczew

358 800

52

3 pok.

Oferuję w pełni umeblowany, 5-letni, gotowy do zamieszkania lokal mieszkalny o powierzchni 52 m2. CHARAKTERYSTYKA: - Nowoczesne, przestronne zagospodarowanie. - 2 osobne pokoje oraz osobny salon z kuchnią. - Spore oświetlenie, drzwi balkonowe. - Prywatne miejsce parkingowe. LOKALIZACJA: - W najbli...

Zobacz ogłoszenie
15
Mieszkanie 3-pokojowe Lesko Posada Leska, ul. Stawowa

360 000

68

3 pok.

Sprzedam trzypokojowe mieszkanie własnościowe w Lesku przy ul. Stawowej 8. Mieszkanie na pierwszym piętrze z piwnicą. Powierzchnia użytkowa mieszkania 68 m2. Powierzenie orientacyjnie: salon 17 m2, sypialnia 15 m2, mały pokój 11,5 m2, kuchnia 14 m2, łazienka 3m2, przedpokój 5,5 m2. Mieszkanie d...

Zobacz ogłoszenie
11
Mieszkanie 4-pokojowe Lesko, ul. Piłsudskiego

495 000

80

4 pok.

Na sprzedaż oferujemy komfortowe, bezczynszowe, 4-pokojowe mieszkanie o powierzchni 80 m² z dwoma tarasami, położone w kameralnym, niskim budynku w inwestycji Apartamenty nad Sanem - w malowniczej, zielonej okolicy przy ul. Piłsudskiego w Lesku, u wrót Bieszczad. Mieszkanie jest dwupoziomowe - o...

Zobacz ogłoszenie
13
Mieszkanie 4-pokojowe Lesko, ul. Słowackiego

380 000

56

4 pok.

Oferujemy na sprzedaż przestronne i funkcjonalne mieszkanie o powierzchni 56,29 m² , zlokalizowane na I piętrze bloku przy ul. Słowackiego w Lesku. Nieruchomość posiada przemyślany i komfortowy układ pomieszczeń , na który składają się: cztery ustawne pokoje, dające wiele możliwości ar...

Zobacz ogłoszenie
7
Mieszkanie 3-pokojowe Lesko, ul. Piłsudskiego

370 000

49

3 pok.

Na sprzedaż oferujemy nowe, bezczynszowe mieszkanie o powierzchni 49 m², położone na parterze kameralnego budynku w inwestycji Apartamenty nad Sanem - w malowniczej, zielonej okolicy przy ul. Piłsudskiego w Lesku, u wrót Bieszczad. To doskonała propozycja dla rodzin z dziećmi, par, seniorów oraz ...

Zobacz ogłoszenie
16
Mieszkanie 3-pokojowe Lesko Wola Postołowa, ul. Piłsudskiego

370 000

49

3 pok.

>> Krótki opis nieruchomości Prezentujemy Państwu inwestycję ‘Apartamenty nad Sanem’ usytuowaną w dogodnym i spokojnym miejscu w Bieszczadach w Lesku w malowniczej Woli Postołowej. ‘Apartamenty nad Sanem’ to budynki w zabudowie szeregowej w stanie deweloperskim. Osiedle w bliskości z naturą i jednoc...

Zobacz ogłoszenie