Mieszkanie na sprzedaż bez pośredników
ul. Koniczyny Kręczki

Mieszkanie 2-pokojowe Kręczki, ul. Koniczyny. Zdjęcie 1

Mieszkanie na sprzedaż bez pośredników Kręczki ul. Koniczyny · 1 piętro

520 000
13 072 zł/m²
39
2 pok.
Kręczki, Koniczyny - lokalizacja przybliżona
Bezpośrednio od właściciela

Jeśli nie potrzebujesz pośrednika, zaoszczędzisz około 15 600 zł. Potrzebujesz wsparcia? Skorzystaj z pomocy agenta.

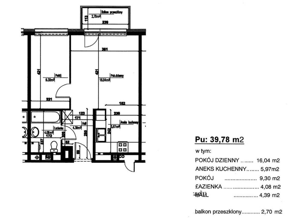
Na sprzedaż przestronne, klimatyzowane 2-pokojowe mieszkanie o powierzchni 39,78 m², położone na 1. piętrze nowoczesnego budynku z windą. Lokal znajduje się na zamkniętym i kameralnym osiedlu, co zapewnia spokój oraz bezpieczeństwo mieszkańcom.

Mieszkanie wyróżnia się funkcjonalnym układem pomieszczeń. Sercem wnętrza jest duży, jasny salon z aneksem kuchennym oraz wyjściem na przeszklony balkon, który stanowi idealną przestrzeń do wypoczynku. Dodatkowo w mieszkaniu znajduje się ustawna sypialnia, przedpokój oraz łazienka.

Wyposażenie i standard:
Mieszkanie jest częściowo wyposażone i gotowe do wprowadzenia przy minimalnym nakładzie pracy. W cenie pozostaje:
- Kuchnia: meble w zabudowie wraz ze sprzętem AGD (lodówka, piekarnik, płyta grzewcza, okap).
- Łazienka: pełne umeblowanie łazienkowe.
Dla pełnego komfortu w upalne dni w mieszkaniu zainstalowano wydajną klimatyzację.

Lokalizacja i udogodnienia:
Inwestycja charakteryzuje się świetnym połączeniem z infrastrukturą miejską oraz szybkim dostępem do tras wylotowych, co czyni ją idealnym miejscem dla osób pracujących w stolicy, ceniących sobie ciszę po pracy. W bliskiej okolicy znajdują się sklepy (np. Biedronka, Aldi, Pepco, Rossmann), punkty usługowe oraz przedszkole i szkoła podstawowa.
Na terenie osiedla znajdują się dwa place zabaw oraz park.
Garaż jest integralną częścią oferty - przynależy do mieszkania i nie podlega oddzielnej sprzedaży.

Informacje finansowe:
- Cena mieszkania: 520 000 zł
- Garaż: 40 000 zł (dodatkowo płatny)
- Stan prawny: Pełna własność z Księgą Wieczystą.

To mieszkanie to doskonała propozycja zarówno na start, jak i jako bezpieczna lokata kapitału pod wynajem.

Zapraszam do kontaktu telefonicznego.

Powyższy opis ma charakter informacyjny i nie stanowi oferty w rozumieniu przepisów Kodeksu Cywilnego.

  • Na sprzedaż mieszkanie 2-pokojowe o powierzchni 39,78 m² balkon, garaż, aneks kuchenny
  • 1 piętro w 4-piętrowym budynku z windą, rok budowy 2012
  • Kręczki ul. Koniczyny
  • Odrębna własność z księgą wieczystą  
  • Wyposażenie klimatyzacja, lodówka, piekarnik
  • Oferta bezpośrednio od właściciela dodana ponad miesiąc temu i zaktualizowana ponad tydzień temu
Ta nieruchomość może być Twoja od.. sprawdź
104000 zł (20%) Okres spłaty: 30 lat

Podobne mieszkania na sprzedaż

5
Mieszkanie 2-pokojowe Ożarów Mazowiecki, ul. Józefa Poniatowskiego

499 000

38

2 pok.

POSREDNIKOM DZIEKUJE! Na sprzedaż funkcjonalne mieszkanie 2-pokojowe o powierzchni 38,66 m² z balkonem, położone na 3. piętrze nowoczesnej inwestycji Osiedle Floriana - etap I przy ul. Józefa Poniatowskiego 4 w Ożarowie Mazowieckim. Nie ma juz takiego mieszkania o takim metrażu w tym budynku. Mies...

Zobacz ogłoszenie
8
Mieszkanie 2-pokojowe Kręczki, ul. Koniczyny

490 000

43

2 pok.

Nowoczesne mieszkanie z zabudowanym balkonem i klimatyzacją - Kręczki, ul. Koniczyny Zapraszam do zapoznania się z ofertą sprzedaży mieszkania w budynku oddanym do użytku w 2012 roku. Budynek wyposażony w windę, znajduje się na zamkniętym osiedlu Villa Campina. Lokalizacja: Mieszkanie położone jes...

Zobacz ogłoszenie
15
Mieszkanie 2-pokojowe Kręczki, ul. Draceny

549 000

47

2 pok.

REZERWACJA OFERTY Mieszkanie na Sprzedaż | Villa Campina | Mieszkanie Kręczki | Mieszkanie z Garażem | Mieszkanie z Balkonem | Nowe Mieszkanie | Mieszkanie Ożarów Mazowiecki | Mieszkanie pod Warszawą | Mieszkanie do Wejścia | Mieszkanie Inwestycyjne | Mieszkanie Dwupokojowe Przedmiotem sprzedaży...

Zobacz ogłoszenie
8
Mieszkanie 2-pokojowe Ożarów Mazowiecki, ul. Obrońców Warszawy

499 000

32

2 pok.

Na sprzedaż przestronne, funkcjonalne mieszkanie o powierzchni 32 m² w doskonałej lokalizacji przy ul. Obrońców Warszawy. OPIS MIESZKANIA: Lokal składa się z: - salonu, - sypialni, - osobnej mini kuchni, - przedpokoju, - łazienki z WC. DODATKOWE ATUTY: - Mieszkanie znajduje się na 3 piętrze i wyma...

Zobacz ogłoszenie
13
Mieszkanie 2-pokojowe Kręczki

650 000

47

2 pok.

Na sprzedaż komfortowe, dwupokojowe mieszkanie o powierzchni 47,35 m², położone na 2 piętrze w spokojnej i zielonej części osiedla Villa Campina. To idealne miejsce dla osób ceniących ciszę, naturę i jednocześnie szybki dojazd do Warszawy. Najważniejsze atuty mieszkania: • powierzchnia: 47,35 m² • ...

Zobacz ogłoszenie
9
Mieszkanie 2-pokojowe Kręczki, ul. Koniczyny

570 000

39

2 pok.

Na sprzedaż – komfortowe mieszkanie 39,79 m² w wysokim standardzieNa sprzedaż funkcjonalne i bardzo estetycznie wykończone mieszkanie o powierzchni użytkowej 39,79 m², zlokalizowane w kameralnym, 4-piętrowym bloku. Lokal został zakupiony w stanie deweloperskim i wykończony według indywidualnego proj...

Zobacz ogłoszenie