Mieszkanie na sprzedaż bez pośredników
ul. Bartąska Jaroty

NOWA OFERTA
Mieszkanie 3-pokojowe Jaroty, ul. Bartąska. Zdjęcie 1

Mieszkanie na sprzedaż bez pośredników Jaroty ul. Bartąska · 4 piętro

630 000
11 749 zł/m²
53
3 pok.
Jaroty, Bartąska - lokalizacja przybliżona
Bezpośrednio od właściciela

Jeśli nie potrzebujesz pośrednika, zaoszczędzisz około 18 900 zł. Potrzebujesz wsparcia? Skorzystaj z pomocy agenta.

Na sprzedaż komfortowe mieszkanie - Jaroty, ul. Bartąska 118.

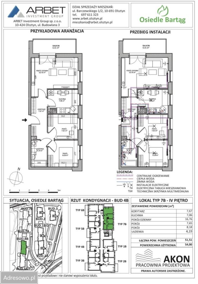
Na sprzedaż funkcjonalne mieszkanie o powierzchni 53,62 m², położone na 4 piętrze z windą, na spokojnym, cenionym osiedlu Bartąg w miejscowości Jaroty, tuż przy granicy Olsztyna.

Mieszkanie wyróżnia się przemyślanym układem, dużą ilością naturalnego światła oraz przytulnym charakterem, dzięki czemu jest idealne zarówno do zamieszkania, jak i jako inwestycja pod wynajem.

Układ pomieszczeń:
- Przestronny salon z aneksem kuchennym - serce mieszkania.
- 2 ustawne sypialnie.
- Łazienka z WC.
- Funkcjonalny przedpokój.
- Piwnica o powierzchni 5,61 m² - zapewniająca dodatkową przestrzeń do przechowywania.

Stan mieszkania:
Lokal jest gotowy do wprowadzenia, zadbany i ciepły.

Dodatkowe atuty:
- Funkcjonalne zabudowy stolarskie wykonane na wymiar w kuchni, łazience, salonie oraz przedpokoju, które zapewniają dużą ilość miejsca do przechowywania i spójny, estetyczny wygląd wnętrza.
- Mieszkanie jest skrajne, co zapewnia większą prywatność i komfort - lokal posiada ograniczoną liczbę sąsiadów (jedynie od dołu oraz częściowo z jednej strony).
- Wokół bloku znajduje się sporo miejsc parkingowych.

Opłaty:
- Czynsz ok. 600 zł (dla 3 osób).

Dodatkowo (opcjonalnie):
- Garaż w bryle budynku o powierzchni 16,06 m² z wyposażoną automatyczną bramą oraz czujnikiem ruchu, dzięki czemu światło zapala się automatycznie - cena 115 000 zł z oddzielną księgą wieczystą.

Garaż zapewnia dodatkowe miejsce postojowe przed garażem, umożliwiając spokojne parkowanie dwóch aut.

Lokalizacja:
Nieruchomość położona jest w dynamicznie rozwijającej się okolicy, która łączy spokój, bliskość natury i wygodny dostęp do miasta.

W pobliżu znajdują się:
- Sklepy i punkty usługowe.
- Place zabaw, orlik.
- Przedszkola i szkoły.
- Tereny rekreacyjne, ścieżki rowerowe i spacerowe.
- Jezioro Bartążek.
- Przystanki komunikacji miejskiej.
- Szybki dojazd do centrum Olsztyna.

To idealna propozycja dla osób, które szukają komfortowego miejsca do życia w spokojnej okolicy, bez rezygnowania z miejskich udogodnień.

Cena podlega negocjacji.

  • Na sprzedaż mieszkanie 3-pokojowe o powierzchni 53,62 m² balkon, piwnica, garaż/miejsce parkingowe, aneks kuchenny
  • 4 piętro w 4-piętrowym bloku z windą, rok budowy 2016
  • Jaroty ul. Bartąska
  • Mieszkanie w stanie do zamieszkania okna plastikowe
  • Odrębna własność z księgą wieczystą  
  • Oferta bezpośrednio od właściciela dodana wczoraj
Ta nieruchomość może być Twoja od.. sprawdź
126000 zł (20%) Okres spłaty: 30 lat

Podobne mieszkania na sprzedaż

16
Mieszkanie 2-pokojowe Bartąg, ul. Morenowa

656 000

51

2 pok.

INFORMACJE POD NUMEREM [numer]. Na sprzedaż komfortowe 2 pokojowe mieszkanie o powierzchni 51,55 m2 znajdujące się na 5 piętrze w nowoczesnym budynku przy ulicy Morenowej, Osiedle Morena w Bartągu (granica z Olsztynem). Nieruchomość składa się z Salonu, Kuchni, Sypialni, Łazienki z WC, Przedpoko...

Zobacz ogłoszenie
20
Mieszkanie 2-pokojowe Biskupiec, al. Broni

630 000

60

2 pok.

To przytulne, słoneczne mieszkanie znajduje się na 2. piętrze w budynku z 2018 roku (Osiedle Nowoczesne). Oferuje 60 m² powierzchni użytkowej, w tym przestronny salon z aneksem kuchennym i jadalnią oraz sypialnią, z możliwością zrobienia trzeciego pokoju. Idealne dla pary lub małej rodziny. W pełni ...

Zobacz ogłoszenie
10
Mieszkanie 4-pokojowe Bartąg, ul. Bartąska

770 000

70

4 pok.

Na sprzedaż komfortowe i funkcjonalne mieszkanie o powierzchni 70 m², idealne dla rodziny lub jako inwestycja. Lokal znajduje się na 2. piętrze w budynku z windą, co zapewnia wygodę codziennego użytkowania. Układ mieszkania: - przestronny salon z aneksem kuchennym - 3 oddzielne, ustawne pokoje - łaz...

Zobacz ogłoszenie
10
Mieszkanie 3-pokojowe Jaroty, ul. Stawigudzka

649 000

61

3 pok.

Sprzedam przytulne meszkanie o powierzchni użytkowej 58m2. Mieszkanie przelotowe z dużym balkonem. Parking za szlabanem i spory pas zieleni należacy do mieszkańców Stawigudzkiej 9. Dobra lokalizacja jeśli posiadasz czworonoga. W pobliżu: - żłobki, przedszkola i szkoła podstawowa, - przychodnia z...

Zobacz ogłoszenie
15
Mieszkanie 2-pokojowe Bartąg, ul. Morenowa

546 000

42

2 pok.

INFORMACJE POD NUMEREM [numer]. Na sprzedaż komfortowe 2 pokojowe mieszkanie o powierzchni 42 m2 znajdujące się na 5 piętrze w nowoczesnym budynku przy ulicy Morenowej, Osiedle Morena w Bartągu (granica z Olsztynem). Nieruchomość składa się z Salonu z Aneksem Kuchennym, Sypialni, Łazienki z WC, ...

Zobacz ogłoszenie
8
Mieszkanie 3-pokojowe Olsztynek

569 000

55

3 pok.

Oferuję mieszkanie na drugim, ostatnim piętrze bloku na osiedlu Jagiełły Park w Olsztynku. Powierzchnia mieszkania to 55,6 m². Nieruchomość składa się z dwóch sypialni, salonu z aneksem kuchennym i łazienki. Wnętrza wykończone są z wysokiej jakości materiałów i są w pełni wyposażone: - Przedpokój: s...

Zobacz ogłoszenie