Mieszkanie na sprzedaż bez pośredników
pl. Unii Europejskiej Gorzów Wielkopolski

Mieszkanie 2-pokojowe Gorzów Wielkopolski, pl. Unii Europejskiej. Zdjęcie 1

Mieszkanie na sprzedaż bez pośredników Gorzów Wielkopolski pl. Unii Europejskiej · 5 piętro

369 837
8 700 zł/m²
42
2 pok.
Gorzów Wielkopolski, pl. Unii Europejskiej - lokalizacja przybliżona
Bezpośrednio od właściciela

Jeśli nie potrzebujesz pośrednika, zaoszczędzisz około 11 100 zł. Potrzebujesz wsparcia? Skorzystaj z pomocy agenta.

Witam,
Nowe mieszkanie w stanie deweloperskim na Osiedlu Europejskim w Gorzowie Wielkopolskim, przy ulicy Plac Unii Europejskiej, budynek nr 17.
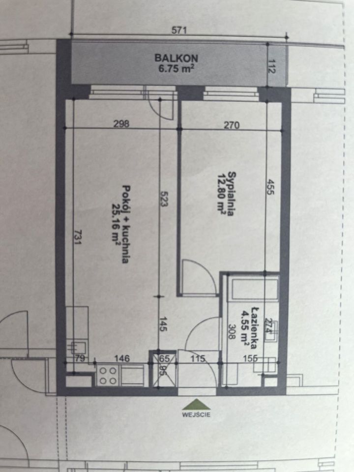
Metraż 42,51 m2, dwupokojowe.
Mieszkanie znajduje się na 5. piętrze w bloku pięciopiętrowym z cichobieżną windą.
Mieszkanie składa się z przedpokoju, pokoju z kuchnią (25,16 m2), sypialni (12,8 m2), łazienki (4,55 m2) oraz balkonu (6,75m2), z którego w przyszłości będzie można podziwiać serce osiedla, czyli Plac Unii Europejskiej.
Mieszkanie oddane do użytku w sierpniu 2025r.
Stan deweloperski umożliwia wykończenie mieszkania według własnych potrzeb i własnego gustu.
Okna z salonu oraz sypialni wychodzą na Plac Unii Europejskiej, mieszkanie jest bardzo jasne i słoneczne.
Zaletą nieruchomości jest jego lokalizacja. Osiedle Europejskie położone jest w otoczeniu rezerwatu, cicha i spokojna okolica, ale dobrze skomunikowana z resztą miasta.
Na osiedlu znajduje się przystanek autobusowy, przedszkole, poczta, przychodnia lekarska oraz liczne sklepy.
Ogłoszenie prywatne, bez pośredników i prowizji.
Polecam serdecznie i zapraszam do kontaktu.

  • Oferta z rynku pierwotnego
  • Na sprzedaż mieszkanie 2-pokojowe o powierzchni 42,51 m² balkon
  • 5 piętro w 5-piętrowym bloku z windą, rok budowy 2025
  • Gorzów Wielkopolski pl. Unii Europejskiej
  • Oferta bezpośrednio od właściciela dodana ponad miesiąc temu i zaktualizowana ponad tydzień temu
Ta nieruchomość może być Twoja od.. sprawdź
74000 zł (20%) Okres spłaty: 30 lat

Podobne mieszkania na sprzedaż

9
Mieszkanie 3-pokojowe Gorzów Wielkopolski, ul. Aleksandra Fredry

379 000

53

3 pok.

Na sprzedaż komfortowe, funkcjonalne mieszkanie o powierzchni 53 m², zlokalizowane na osiedlu Staszica, przy ul. Fredry. Nieruchomość znajduje się na 2. piętrze w bloku 4-piętrowym i jest idealną propozycją dla rodzin, par, jak i osób szukających nieruchomości inwestycyjnej (np. pod wynajem). NAJWA...

Zobacz ogłoszenie
8
Mieszkanie 3-pokojowe Gorzów Wielkopolski, ul. Dywizjonu 303

365 000

52

3 pok.

Na sprzedaż funkcjonalne mieszkanie, położone w jednej z najlepszych lokalizacji Gorzowa - Osiedle Dolinki, ul. Dywizjonu 303. Oferta bezpośrednio od właściciela - bez pośredników. Mieszkanie z 3 osobnymi pokojami - idealne dla rodziny lub pod wynajem. Okna drewniane. Rolety na oknach. Mieszkanie...

Zobacz ogłoszenie
8
Mieszkanie 3-pokojowe Gorzów Wielkopolski, ul. Gwiaździsta

360 000

48

3 pok.

Na sprzedaż posiadam mieszkanie 3 pokojowe w Gorzowie ul.Gwiaździsta 10 .W Bloku na parterze. Po generalnym remoncie, umeblowane wraz z całym osprzętem. Drzwi i rolety antywłamaniowe. Więcej informacji udzielę telefonicznie.

Zobacz ogłoszenie
8
Mieszkanie 3-pokojowe Gorzów Wielkopolski, ul. Jana Matejki

359 000

59

3 pok.

Zapraszam do zakupu mieszkania 59,37 m2 usytuowanego na 3 piętrze w budynku 10 piętrowym. Mieszkanie składa się z 3 pokoi (salon z balkonem, 2 mniejsze pokoje), osobnej kuchni, łazienki, WC i dużego przedpokoju. Do mieszkania przynależy piwnica. W bloku jest winda. Przed blokiem parking. Mieszkani...

Zobacz ogłoszenie
1
Mieszkanie 3-pokojowe Gorzów Wielkopolski, ul. Hugona Kołłątaja

369 900

59

3 pok.

Sprzedam mieszkanie 59,1 m² + piwnica 5,9 m², na I piętrze, blok 4-piętrowy. 3 pokoje (24 m², 12 m², 10 m²), kuchnia, łazienka i toaleta, korytarz. Bardzo jasne i ustawne. Budynek ocieplony, po remoncie dachu. Własność (nie spółdzielcza). Opłaty bez prądu i gazu: 1100/miesiąc. Do sklepów: Lidl, ...

Zobacz ogłoszenie
8
Mieszkanie 3-pokojowe Gorzów Wielkopolski

375 000

48

3 pok.

Na sprzedaż: 3-pokojowe mieszkanie, 48 m², Gorzów Wielkopolski, osiedle Dolinki. Układ pomieszczeń jest funkcjonalny i zapewnia komfort codziennego użytkowania. Stan mieszkania: do zamieszkania od zaraz. Całe wyposażenie pozostaje w cenie. Czynsz: ok. 560 zł/miesięcznie (bez opłat za media liczony...

Zobacz ogłoszenie