Mieszkanie na sprzedaż bez pośredników
ul. Zwycięstwa Gliwice Śródmieście

Mieszkanie 6-pokojowe Gliwice Śródmieście, ul. Zwycięstwa. Zdjęcie 1

Mieszkanie na sprzedaż bez pośredników Gliwice Śródmieście ul. Zwycięstwa · 3 piętro

750 000
4 533 zł/m²
165
6 pok.
Gliwice Śródmieście, Zwycięstwa - lokalizacja przybliżona
Bezpośrednio od właściciela

Jeśli nie potrzebujesz pośrednika, zaoszczędzisz około 22 500 zł. Potrzebujesz wsparcia? Skorzystaj z pomocy agenta.

Sprzedam piękne, duże, słoneczne mieszkanie na ul. Zwycięstwa.
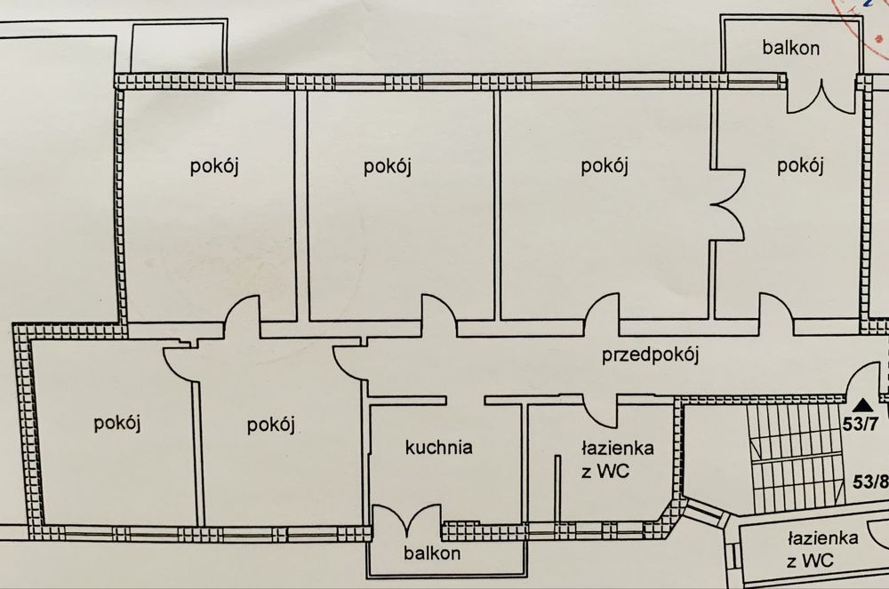
Mieszkanie składa się z 6 pokoi, kuchni z balkonem, łazienki i przedpokoju.

Mieszkanie znajduje się na trzecim piętrze zabytkowej kamienicy. Piękna, zadbana klatka schodowa dodaje uroku. Nowa elewacja i nowo wyremontowane balkony od strony podwórka. Prężnie działająca wspólnota.

Wyjątkowe mieszkanie o powierzchni 165,47m, położone w jednej z najbardziej atrakcyjnych części Gliwic. Idealne zarówno jako lokal użytkowy, kancelaria, gabinety, jak i przestrzeń mieszkalna.

Pomieszczenia:
- Salon,
- 5 sypialni, w tym jedna z balkonem,
- Łazienka z prysznicem, toaletą i bidetem,
- Obszerny, długi hol,
- Kuchnia z balkonem.

Dodatkowe atuty:
- Miejsce parkingowe na podwórku.

Stan techniczny:
Mieszkanie po generalnym remoncie w 2012 r.
Obecny stan mieszkania: odświeżone, częściowo do remontu.

  • Na sprzedaż mieszkanie 6-pokojowe o powierzchni 165,47 m² balkon, zewnętrzne miejsce parkingowe
  • 3 piętro w kamienicy  
  • Gliwice, Śródmieście ul. Zwycięstwa
  • Oferta bezpośrednio od właściciela dodana ponad miesiąc temu i zaktualizowana ponad tydzień temu
Ta nieruchomość może być Twoja od.. sprawdź
150000 zł (20%) Okres spłaty: 30 lat

Podobne mieszkania na sprzedaż

10
Mieszkanie 3-pokojowe Gliwice Śródmieście, ul. o. Jana Siemińskiego

644 000

121

3 pok.

Mieszkanie 121,29 m2 - Gliwice, Centrum, naprzeciwko Sądu Rejonowego Oferta bezpośrednia - z góry dziękujemy agentom nieruchomości. Na sprzedaż duże mieszkanie położone w ścisłym centrum Gliwic przy ul. Siemińskiego (do 2018 roku ul. Wieczorka). Lokal usytuowany jest na 2. piętrze w 3-piętrowej ka...

Zobacz ogłoszenie
10
Mieszkanie 4-pokojowe Gliwice Śródmieście, al. Wojciecha Korfantego

920 000

115

4 pok.

Sprzedam mieszkanie do remontu z dwoma balkonami na piewszym piętrze

Zobacz ogłoszenie
7
Mieszkanie 5-pokojowe Gliwice Śródmieście, ul. Jana Pawła II

650 000

105

5 pok.

Sprzedaję przestronne mieszkanie o powierzchni 105 m², które znajduje się na 3. piętrze w kamienicy z lat 50-tych. Mieszkanie składa się z pięciu pokoi i oddzielnej kuchni. W pełni wyposażone, w tym meble, pralka, lodówka oraz piekarnik. Dodatkowo do lokalu przynależy piwnica. Ogrzewanie gazowe zape...

Zobacz ogłoszenie
16
Mieszkanie 4-pokojowe Gliwice Ostropa, ul. Nad Stawem

770 000

100

4 pok.

Na sprzedaż wyjątkowe, bardzo słoneczne dwupoziomowe mieszkanie zlokalizowane na prestiżowym i kameralnym osiedlu Stara Cegielnia. Osiedle zlokalizowane w jednej z najbardziej zielonych części Gliwic, położone w otoczeniu lasu, stawów i terenów spacerowych. Planowane oddanie do użytku: czerwiec 202...

Zobacz ogłoszenie
5
Mieszkanie 6-pokojowe Gliwice Śródmieście, ul. Wrocławska

790 000

114

6 pok.

Sprzedaję przestronne mieszkanie o powierzchni 114 m². Znajduje się na 3. piętrze w kamienicy z 1960 roku. Mieszkanie posiada 6 pokoi oraz oddzielną kuchnię i dwie łazienki. W wyposażeniu znajdziesz meble, pralkę, piekarnik i lodówkę. Dodatkowo masz do dyspozycji balkon, garaż oraz piwnicę. Lokali...

Zobacz ogłoszenie
13
Mieszkanie 6-pokojowe Gliwice, ul. św. Katarzyny

750 000

105

6 pok.

Sprzedam działający z powodzeniem biznes, jakim jest mieszkanie na wynajem na pokoje. Mieszkanie o powierzchni 105m2 zostało dostosowane do najmu długoterminowego i wydzielono w nim 6 pokoi (w zdjęciach rzut mieszkania przed adaptacją). Mieszkanie w pełni wynajęte. Wszystkie umowy z najemcami do prz...

Zobacz ogłoszenie