Mieszkanie na sprzedaż bez pośredników
ul. Wyzwolenia Gdańsk Nowy Port

Mieszkanie 2-pokojowe Gdańsk Nowy Port, ul. Wyzwolenia. Zdjęcie 1

Mieszkanie na sprzedaż bez pośredników Gdańsk Nowy Port ul. Wyzwolenia · 3 piętro

580 000
12 691 zł/m²
45
2 pok.
Gdańsk Nowy Port, Wyzwolenia - lokalizacja przybliżona
Bezpośrednio od właściciela

Jeśli nie potrzebujesz pośrednika, zaoszczędzisz około 17 400 zł. Potrzebujesz wsparcia? Skorzystaj z pomocy agenta.

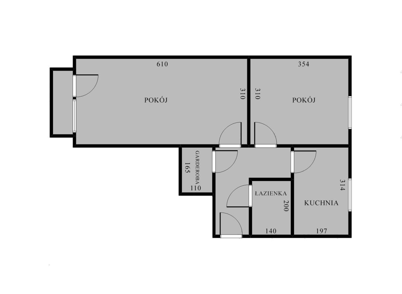
Na sprzedaż przestronne 2-pokojowe mieszkanie o powierzchni 45,7m², położone w dzielnicy Nowy Port przy ul. Wyzwolenia.

OGŁOSZENIE PRYWATNE – POŚREDNIKOM I AGENCJOM NIERUCHOMOŚCI DZIĘKUJĘ.

W skład lokalu wchodzą: przedpokój, oddzielna kuchnia, łazienka, garderoba (1.8m²), sypialnia oraz przestronny salon z wyjściem na balkon. Dwustronna ekspozycja (wschód–zachód) zapewnia naturalne doświetlenie wnętrz przez cały dzień. Lokal usytuowany jest na III piętrze czteropiętrowego bloku.
Do mieszkania przynależy również piwnica. Mieszkanie sprzedawane jest z pełnym umeblowaniem, co czyni je idealnym wyborem zarówno do zamieszkania, jak i pod wynajem.

Budynek

Zadbany, czteropiętrowy blok w bardzo dobrym stanie technicznym i wizualnym. Wejście do klatki schodowej zabezpieczone domofonem. W pobliżu znajduje się ogólnodostępny parking.

Lokalizacja

Okolica oferuje w pełni rozwiniętą infrastrukturę handlowo-usługową – w pobliżu znajdują się sklepy, supermarkety, apteki, szkoły i przedszkola. Nieruchomość położona jest blisko morza oraz Stadionu Polsat Plus Arena Gdańsk. Świetna komunikacja miejska: w sąsiedztwie przystanki autobusowe (linie 148) oraz tramwajowe (linie 5, 7, 10), co umożliwia szybki dojazd do każdej części Gdańska.
Dodatkowym atutem jest łatwy dostęp do obwodnicy oraz autostrady dzięki tunelowi pod Martwą Wisłą. Okolica jest cicha i spokojna – idealna zarówno do życia, jak i pod wynajem.

  • Na sprzedaż mieszkanie 2-pokojowe o powierzchni 45,70 m² balkon, piwnica, osobna kuchnia
  • 3 piętro w 4-piętrowym bloku bez windy, rok budowy 1976
  • Gdańsk, Nowy Port ul. Wyzwolenia
  • Mieszkanie w bardzo dobrym stanie  
  • Odrębna własność z księgą wieczystą  
  • Wyposażenie internet, kuchenka, lodówka, piekarnik, pralka, zmywarka
  • Cena do negocjacji  
  • Oferta bezpośrednio od właściciela dodana ponad miesiąc temu i zaktualizowana 6 dni temu
Ta nieruchomość może być Twoja od.. sprawdź
116000 zł (20%) Okres spłaty: 30 lat

Podobne mieszkania na sprzedaż

8
Mieszkanie 3-pokojowe Gdańsk Nowy Port, ul. Na Zaspę

590 000

58

3 pok.

Dzień dobry! Oferuje do sprzedaży 3-pokojowe mieszkanie 58m , Gdańsk Nowy Port, jakie zajmuje cały parter . Kamienica z ogródkiem, tarasem, własnym miejscem parkingowym, piwnica i osobnym wejściem. Mieszkanie składa się z kuchni, dwie osobne sypialni , małego pokoju, osobnej toalety oraz łazienki. W...

Zobacz ogłoszenie
11
Mieszkanie 2-pokojowe Gdańsk Nowy Port, ul. Wyzwolenia

559 000

45

2 pok.

Oferuję na sprzedaż mieszkanie w Gdańsku, które znajduje się na trzecim piętrze budynku 4-piętrowego. Nieruchomość ma powierzchnię 45,7 m² i składa się z dwóch pokoi, kuchni, łazienki oraz garderoby, co czyni ją idealnym miejscem dla pary lub małej rodziny. Mieszkanie jest dobrze doświetlone i posia...

Zobacz ogłoszenie
14
Mieszkanie 2-pokojowe Gdańsk Nowy Port, ul. Kasztanowa

637 000

49

2 pok.

2 oddzielne pokoje, oddzielna kuchnia, WC i łazienka, balkon-loggia. Dodatkowo piwnica i dostęp do wspólnej wózkarni. Mieszkanie sprzedaję gotowe do zamieszkania z meblami, zmywarką, lodówką, kuchenką, pralką, bez telewizora. Mieszkanie wyremontowane w 2007 roku i na bieżąco odświeżane - zadbane. ...

Zobacz ogłoszenie
20
Mieszkanie 2-pokojowe Gdańsk Nowy Port, ul. Wyzwolenia

540 000

49

2 pok.

Dostępne od zaraz. ul. Wyzwolenia 51a --- Na wstępie chciałbym poinformować, iż nie jestem zainteresowany jakąkolwiek współpracą z pośrednikami. Dziękuję za wyrozumiałość. --- Dwupokojowe mieszkanie zlokalizowane w Gdańsku Nowym Porcie. Perełka dla młodych osób oraz inwestorów poszukujących mieszk...

Zobacz ogłoszenie
8
Mieszkanie 2-pokojowe Gdańsk Nowy Port, ul. Oliwska

430 000

34

2 pok.

Na sprzedaż mieszkanie 2-pokojowe w Gdańsku Nowym Porcie - blisko morza i Martwej Wisły. Atuty mieszkania: Cicha i zielona okolica, tuż przy Martwej Wiśle Balkon z widokiem na zieleń i nabrzeże Blisko morza i plaży w Brzeźnie (ok. 5 minut spacerem) Zadbana kamienica po termomodernizacji Możliwość a...

Zobacz ogłoszenie
7
Mieszkanie 2-pokojowe Gdańsk Nowy Port, ul. Wyzwolenia

498 000

47

2 pok.

Ogłoszenie bez pośredników. Od prywatnego właściciela. MIESZKANIE Z POTENCJAŁEM W FALOWCU, GDAŃSK NOWY PORT - UL. WYZWOLENIA CENA: 498 000 Rozkład: 2 pokoje z osobną kuchnią, korytarz, przedsionek, łazienka, schowek (można przerobić na garderobę) Piętro: 10/11 Dodatkowo: Balkon z widokiem na Gdań...

Zobacz ogłoszenie