+6
zdjęć
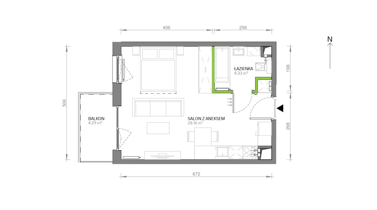
Nowe mieszkanie 1-pokojowe o powierzchni 32,49 m² w inwestycji Via Flora dewelopera DEVELIA, na 2 piętrze w budynku 26 pod adresem ul. Ptasia 26, Gdańsk Chełm. Planowany termin oddania to IV kwartał 2025 roku.
Opis inwestycji:
W ramach najnowszego trzeciego etapu inwestycji Via Flora powstanie łącznie 85 mieszkań o zróżnicowanych powierzchniach od 30 mkw. do 75 mkw. Oferta wyróżnia się na tle konkurencji niską, kameralną zabudową oraz pełnymi zieleni otoczeniem. Teren inwestycji urozmaicą alejki spacerowe, place zabaw, wiaty rowerowe, miejsce do ładowania samochodów elektrycznych. Cennym uzupełnieniem projektu będą ogrody deszczowe, obsadzone ozdobną roślinnością, które poprawią komfort życia i zd... więcej >
Opis inwestycji:
W ramach najnowszego trzeciego etapu inwestycji Via Flora powstanie łącznie 85 mieszkań o zróżnicowanych powierzchniach od 30 mkw. do 75 mkw. Oferta wyróżnia się na tle konkurencji niską, kameralną zabudową oraz pełnymi zieleni otoczeniem. Teren inwestycji urozmaicą alejki spacerowe, place zabaw, wiaty rowerowe, miejsce do ładowania samochodów elektrycznych. Cennym uzupełnieniem projektu będą ogrody deszczowe, obsadzone ozdobną roślinnością, które poprawią komfort życia i zdrowia mieszkańców oraz zwiększą bioróżnorodność środowiska.
Lokalizacja:
Osiedle Via Flora powstaje w Chełmie, w promieniu 2 km od Parku Oruńskiego, trzeciego co do wielkości w Gdańsku. Dzielnica Chełm to doskonale rozwinięta część miasta, oferująca bogatą infrastrukturę handlowo-usługową, z licznymi sklepami, duży wybór placówek szkolno-przedszkolnych oraz tereny rekreacyjne. Do centrum dojazd zajmuje około 15 minut. W pobliżu inwestycji znajdują się ważne arterie drogowe, które zapewniają wygodne połączenie z innymi częściami Gdańska, a drogą krajową nr 91 szybko można dojechać do obwodnicy miasta.
Atuty inwestycji:
- Kameralna, 4-piętrowa zabudowa
- Dobry dojazd do centrum
- Szybki dostęp do komunikacji miejskiej
- Nowoczesne budynki z windami, garażami podziemnymi i naziemnymi miejscami postojowymi
- Ogrody deszczowe
- W bezpośrednim sąsiedztwie pełna infrastruktura: sklepy, szkoły, przedszkola, przychodnie, itp
- Bliskość terenów zielonych i rekreacyjnych: Park Oruński, Gaj Ojców, Wieża Widokowa Kozacza Góra
Niniejszy materiał nie stanowi oferty w rozumieniu Kodeksu cywilnego i ma charakter wyłącznie informacyjny.
Szczegóły inwestycji dostępne są na stronie internetowej develia.pl
Pozostałe nieruchomości tego dewelopera:
Mieszkania DEVELIA Gdańsk
Mieszkania DEVELIA Via Flora Gdańsk
Mieszkania 1-pokojowe DEVELIA Via Flora Gdańsk