Mieszkanie na sprzedaż bez pośredników
ul. Sosnowa Bielany Wrocławskie

Mieszkanie 3-pokojowe Bielany Wrocławskie, ul. Sosnowa. Zdjęcie 1

Mieszkanie na sprzedaż bez pośredników Bielany Wrocławskie ul. Sosnowa · 2 piętro

649 900
10 099 zł/m²
64
3 pok.
Bielany Wrocławskie, Sosnowa - lokalizacja przybliżona
Bezpośrednio od właściciela

Jeśli nie potrzebujesz pośrednika, zaoszczędzisz około 19 500 zł. Potrzebujesz wsparcia? Skorzystaj z pomocy agenta.

Mieszkanie na sprzedaż w Bielanach Wrocławskich.

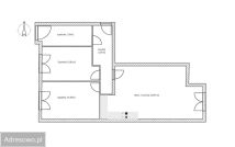
Na sprzedaż 3 pokojowe mieszkanie o powierzchni 64,35m², mieszczące się na drugim piętrze w trzypiętrowym, kameralnym budynku z 2006r.

Mieszkanie składa się z:
- salon z kuchnią 25,89 m²
- sypialnia 14,46 m²
- sypialnia 10,81 m²
- korytarz 5,91 m²
- łazienka 7,28 m²

Mieszkanie po remoncie: w kuchni znajdują się nowe meble wraz z lodówką, zmywarką, piekarnikiem i płytą grzewczą. Mieszkanie zostało całe odmalowane, w pokojach położone nowe podłogi.
Nieruchomość gotowa do wprowadzenia się.
Klatka schodowa po remoncie, osiedle objęte monitoringiem.

Lokalizacja:
Ulica Sosnowa znajduje się w południowej, bardzo spokojnej części Bielan Wr. Niedaleko bloku, w odległości 1 minuty spacerem, znajdują się przystanki komunikacji publicznej. W pobliżu wjazd na drogi szybkiego ruchu S8, AOW i A4.
W okolicy znajdują się sklepy, usługi, restauracje, szkoły i przedszkola, basen kryty, a także tereny na spacery i aktywność.

Sprzedaż bezpośrednio od właściciela.

Zapraszam do kontaktu i obejrzenia mieszkania na żywo - naprawdę warto!

Pozdrawiam,
Tomasz

  • Na sprzedaż mieszkanie 3-pokojowe o powierzchni 64,35 m² aneks kuchenny
  • 2 piętro w 3-piętrowym bloku rok budowy 2006
  • Bielany Wrocławskie ul. Sosnowa
  • Odrębna własność z księgą wieczystą  
  • Wyposażenie lodówka, piekarnik, zmywarka
  • Oferta bezpośrednio od właściciela dodana ponad miesiąc temu i zaktualizowana ponad tydzień temu
Ta nieruchomość może być Twoja od.. sprawdź
130000 zł (20%) Okres spłaty: 30 lat

Podobne mieszkania na sprzedaż

6
Mieszkanie 2-pokojowe Wysoka, ul. Brzozowa

650 000

60

2 pok.

Wysoka ul Brzozowa. Mieszkanie o pow 60mkw, usytuowane na pierwszym pietrze III-kondygnacyjnego budynku z 2007 roku. Mieszkanie obejmuje pokój połączony z aneksem kuchennym, sypialnię, łazienkę, balkon. Mieszkanie w pełni umeblowane i wyposażone w sprzęt AGD, RTV. Klimatyzacja. Osiedle ogrodzone, mo...

Zobacz ogłoszenie
14
Mieszkanie 3-pokojowe Wysoka

620 000

51

3 pok.

Sprzedaję przytulne mieszkanie o powierzchni 51 m², znajdujące się na parterze w trzypiętrowym budynku z cegły. Mieszkanie ma 3 pokoje i jest w pełni wyposażone, w tym meble, sprzęt AGD oraz telewizor. Do dyspozycji masz również balkon, miejsce postojowe i piwnicę. Lokalizacja jest bardzo dogodna. ...

Zobacz ogłoszenie
16
Mieszkanie 3-pokojowe Bielany Wrocławskie, ul. Kłodzka

490 000

51

3 pok.

⭐️ FUNKCJONALNY ROZKŁAD POMIESZCZEŃ - BLISKOŚĆ NATURY ⭐️ Na sprzedaż przestronne 3 pokojowe mieszkanie o powierzchni 51,64 m2 na 1 piętrze 1 piętrowego budynku w Bielanach Wrocławskich w okolicy ul. Kłodzkiej/ul. Świerkowej - 3 km do granicy Wrocławia - 20 min do RYNKU W p...

Zobacz ogłoszenie
5
Mieszkanie 3-pokojowe Groblice, ul. Różana

639 093

70

3 pok.

Zapraszamy na prezentację wyjątkowych, gotowych do odbioru mieszkań na Osiedlu Różanym w Groblicach, 1,5 km od Siechnic i 15 km od centrum Wrocławia. Każde mieszkanie jest dwupoziomowe (gotowe żelbetowe schody na piętro), posiada ogrodzony ogródek z tarasem oraz możliwość wykończenia antresoli o po...

Zobacz ogłoszenie
20
Mieszkanie 2-pokojowe Wysoka, ul. Chabrowa

738 000

56

2 pok.

Nowe

Świeżo po remoncie, komfortowe i estetyczne mieszkanie z dużym tarasem | Wysoka, gmina Kobierzyce | Dolnośląskie Szukasz miejsca, gdzie w otoczeniu zieleni możesz odpocząć po pracy z dala od zgiełku dużego miasta? Na sprzedaż atrakcyjne, bardzo przytulne, nowocześnie urządzone w wysokim standardzie,...

Zobacz ogłoszenie
19
Mieszkanie 3-pokojowe Wysoka, ul. Lipowa

830 000

82

3 pok.

Sprzedam mieszkanie – Wysoka, ul. Lipowa /Wrocław/ Na sprzedaż przestronne, komfortowe i funkcjonalne mieszkanie o powierzchni 82,75 m2, położone w spokojnej i dobrze skomunikowanej części Wrocławia – Wysoka, ul. Lipowa /gmina Kobierzyce, granica miasta/ - 3 pokoje w tym salon z aneksem kuchennym o...

Zobacz ogłoszenie