Nieruchomość komercyjna do wynajęcia bez pośredników
ul. Chorzowska 12 Bytom Śródmieście

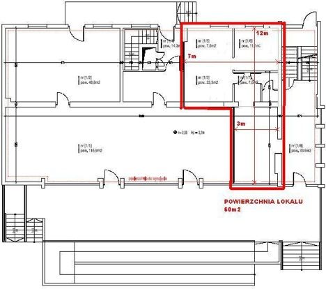
Lokal Bytom Śródmieście, ul. Chorzowska. Zdjęcie 1

Nieruchomość komercyjna do wynajęcia bez pośredników Bytom Śródmieście ul. Chorzowska 12

2 900
48 zł/m²
60
Bytom Śródmieście, Chorzowska 12 - lokalizacja dokładna
Bezpośrednio od właściciela

Lokale do wynajęcia biurowy, handlowy, usługowy w centrum Bytomia.
CECHY LOKALU:
Lokale użytkowe handlowe, usługowe. Łatwa adaptacja wnętrza lokalu. Wejście bezpośrednio z zewnątrz,  elewacja widoczna z drogi krajowej Chorzowska i Tuwima. Własny parking. Usytuowanie w centrum Bytomia, na dużym osiedlu mieszkaniowym przy dwóch przystankach autobusowych i dwóch przystankach tramwajowych i postoju taxi. Rozważymy każdą propozycje współpracy

  • ul. Chorzowska 12, Bytom Śródmieście  
  • Do wynajęcia lokal o powierzchni 60 m²  
  • Dostępne do wynajęcia od zaraz
  • Money Wallet 1 Streamline Icon: https://streamlinehq.com
    Kaucja 4000 zł
  • Oferta bezpośrednio od właściciela dodana wczoraj

Podobne nieruchomości komercyjne na wynajem

9
Lokal Bytom Śródmieście, ul. Chorzowska

2 950

61

Do wynajęcia samodzielny lokal handlowo usługowy na parterze obok Zabka i Kebab w centrum przy skrzyżowaniu ulicy Chorzowska 12 i ul. Tuwima. Idealny do prowadzenia handlu, usług dla ciała; fryzjer, kosmetologia, itp bez pośredników i bez wspólnoty. Lokal z dużym potencjałem. kontakt Powierzchnia ...

Zobacz ogłoszenie
9
Lokal Bytom Miechowice, ul. Ludwika Chroboka

1 950

176

do wynajęcia budynek pod działalność produkcyjno-usługowo-handlową o pow.178 mkw-Miechowice i wysokości 3,6,wyposażony jest w część biurową oraz usługowo-produkcjną,woda,prąd+siła,wc,aneks kuchenny,brama wjazdowa i osobne wejście biurowe.W części biurowej płytki na posadzkach a w części produkcyjnej...

Zobacz ogłoszenie
8
Lokal Bytom, ul. Strzelców Bytomskich

1 900

68

Oferujemy do wynajmu funkcjonalny lokal użytkowy o powierzchni 68 m2, położony w samym sercu Bytomia przy ulicy Strzelców Bytomskich. Lokal składa się z pięciu pomieszczeń: części sprzedażowej, korytarza z chłodnią, pomieszczenia socjalnego, łazienki oraz pomieszczenia technicznego (myjki do pojemni...

Zobacz ogłoszenie
3
Lokal Bytom, ul. Antoniego Józefczaka

2 500

78

Oferujemy na wynajem piekarnię z wieloletnią tradycją i ugruntowaną renomą, działającą nieprzerwanie od 1990 roku. Lokal użytkowy mieści się na parterze, co gwarantuje łatwy dostęp dla klientów. Dodatkowo duża witryna wychodząca na ulicę zapewnia doskonałą widoczność oraz naturalne światło, co pozyt...

Zobacz ogłoszenie
2
Lokal Bytom Śródmieście, ul. Jana Smolenia

2 679

134

Do wynajęcia bezpośrednio od właściciela lokal użytkowy o powierzchni 134 m², położony przy ul. Smolenia 4. Idealny pod działalność handlową, usługową lub biurową. Od kilkunastu lat mieści się tu sklep motoryzacyjny PS Auto. Lokal będzie dostępny od 1 stycznia 2026 roku. Najważniejsze informacje: ...

Zobacz ogłoszenie
8
Biuro Bytom Śródmieście, ul. Stanisława Witczaka

2 250

63

Bez pośrednika, komfortowy i wyposażony, po remoncie, lokal w centrum Bytomia z własnym parkingiem. Idealny na biuro, gabinet lekarski lub lokal usługowy czy sprzedażowy. 63 metry kwadratowe w centrum Bytomia przy ul. Witczaka 149. Wejście bezpośrednio z ulicy. Do tego własny parking na co najmniej...

Zobacz ogłoszenie