Nieruchomość komercyjna na sprzedaż bez pośredników
ul. Czapelska Warszawa Praga-Południe

Lokal Warszawa Praga-Południe, ul. Czapelska. Zdjęcie 1

Nieruchomość komercyjna na sprzedaż bez pośredników Warszawa Praga-Południe ul. Czapelska

399 000
13 525 zł/m²
29
Warszawa Praga-Południe, Czapelska - lokalizacja przybliżona
Bezpośrednio od właściciela

Jeśli nie potrzebujesz pośrednika, zaoszczędzisz około 12 000 zł. Potrzebujesz wsparcia? Skorzystaj z pomocy agenta.

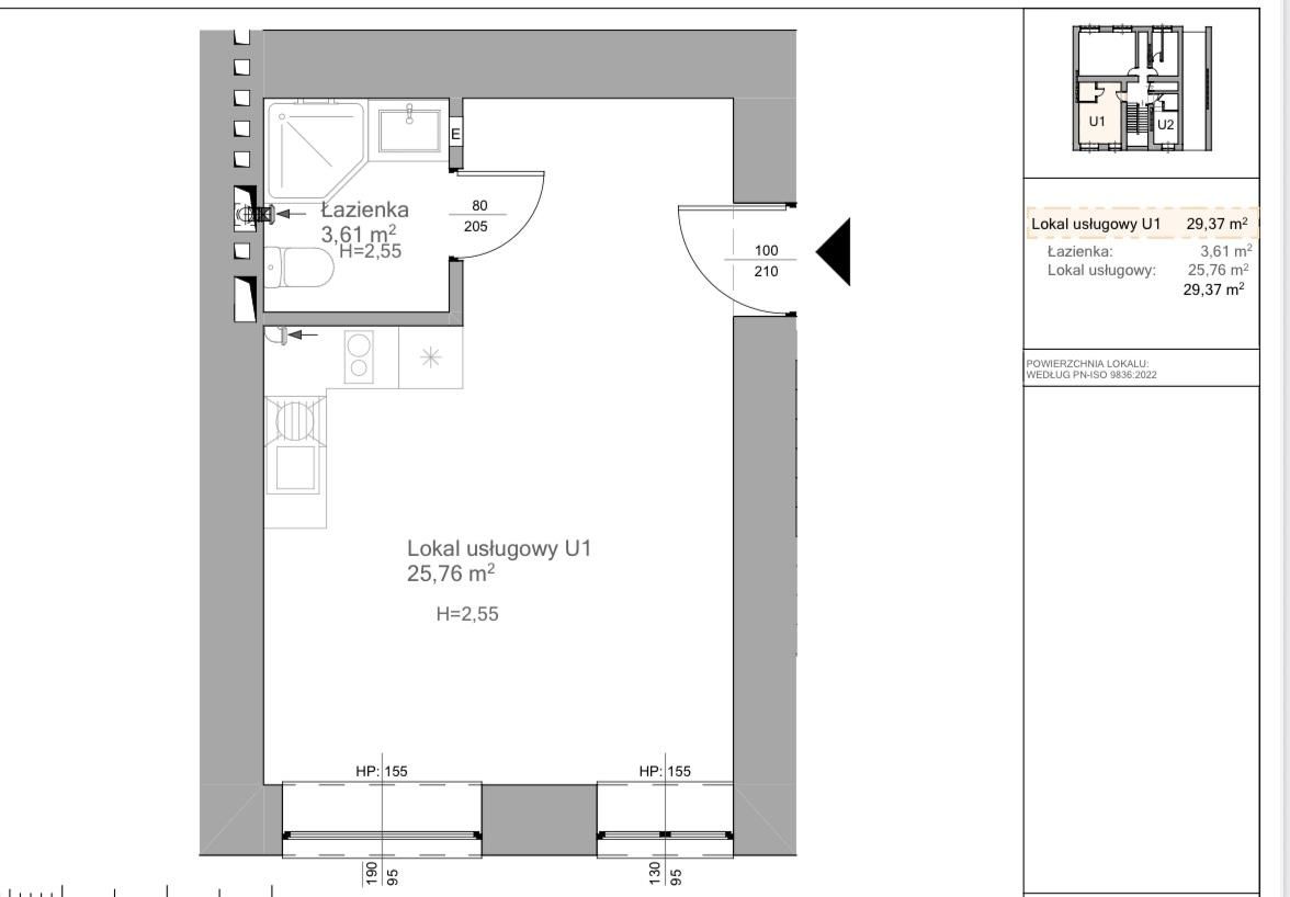
Na sprzedaż lokal użytkowy o powierzchni 29,37 m², położony w przyziemiu w zrewitalizowanej kamienicy z 1935 roku z wejściem od strony cichego patio. Lokal idealny pod działalność usługową, biurową, magazynową, pracownię lub gabinet, a także świetny jako inwestycja pod wynajem.

Lokal jest również przystosowany na cele mieszkalne .

Informacje o lokalu:

Powierzchnia całkowita: 29,37 m²
Lokal usługowy: 25,76 m²
Łazienka: 3,61 m²
Wysokość pomieszczeń: 2,70 m
Poziom: piwnica/przyziemie
Wejście: od strony podwórka
Ekspozycja: widok na zielone patio
Opis lokalu:

Lokal składa się z dużej, ustawnej przestrzeni głównej oraz wygodnej łazienki. Przewidziano miejsce na aneks kuchenny lub zaplecze socjalne. Dzięki dużym oknom od strony patio do wnętrza wpada naturalne światło, co znacząco podnosi komfort pracy

Atuty:

położony w przyziemiu – idealny na działalności, które wymagają prywatności lub niższego czynszu
spokojne otoczenie, wejście od patio
duża, jasna przestrzeń do własnej aranżacji
nowy budynek, estetyczne części wspólne
niski koszt utrzymania
możliwość prowadzenia wielu rodzajów działalności
Idealny dla:

biura
pracowni
magazynu do obsługi sprzedaży online
gabinetu (np. kosmetyka, masaż)
inwestora szukającego lokalu pod wynajem
Bardzo dobra lokalizacja .W pobliżu centrum handlowe ,liczne lokale usługowe i gastronomiczne .

Zapraszam
Agnieszka

  • ul. Czapelska, Warszawa Praga-Południe  
  • Na sprzedaż lokal o powierzchni 29,50 m²  
  • Oferta bezpośrednio od właściciela dodana ponad tydzień temu
Ta nieruchomość może być Twoja od.. sprawdź
80000 zł (20%) Okres spłaty: 30 lat

Podobne nieruchomości komercyjne na sprzedaż

12
Lokal Warszawa Praga-Południe, ul. Ostrobramska

415 000

24

Przedmiotem sprzedaży jest lokal handlowo-usługowy ul. Ostrobramska 73E/U5. Lokal jest wykończony: pomalowany, w podłodze są poprowadzone kontakty, co jest bardzo wygodne. Oddzielny pokój socjalny, wykończona łazienka. Założony jest alarm. W lokalu obok działa: Żabka, Restauracja, Stylizacja pazno...

Zobacz ogłoszenie
7
Lokal Warszawa Praga-Południe, ul. Zamieniecka

478 000

36

Bezpośrednio od właściciela! Lokal użytkowy z funkcją mieszkalną, Praga Południe! Nieruchomość bez obciążeń prawnych oraz finansowych. Lokalizacja: zamknięte osiedle przy ul. Zamienieckiej 62 w Warszwie Powierzchnia: 36,4 m2 | Cena: 478 000 zł | Cena za metr kwadratowy: 13 131 zł/m2 Opis: Przestr...

Zobacz ogłoszenie
12
Lokal Warszawa Praga-Południe, ul. Dubieńska

320 000

14

Witam serdecznie bezpośrednio sprzedam lokal usługowy na Pradze południe. Obecnie w lokalu znajduje sie kameralny salon fryzjerski. Lokal posiada ubikacje, Pomieszczenie gospodarcze Metraż 14 m2 Agencjom dziękuje.

Zobacz ogłoszenie
2
Lokal Warszawa Praga-Południe

445 000

22

Inwestycja Bliska Residence dostępne lokale w metrażu 19 -35m2.  Lokale idealne pod wynajem.  Zapraszam do kontaktu:

Zobacz ogłoszenie
8
Lokal Warszawa Praga-Południe, ul. Stanisława Augusta

492 000

22

Do sprzedaży lokal usługowy o powierzchni 22,32 m2 z dużą witryną znajdujący się na parterze nowej inwestycji Luksusowe Apartamenty Przy Parku. Lokal U6 z wejściem od ulicy Stanisława Augusta. Okolica bardzo dobrze skomunikowana, blisko centrum. Lokal wykonany przez dewelopera w standardzie premiu...

Zobacz ogłoszenie
5
Lokal Warszawa Praga-Południe, ul. Grochowska

320 000

61

Sprzedam działające bistro na Pradze - Południe przy ulicy Grochowskiej 324. Sprzedaż polega na przejęciu udziałów spółki z o.o. W skład sprzedaży wchodzi: - murowany pawilon handlowy (należący do spółki) - gastronomiczny o powierzchni 61 m2. Budynek wolnostojący z witryną i roletą w ciągu innych p...

Zobacz ogłoszenie