Nieruchomość komercyjna na sprzedaż bez pośredników
al. Tadeusza Rejtana Rzeszów

Lokal Rzeszów, al. Tadeusza Rejtana. Zdjęcie 1

Nieruchomość komercyjna na sprzedaż bez pośredników Rzeszów al. Tadeusza Rejtana

6 000 000
4 505 zł/m²
1332
Rzeszów, Tadeusza Rejtana - lokalizacja przybliżona
Bezpośrednio od właściciela

Jeśli nie potrzebujesz pośrednika, zaoszczędzisz około 180 000 zł. Potrzebujesz wsparcia? Skorzystaj z pomocy agenta.

Ogłoszenie bezpośrednio od właściciela, bez pośredników i prowizji.

Oferujemy na sprzedaż trzy piętra biurowe w budynku przy ul. Rejtana 53 w Rzeszowie. Dostępne są I, II oraz IV piętro w pięciokondygnacyjnym obiekcie z windą i jedną klatką schodową.

---
PIĘTRO I
---

- Kompleks biur w pełni umeblowanych (biurka, krzesła, liczne szafy).
- Rozbudowana infrastruktura teletechniczna: liczne gniazdka prądowe zintegrowane z siecią internetową i telefoniczną.
- Gotowa przestrzeń do pracy - kilka miesięcy temu była odświeżana.

Na piętrze znajdują się następujące pomieszczenia:
- Pokój o pow. 22,90 m²
- Pokój o pow. 40,70 m²
- Pokój o pow. 16,00 m²
- Pokój o pow. 43,00 m²
- Pokój o pow. 17,85 m²
- Pokój o pow. 23,50 m²
- Pokój o pow. 19,75 m²
- Pokój o pow. 26,20 m²
- Pokój o pow. 15,00 m²
- Korytarz 71,00 m²
- Toalety 16,00 m²

Wszystkie biura na tym piętrze są dostępne za szklaną ścianką z szerokimi drzwiami, a cała przestrzeń biurowa jest zabezpieczona alarmem. Biura są otwierane przy użyciu kart magnetycznych i każde z nich może mieć swój osobny kod do wyłączenia alarmu.

---
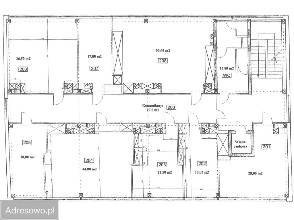
PIĘTRO II
---

- Kompleks biur częściowo umeblowanych (biurka, krzesła).
- Rozbudowana infrastruktura teletechniczna: liczne gniazdka prądowe zintegrowane z siecią internetową i telefoniczną.
- Elastyczność aranżacji - łatwe dopasowanie przestrzeni do liczebności zespołu.

Na piętrze znajdują się następujące pomieszczenia:
- Pokój o pow. 28,00 m²
- Pokój o pow. 18,00 m²
- Pokój o pow. 22,50 m²
- Pokój o pow. 44,00 m²
- Pokój o pow. 18,00 m²
- Pokój o pow. 36,50 m²
- Pokój o pow. 17,00 m²
- Pokój o pow. 50,60 m²
- Korytarz 49,00 m² (z mini aneksem kuchennym)
- Toalety 15,80 m²

Oprócz toalety i jednego biura, pozostałe biura są dostępne za szklaną ścianką z szerokimi drzwiami, a cała przestrzeń biurowa jest zabezpieczona alarmem. Biura są otwierane przy użyciu kart magnetycznych i każde z nich może mieć swój osobny kod do wyłączenia alarmu.

---
PIĘTRO IV
---

- Przestrzeń biurowa + sale szkoleniowe i konferencyjne.
- Wyposażenie: rzutniki, ekrany, flipcharty, szybkie łącze internetowe (osobna sieć), stoły, krzesła, meble na odzież wierzchnią.
- Gotowe do organizacji szkoleń, spotkań biznesowych i działań doradczo-szkoleniowych.

Na piętrze znajdują się następujące pomieszczenia:
- Pokój o pow. 21,25 m²
- Pokój o pow. 49,00 m² sala szkoleniowa
- Pokój o pow. 33,00 m² (aneks kuchenny)
- Pokój o pow. 10,50 m²
- Pokój o pow. 51,40 m² sala szkoleniowa (nr 406a)
- Pokój o pow. 51,60 m² sala szkoleniowa (nr 406)
- Pomieszczenie gospodarcze 1,30 m²
- Korytarz 35,50 m²
- Toalety 15,80 m²

Oprócz toalety i jednego biura, pozostałe biura/sale szkoleniowe są dostępne za szklaną ścianką z szerokimi drzwiami, a cała przestrzeń biurowa jest zabezpieczona alarmem. Sala szkoleniowa nr 406 i 406a są przedzielone przesuwną ścianką, dzięki której po złożeniu otrzymujemy salę szkoleniową na ponad 100 m².

---
LOKALIZACJA
---

Biura na obu piętrach są doskonale zlokalizowane, bo w odległości około 150 m od obwodnicy Rzeszowa i 100 m od przystanków MPK. W promieniu 70 m znajdują się lokale gastronomiczne z przystępnymi cenami za posiłki.

  • al. Tadeusza Rejtana, Rzeszów  
  • Na sprzedaż lokal o powierzchni 1332 m²  
  • Oferta bezpośrednio od właściciela dodana ponad miesiąc temu
Ta nieruchomość może być Twoja od.. sprawdź
1200000 zł (20%) Okres spłaty: 30 lat

Podobne nieruchomości komercyjne na sprzedaż

17
Biuro Rzeszów, ul. Wita Stwosza

4 500 000

450

Budynek biurowo-usługowy z najemcami | 450 m² | 14 miejsc parkingowych | Rzeszów – Kmity Na sprzedaż atrakcyjna nieruchomość inwestycyjna zlokalizowana w Rzeszowie na os. Kmity, w bezpośrednim sąsiedztwie jednej z głównych arterii miasta. To idealna propozycja dla inwestora poszukującego stabilneg...

Zobacz ogłoszenie
25
Lokal Rzeszów

7 800 000

700

Budynek usługowo-mieszkalny 650 m² z halą warsztatową i mieszkaniem – Rzeszów, Podkarpacka PREMIUM. *Nie ponosisz żadnych kosztów związanych z pośrednictwem przy zakupie. Zobacz Wideo (dołączone do ogłoszenia), przeczytaj opis i zadzwoń, chętnie Ci opowie więcej na temat tej nieruchomości. Rzes...

Zobacz ogłoszenie
4
Hotel/pensjonat Rzeszów Zwięczyca

4 500 000

1200

Oferta nieruchomości komercyjnej w okolicach Rzeszowa. Zapraszamy do zapoznania się z wyjątkową ofertą sprzedaży obiektu komercyjnego , gastronomicznego (restauracja, sala balowa, hotel) usytuowanego zaledwie 30 kilometrów od Rzeszowa. Zasadniczą część nieruchomości stanowi duży parking również n...

Zobacz ogłoszenie
16
Lokal Rzeszów Zwięczyca

4 800 000

1000

W ofercie biura OKAZJA Nieruchomości przedstawiamy Państwu na sprzedaż funkcjonalny budynek usługowy o dużym potencjale inwestycyjnym, położony w atrakcyjnej i dobrze skomunikowanej części miasta - ul. Beskidzka w Rzeszowie. Nieruchomość jest w całości wynajmowana - w budynku działają stabilni najem...

Zobacz ogłoszenie