Nieruchomość komercyjna na sprzedaż bez pośredników
ul. Joachima Lelewela Nysa

Nieruchomość komercyjna Nysa, ul. Joachima Lelewela. Zdjęcie 1

Nieruchomość komercyjna na sprzedaż bez pośredników Nysa ul. Joachima Lelewela

899 999
4 782 zł/m²
188
Nysa, Joachima Lelewela - lokalizacja przybliżona
Bezpośrednio od właściciela

Jeśli nie potrzebujesz pośrednika, zaoszczędzisz około 27 000 zł. Potrzebujesz wsparcia? Skorzystaj z pomocy agenta.

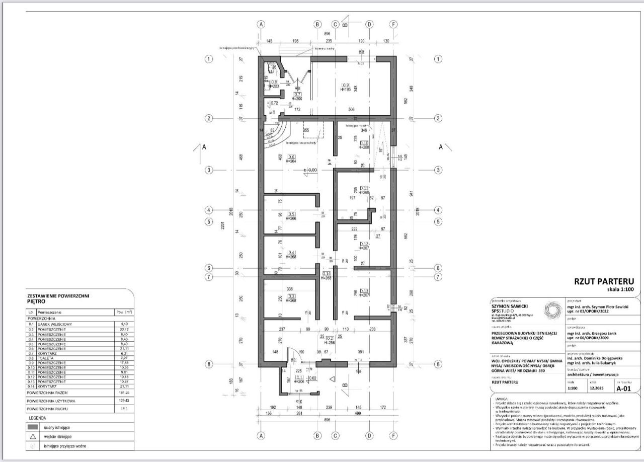
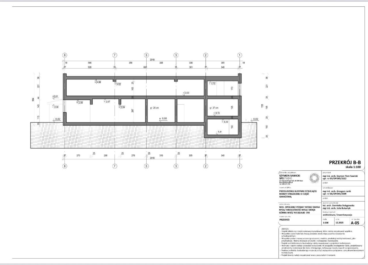
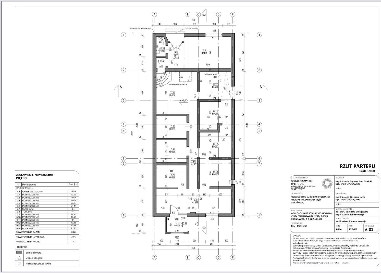
Na sprzedaż budynek zlokalizowany w Nysie przy ul. Lelewela, w południowej części miasta, na działce budowlanej o powierzchni 9,68 ar, objętej obowiązującym miejscowym planem zagospodarowania przestrzennego.

Opis nieruchomości:
Na działce znajduje się istniejący budynek murowany z dachem betonowym, częściowo dwukondygnacyjny (dwie kondygnacje nadziemne). Budynek jest w pełni uzbrojony w media:
- woda
- kanalizacja sanitarna
- energia elektryczna
- gaz

Zgodnie z zapisami MPZP dopuszczalna jest rozbudowa lub przebudowa obiektu.

Potencjał inwestycyjny:
Niewielkim nakładem inwestycyjnym możliwa jest adaptacja budynku na zabudowę mieszkaniową jednorodzinną szeregową, z możliwością uzyskania:
- 3 lub 4 niezależnych lokali mieszkalnych
- indywidualnych ogródków dla każdego lokalu

Dostępna jest koncepcja architektoniczna przedstawiająca funkcjonalne rozwiązania lokali, w tym antresole, co znacząco podnosi atrakcyjność i powierzchnię mieszkań.

Lokalizacja:
Nieruchomość położona w dobrze skomunikowanej części miasta.
W najbliższym sąsiedztwie znajdują się:
- szkoły
- przedszkole
- sklepy
- hala sportowa
- basen

To idealne miejsce zarówno pod inwestycję deweloperską, jak i kameralne osiedle mieszkaniowe.

Zapraszam do obejrzenia nieruchomości na miejscu oraz do bezpośredniej rozmowy z architektem, który przedstawi możliwości zagospodarowania terenu i pełen potencjał inwestycyjny obiektu.

  • ul. Joachima Lelewela, Nysa, powiat nyski  
  • Na sprzedaż nieruchomość komercyjna o powierzchni 188,19 m²  
  • Oferta bezpośrednio od właściciela dodana ponad tydzień temu
Ta nieruchomość może być Twoja od.. sprawdź
180000 zł (20%) Okres spłaty: 30 lat

Podobne nieruchomości komercyjne na sprzedaż

2
Lokal Nysa, ul. Joachima Lelewela

849 000

160

Witam. Budynek na sprzedaż w Nysie, świetna lokalizacja (dzielnica Południe, przy ul. Lelewela). - Powierzchnia: 160 m2. - Działka ogrodzona z parkingiem o pow. 969 m2. - Budynek podpiwniczony. Cena do negocjacji. Chętnie udzielę więcej informacji. Zapraszam do kontaktu.

Zobacz ogłoszenie
14
Lokal Nysa, ul. Marszałka Józefa Piłsudskiego

590 000

150

Oferuję na sprzedaż lokal użytkowy o powierzchni 150 m2. Lokal znajduje się na ulicy Piłsudskiego, na parterze budynku obok Poczty. Lokal podzielony jest na dwie części z jednym głównym wejściem. Większa część o powierzchni 90 m2 składa się z trzech pomieszczeń i toalety. Druga mniejsza, o powierz...

Zobacz ogłoszenie
11
Lokal Nysa, ul. Celna

583 000

60

Lokal użytkowy na sprzedaż o powierzchni 60m położony na parterze w Nysie przy ulicy Celnej, w ścisłym centrum miasta, w bezpośrednim sąsiedztwie Rynku i ulicy Brackiej obok fontanny Trytona. Ulica Celna pełni rolę swoistego pasażu handlowego miasta. Na parterach budynków znajdują się lokale handlow...

Zobacz ogłoszenie
14
Lokal Nysa, ul. Stanisława Moniuszki

820 000

143

Idealna inwestycja, cztery w pełni wyposażone mieszkania, gotowy biznes na najem mieszkań.  Lokal składa się z 4 mieszkań. Kapitalny remont przeprowadzony 2 lata temu. Wymienione wszystkie instalacje (woda, elektryka, kanalizacja). Ogrzewanie miejskie. Monitorowana klatka. Lokalizacji przy samym ...

Zobacz ogłoszenie
7
Lokal Nysa, ul. Wrocławska

830 000

66

Sprzedam lokal handlowo-usługowy przy ul. Wrocławskiej 11 w Nysie o powierzchni 66,5 m2. - Pełna własność działki, na której stoi pawilon. - Brak dodatkowych opłat (czynsz do wspólnoty). - Wszystkie media. - Wysokość lokali: 3,05 m. - Lokal przeznaczony na każdą działalność gospodarczą....

Zobacz ogłoszenie
3
Hala/magazyn Nysa, ul. Baligrodzka

700 000

400

Hala o powierzchni 400m2, w tym zaplecze socjalne ok 80m2 (biuro, łazienka, toaleta, kuchnia plus duża sala. Hala ma dojazd z dwóch stron, oraz dwa wjazdy do środka o wysokości powyżej 4m. Budynek stoi na 21 arowej działce, przy ulicy Baligrodzkiej, ze świetnym dojazdem od strony ulicy Piłsudskiego,...

Zobacz ogłoszenie