Zabrze Grzybowice

hala/magazyn na sprzedaż Bez pośrednika

Hala/magazyn Zabrze Grzybowice
Cena
6 150 000
Powierzchnia
2350
Cena za m²
2 617
Zabrze Grzybowice · 6 150 000 zł

Ogłoszenie właściciela - bez pośredników

Hala/magazyn Zabrze Grzybowice. Zdjęcie 1
Hala/magazyn Zabrze Grzybowice. Zdjęcie 1

Bez pośrednika. Oszczędzasz 184 500 zł na prowizji pośrednika!

Opis nieruchomości:

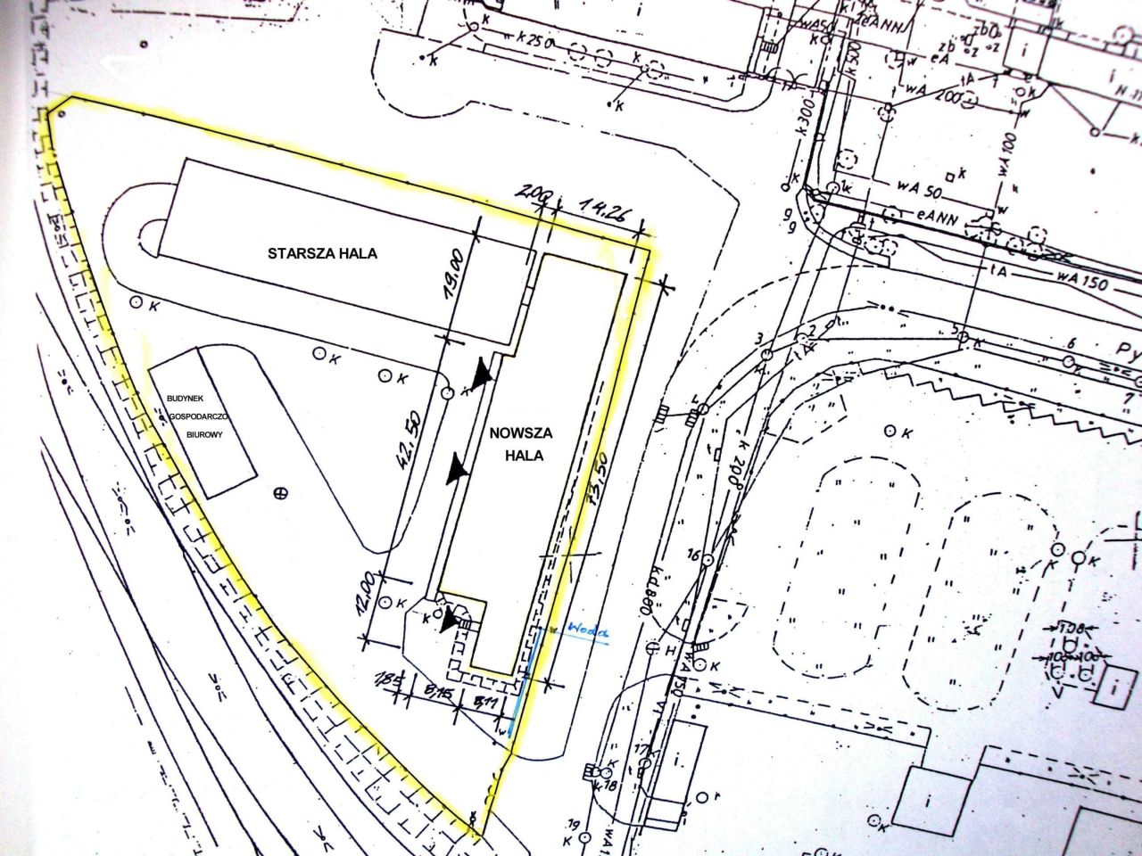
Zabrze Grzybowice, tereny przemysłowe.

- Powierzchnia działki: 6500 m².

- Hala produkcyjno-magazynowa I:
- Pow. 1050 m².
- Szerokość: 16 m.
- Długość: 66 m.
- Wysokość w kalenicy pomiędzy belkami: 5,10 m.
- Wysokość w kalenicy pod belką: 4,34 m.
- Wysokość przy ścianie: 4 m.
- W hali jest instalacja elektryczna.

- Hala produkcyjno-magazynowa II:
- Powierzchnia: 1000 m².
- Szerokość: 16,50 m.
- Długość: 60 m.
- Wysokość w kalenicy pomiędzy belkami: 4,60 m.
- Wysokość w kalenicy pod belką: 4,00 m.
- Wysokość przy ścianie: 4,20 m.
- W hali jest instalacja elektryczna.

- Budynek magazynowo-biurowy:
- Powierzchnia: 300,00 m².
- W budynku jest instalacja elektryczna, instalacja CO, woda.

Cała nieruchomość jest ogrodzona z niezależnym wjazdem z drogi głównej.

Cena: 6 150 000 zł plus VAT.

Proszę o kontakt.

  • Zabrze Grzybowice
  • Na sprzedaż hala/magazyn o powierzchni 2350 m²
  • Oferta dodana bezpośrednio przez właściciela ponad miesiąc temu
Wróć
Największa baza ogłoszeń bez pośredników
Zarejestruj się, aby przejść dalej
lub

Kontynuując akceptujesz
Regulamin i Politykę prywatności

Masz już konto na adresowo.pl?
Zaloguj się

Mamy dla Ciebie kredyt hipoteczny z niską ratą! Chcesz poznać szczegóły?

Kontakt z VeloBank:
- ofertę, wniosek i decyzję o przyznaniu kredytu w procesie online,
- wsparcie eksperta hipotecznego na każdym kroku,
- kredyt do 90% wartości nieruchomości.





Wyrażam zgodę na przetwarzanie moich danych osobowych zawartych w formularzu na stronie adresowo.pl przez VeloBank S.A. z siedzibą w Warszawie przy Rondo Ignacego Daszyńskiego 2C (Bank), a tym samym na ich przetwarzanie, w tym profilowanie, przez Bank w celu marketingu produktów i usług Banku za pośrednictwem rozmowy telefonicznej i sms. Zgoda może być w każdej chwili wycofana. Cofnięcie zgody nie ma wpływu na zgodność z prawem przetwarzania danych przed jej wycofaniem.