Nieruchomość komercyjna na sprzedaż bez pośredników
ul. Wrocławska Świdnica

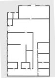
Hala/magazyn Świdnica, ul. Wrocławska. Zdjęcie 1

Nieruchomość komercyjna na sprzedaż bez pośredników Świdnica ul. Wrocławska

1 800 000
3 000 zł/m²
600
Świdnica, Wrocławska - lokalizacja przybliżona
Bezpośrednio od właściciela

Jeśli nie potrzebujesz pośrednika, zaoszczędzisz około 54 000 zł. Potrzebujesz wsparcia? Skorzystaj z pomocy agenta.

Na sprzedaż hala o powierzchni około 600 m², zlokalizowana przy ul. Wrocławskiej w Świdnicy na działce o powierzchni 0,1342 ha.

Budynek zawiera media: prąd, wodę, kanalizację oraz ogrzewanie piecem węglowym.

Nieruchomość składa się z:
- 3 hal produkcyjnych,
- 2 pomieszczeń biurowych,
- szatni,
- kotłowni,
- WC.

Stan nieruchomości oceniam jako dobry. W obiekcie zostały wymienione okna. W najbliższym czasie konieczna będzie wymiana papy na dachu.

Do obiektu prowadzą trzy wejścia: dwie bramy wjazdowe oraz jedne klasyczne drzwi dwuskrzydłowe.

Dodatkowo na terenie nieruchomości znajduje się wiata stalowa o powierzchni 120 m².

Cena ofertowa wynosi 1 800 000 zł i obejmuje:
- zakup nieruchomości wraz z działką,
- udział w drogach dojazdowych.

  • ul. Wrocławska, Świdnica, powiat świdnicki  
  • Na sprzedaż hala/magazyn o powierzchni 600 m²  
  • Oferta bezpośrednio od właściciela dodana ponad miesiąc temu
Ta nieruchomość może być Twoja od.. sprawdź
360000 zł (20%) Okres spłaty: 30 lat

Podobne nieruchomości komercyjne na sprzedaż

15
Lokal Świdnica Centrum, ul. Armii Krajowej

1 215 550

173

Super Oferta! Lokale Biurowe Idealne na Inwestycję! Prezentuję wyjątkową ofertę lokali biurowych dostępnych do sprzedaży. To doskonała okazja dla przedsiębiorców poszukujących idealnej przestrzeni do rozwoju swojej działalności lub inwestorów pragnących cieszyć się pasywnym dochodem z najmu. Doskon...

Zobacz ogłoszenie
20
Lokal Świdnica, ul. Bystrzycka

1 999 999

797

Na sprzedaż budynek przy ul. Bystrzyckiej w Świdnicy. Budynek składa się z 1 piętra, parteru i parkingu. Na pierwszym piętrze 5 mieszkań, na parterze 2 aktywne, działające lokale handlowo - usługowe, 2 pomieszczenia magazynowe oraz kotłownia. Poddasze użytkowe. Łączna powierzchnia pierwszego pięt...

Zobacz ogłoszenie
6
Lokal Świdnica

1 490 000

150

Sprzedam lokal po remoncie na parterze 3-kondygnacyjnego budynku z przeznaczeniem na sklep, biuro lub cichą działalność usługowo produkcyjną o powierzchni ok. 150m2, składa się on z dwóch pomieszczeń jedna 100m2 i mniejsza ok 50m2  . Lokal znajduje się 800m od marketu Kaufland w Świdnicy położony be...

Zobacz ogłoszenie
15
Lokal Świdnica, ul. Metalowców

1 670 000

189

Szanowni Państwo, mam przyjemność zaprezentować niezwykłą nieruchomość na sprzedaż -  lokal usługowy wolnostojący, jednokondygnacyjny o powierzchni 189,92 mkw, zlokalizowany przy ul. Metalowców w Świdnicy. Nieruchomość została przygotowana pod studio odnowy biologicznej. Działka zabudowana objęta j...

Zobacz ogłoszenie
3
Nieruchomość komercyjna Świdnica, ul. Bogusza Stęczyńskiego

zapytaj

724

Oferuję na sprzedaż dwa segmenty usługowo-mieszkalne w stanie surowym otwartym. Media: kanalizacja wodno-deszczowa,prąd,woda. Tel

Zobacz ogłoszenie
1
Lokal Świdnica, ul. Polna Droga

zapytaj

128

Przystań Droga Polna - ul. Polna Droga Lokal na sprzedaż! Dostępny drugi o powierzchni 121m2. Do lokalu przynależą elementy dodatkowo płatne (miejsca postojowe w garażu podziemnym oraz miejsca postojowe zewnętrzne)! Lokal idealny na gabinet kosmetyczny! Sprawdź naszą bazę lokali usługowych i wybi...

Zobacz ogłoszenie