Ogłoszenie usunięte

Łódź Śródmieście
ul. Jana Kilińskiego
2-pokojowe mieszkanie na sprzedaż Bez pośrednika

Łódź Śródmieście · 286 000 zł

Ogłoszenie właściciela - bez pośredników

Mieszkanie 2-pokojowe Łódź Śródmieście, ul. Jana Kilińskiego. Zdjęcie 1
Mieszkanie 2-pokojowe Łódź Śródmieście, ul. Jana Kilińskiego. Zdjęcie 1

Bez pośrednika. Oszczędzasz 8 600 zł na prowizji pośrednika!

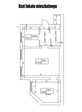
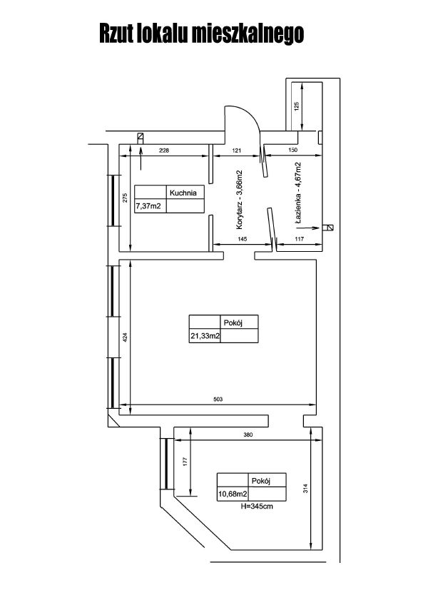
Polecam na sprzedaż mieszkanie o powierzchni 47,71 m2 położone przy ul. Kilińskiego 48 w Łodzi.

Kamienica w Kulturowym Centrum Miasta. Bliskość do Teatrów, Filharmonii, EC1 oraz Planetarium. Doskonały węzeł komunikacyjny – pociągi i komunikacja miejska. Super połączenie z uczelniami. Spacerowa odległość do ul. Piotrkowskiej. W okolicy znajduje się pełna infrastruktura osiedla: punkty usługowe i gastronomiczne, bankomaty, apteki, supermarkety. W pobliżu ul. Kilińskiego znajduję się również Manufaktura (ok. 2 km) oraz dworzec kolejowy Łódź Fabryczna (ok. 1 km).

Lokal znajduje się na I piętrze w oficynie rewitalizowanej kamienicy.
Składa się z 2 pokoi, kuchni, łazienki, korytarza. Wysokie pomieszczenia - 3,45 m - pozwalają na utworzenie antresoli, co daje dodatkową powierzchnię. Dużym atutem mieszkania jest możliwość przeniesienia kuchni do salonu i zrobienia mieszkania 3 pokojowego z aneksem kuchennym - największy pokój (salon) z aneksem kuchennym i 2 niezależne sypialnie.
Metraże :
1 pokój: 21,33 m2
2 pokój : 10,68 m2
kuchnia : 7,37 m2
łazienka : 4,67 m2
korytarz : 3,66 m2

Kamienica jest obecnie rewitalizowana. W całej kamienicy zostały wymienione piony wodno-kanalizacyjne, założono centralne ogrzewanie, wymieniono elektrykę w częściach wspólnych (doprowadzono do każdego mieszkania nowe przewody), naprawiono dach. Obecnie remontowana jest elewacja frontowa kamienicy. Następnie będzie remontowana elewacja wewnętrzna oraz klatki schodowe. Planowany koniec rewitalizacji – IV kwartał 2023 roku.

Standard: plastikowe okna, w pokoju piec kaflowy, który można usunąć ze względu na założenie c.o., oryginalna stolarka drzwiowa w pokojach, na podłogach w pokojach parkiet.
Mieszkanie jest do generalnego remontu (ewentualnie poza oknami, nowsze PCV), ale jego układ oraz położenie w rewitalizowanej kamienicy sprawia, że ma ono ogromny potencjał!
Idealne pod inwestycje - już w przyszłym roku wartość nieruchomości znacznie wzrośnie, ze względu na rewitalizację budynku.
Duże okna wychodzące na dziedziniec od strony południowej.

Stałe opłaty czynszowe : administracja – 1,93zł/m2 i fundusz remontowy – 9,5zł/m2 czyli 545,33zł/m-c.
Stan prawny: pełna własność z KW.

Ogłoszenie od osoby prywatnej.

  • Na sprzedaż mieszkanie 2-pokojowe o powierzchni 47,71 m²
  • 1 piętro w 3-piętrowej kamienicy bez windy z 1920 roku
  • Łódź, Śródmieście, ul. Jana Kilińskiego
  • Osobna kuchnia
  • Mieszkanie w stanie do remontu
  • Odrębna własność z księgą wieczystą
ponad miesiąc temu
8
Mieszkanie 2-pokojowe Łódź Śródmieście, al. marsz. Józefa Piłsudskiego

Łódź Śródmieście al. marsz. Józefa Piłsudskiego Mieszkanie na sprzedaż

2 pokoje 38 1 piętro Bez pośrednika
260 000
6 842 zł / m²
5 dni temu
8
Mieszkanie 4-pokojowe Łódź Śródmieście, ul. Uniwersytecka

Łódź Śródmieście ul. Uniwersytecka Mieszkanie na sprzedaż

4 pokoje 51 3 piętro Bez pośrednika
335 000
6 634 zł / m²
ponad miesiąc temu
20
Mieszkanie 2-pokojowe Łódź Śródmieście, ul. Henryka Sienkiewicza

Łódź Śródmieście ul. Henryka Sienkiewicza Mieszkanie na sprzedaż

2 pokoje 46 1 piętro Bez pośrednika
250 000
5 457 zł / m²
ponad tydzień temu
1
Mieszkanie 2-pokojowe Łódź Śródmieście

Łódź Śródmieście Mieszkanie na sprzedaż

2 pokoje 40 1 piętro Bez pośrednika
282 000
7 050 zł / m²
ponad tydzień temu
15
Mieszkanie 2-pokojowe Łódź Śródmieście, ul. Gdańska

Łódź Śródmieście ul. Gdańska Mieszkanie na sprzedaż

2 pokoje 39 2 piętro Bez pośrednika
298 000
7 641 zł / m²
ponad miesiąc temu
8
Mieszkanie 2-pokojowe Łódź Śródmieście, ul. płk. dr. Stanisława Więckowskiego

Łódź Śródmieście ul. płk. dr. Stanisława Więckowskiego Mieszkanie na sprzedaż

2 pokoje 50 3 piętro Bez pośrednika
270 000
5 405 zł / m²